+ Lisa oma töö      

Otsid ehitajat "Üldehitus" valdkonnast?

Parima pakkumise ja teostaja leidmiseks lisa oma töö.

Võtmed kätte eramaja ehitus

ID 114882

1515 vaatamist

Prindi

  • check Pakkumiste tegemine
    kuni 03.06.2025
  • check Võitja valik kuni
    10.06.2025
  • 3 Töö teostamine
    ja hinnang
Hanke lõpp: T, 3. juuni, 2025
Maakond: Harjumaa
Muu asula: Assaku
Tööde lõpp: Kokkuleppel
Ehitusmaterjalid: Töö tegija poolt
Soovin pakkumisi: Summa kogu projektile

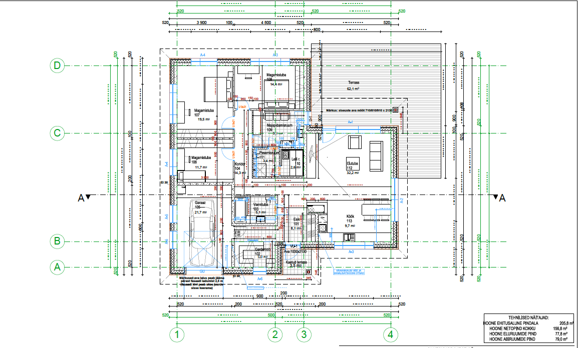
Töö sisu

Sooviks võtmed kätte pakkumist.

Pildid, video ja failid

Hanke korraldaja: eraisik ID33450

Pakkumised

Pakkumisi kokku: 2

Ettevõte Summa Käibemaks Lisatud Vestlus
Kasutaja ikoon ID90102
Pakkuja profiil Väike nool paremale
389 500€ KM lisandub KM lisandub 08.05.2025 Vestlus (0)

Pakkumise kirjeldus:

Võtmed kätte.

Kasutaja ikoon ID36140
Pakkuja profiil Väike nool paremale
392 000€ Sisaldab KM Sisaldab KM 29.05.2025 Vestlus (0)

Pakkumise kirjeldus:

Hind võib muutuda sõltuvalt lõplikest tehnilistest lahendustest ja materjalide valikust ja kvaliteedi klassist +/-15%. Hind tehtud arvestusega et ehitise netopind on 156,8 m2 ja kvaliteedi klass RYL2000 II. Hind sisaldab käibemaksu 22%. Käibemaksu määra muutumisel muutub ka lõpphind. Hind ei sisalda projekteerimist, kui sisaldab projekteerimise juh ... Rohkem

Küsimused hanke korraldajale

Küsimus: private ID9125   06.05.2025 06:55
Tere

Kas saaksite asendi plaani lisada?

Teavita reeglite rikkumisest

Korraldaja vastus: 06.05.2025 08:50

Tere,

Lisasin ligilähedase asendiplaani, vastavalt kinnitatud detialplaneeringule, projekt on veel kinnitamisel.

Teavita reeglite rikkumisest

Küsimus: private ID59528   02.06.2025 19:54
Tere,

Oleme huvitataud hinnapakkumise koostamisest, kas oleks võimalik lisada pdf formaadis joonis, saaksime sealt peal vajalikud mõõdistused teha

Ettevōttel olemas MTR registreering!

Meie poolt tehtud töid ning klientide antud hinnanguid saate näha sellelt lingilt, see meie firma avalik profiil

https://www.hange.ee/ettevote/59528/


Parimat,

Erik

Teavita reeglite rikkumisest

Korraldaja vastus:
Hanke korraldaja ei ole küsimusele veel vastanud

Lisa küsimus

Lisa küsimus

Minu pakkumine

Reeglid

Pakkumise kirjelduse väli on mõeldud pakkumise detailsemaks lahti kirjutamiseks. Pikema teksti mugavaks sisestamiseks klikkige kasti paremal ülaservas oleval ikoonil.
Pakkumist tehes on keelatud postitada enda kontaktandmeid (nimi, telefon, aadress jne). Me jälgime ja analüüsime pakkumisi, et vältida pettuseid ja reeglite rikkumisi.
Rikkumise puhul kasutajakonto blokeeritakse.

 

Teisi töid samas valdkonnas

Valdkonnas "Üldehitus" on 33 aktiivset tööd

Korteri kapitaalremont

Asukoht: Harjumaa, Laagri
Aega jäänud: 22h 18 min
Tehtud pakkumisi: 4

5 tonni liiva esimese korruse aknast sisse tõsta (põranda aluse täiteks)

Asukoht: Jõgevamaa, Jõgeva
Aega jäänud: 1p 22h
Tehtud pakkumisi: 3

Vanemad teated:

Vaata kõiki

Sellel veebilehel kasutatakse küpsiseid. Kasutamist jätkates nõustute küpsiste kasutamisega.

Sulge
 
Minu pakkumine

Reeglid

Pakkumise kirjelduse väli on mõeldud pakkumise detailsemaks lahti kirjutamiseks. Pikema teksti mugavaks sisestamiseks klikkige kasti paremal ülaservas oleval ikoonil.
Pakkumist tehes on keelatud postitada enda kontaktandmeid (nimi, telefon, aadress jne). Me jälgime ja analüüsime pakkumisi, et vältida pettuseid ja reeglite rikkumisi.
Rikkumise puhul kasutajakonto blokeeritakse.