+ Lisa oma töö      

Otsid ehitajat "Üldehitus" valdkonnast?

Parima pakkumise ja teostaja leidmiseks lisa oma töö.

Elamu juurdeehitus

ID 114850

1215 vaatamist

Prindi

  • check Pakkumiste tegemine
    kuni 29.06.2025
  • check Võitja valik kuni
    06.07.2025
  • 3 Töö teostamine
    ja hinnang
Hanke lõpp: P, 29. juuni, 2025
Maakond: Harjumaa
Muu asula: Laulasmaa
Tööde lõpp: Kokkuleppel
Ehitusmaterjalid: Töö tegija poolt
Soovin pakkumisi: Summa kogu projektile

Töö sisu

1. Üldinfo
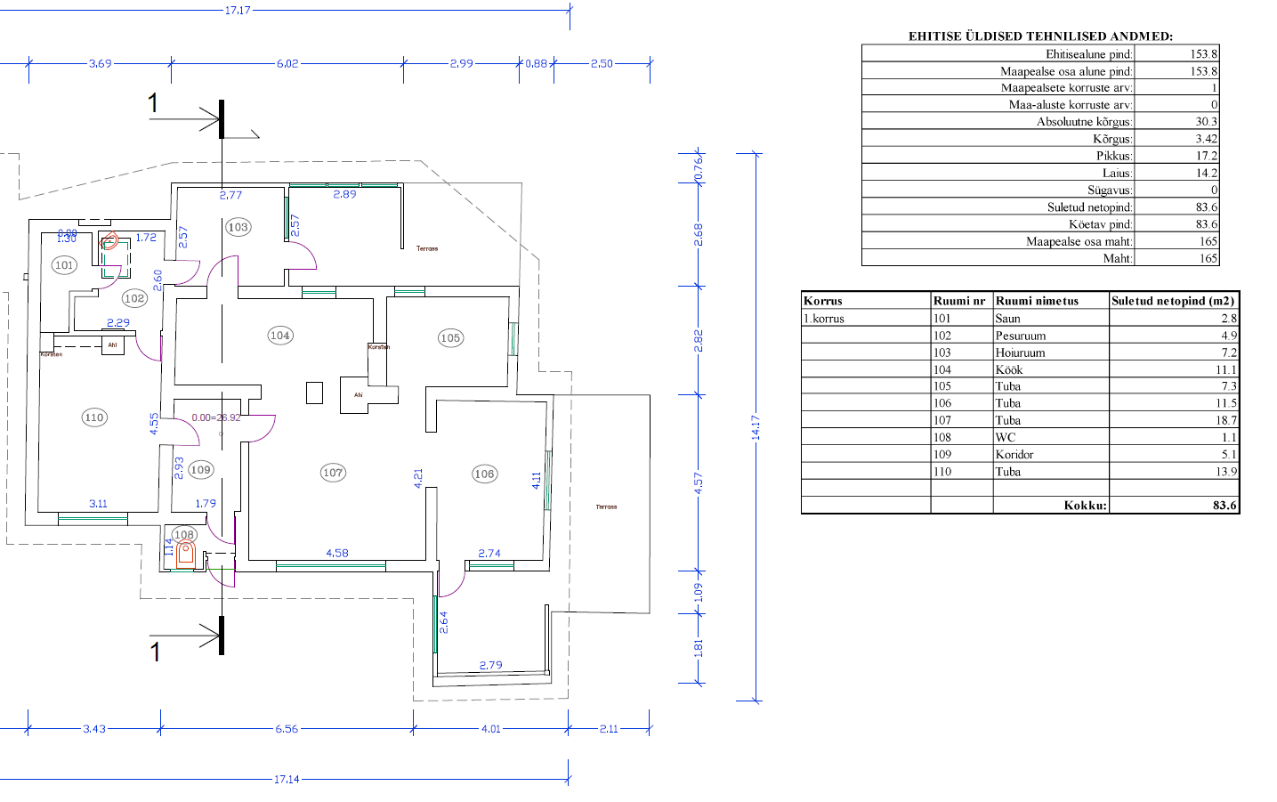
Kutsume Teid esitama hinnapakkumist Laulasmaa asuva aiamaja ümberehituse I etapi töödele, mille eesmärk on hoone rekonstrueerimine elamuks (eramuks) vastavalt kehtestatud projektile ja ehitusloale.
Vallalt on väljastatud ehitusluba ning olemas on kõik nõutud tööprojektid, sealhulgas eriosade projektid.
2. Tööde ulatus – I etapp (välisperimeeter)
Käesolev pakkumiskutse hõlmab ümberehituse esimese etapi töid, milleks on hoone välisperimeetri ehitus. Pakkumine peab sisaldama järgmisi eraldatavaid tööetappe:
a. Vundamendi rajamine koos selle soojustamise ja viimistlemisega
b. Välisseinte ladumine ja soojustamine
c. Avatäidete (aknad, uksed) paigaldus
d. Katuse ehitus, sh:
1. Uue katuseosa ehitamine ja soojustamine
2. Olemasoleva katuseosa vooderdamine, sirgestamine ning katusepleki
paigaldus
3. Dokumentatsioon

Pakkumise koostamiseks on lisatud järgmised materjalid:
Eelprojekt koos katusekonstruktsiooni eri projektiga (manuses).

Pakkujal on võimalus teha ettepanekuid tööde loetelu või materjalide osas, kui see aitab kaasa tööde kvaliteedile või optimeerib maksumust.


5. Tähtaeg
Tööd peaksid valmima enne sügisvihmade saabumist. Soovitav valmimisaeg on hiljemalt enne sügisvihmasid.

Mahud:
Vundamend: 38 jm
Fibo sein: neto 70 - avatäited (1,47+2+4,16+2,08+ 0,91+ 7,3) =18 m2 = ca 60 m2 seina
sillused: 6
Katus Olemasoleva roovimine:7x6 +4x9= 42+ 36= 80 m2
Katus uue ehitamine: 13,5x6 + 6,2x6= 81 + 37= 120 m2
Katus plekk: kokku = 200

Pildid, video ja failid

Hanke korraldaja: eraisik ID67135

Pakkumised

Pakkumisi kokku: 0

Küsimused hanke korraldajale

Hanke korraldajale ei ole veel küsimusi esitatud.

Lisa küsimus

Lisa küsimus

Minu pakkumine

Reeglid

Pakkumise kirjelduse väli on mõeldud pakkumise detailsemaks lahti kirjutamiseks. Pikema teksti mugavaks sisestamiseks klikkige kasti paremal ülaservas oleval ikoonil.
Pakkumist tehes on keelatud postitada enda kontaktandmeid (nimi, telefon, aadress jne). Me jälgime ja analüüsime pakkumisi, et vältida pettuseid ja reeglite rikkumisi.
Rikkumise puhul kasutajakonto blokeeritakse.

 

Teisi töid samas valdkonnas

Valdkonnas "Üldehitus" on 44 aktiivset tööd

Vannitoa kapitaalremont ja wc ning vannitoa ühendamine

Asukoht: Pärnumaa, Pärnu
Aega jäänud: 1h 18 min
Tehtud pakkumisi: 6

no-img Pilt puudub

Majal terrassi vahetus

Asukoht: Harjumaa, Tallinn
Aega jäänud: 1h 18 min
Tehtud pakkumisi: 6

Vanemad teated:

Vaata kõiki

Sellel veebilehel kasutatakse küpsiseid. Kasutamist jätkates nõustute küpsiste kasutamisega.

Sulge
 
Minu pakkumine

Reeglid

Pakkumise kirjelduse väli on mõeldud pakkumise detailsemaks lahti kirjutamiseks. Pikema teksti mugavaks sisestamiseks klikkige kasti paremal ülaservas oleval ikoonil.
Pakkumist tehes on keelatud postitada enda kontaktandmeid (nimi, telefon, aadress jne). Me jälgime ja analüüsime pakkumisi, et vältida pettuseid ja reeglite rikkumisi.
Rikkumise puhul kasutajakonto blokeeritakse.