+ Lisa oma töö      

Otsid ehitajat "Projekteerimine" valdkonnast?

Parima pakkumise ja teostaja leidmiseks lisa oma töö.

Plaatvundamendi projekt

ID 114238

1054 vaatamist

Prindi

  • check Pakkumiste tegemine
    kuni 02.05.2025
  • check Võitja valik kuni
    09.05.2025
  • 3 Töö teostamine
    ja hinnang
Hanke lõpp: R, 2. mai, 2025
Maakond: Harjumaa
Muu asula: Kiili
Tööde lõpp: Kokkuleppel
Ehitusmaterjalid: Töö tellija poolt
Soovin pakkumisi: Summa kogu projektile

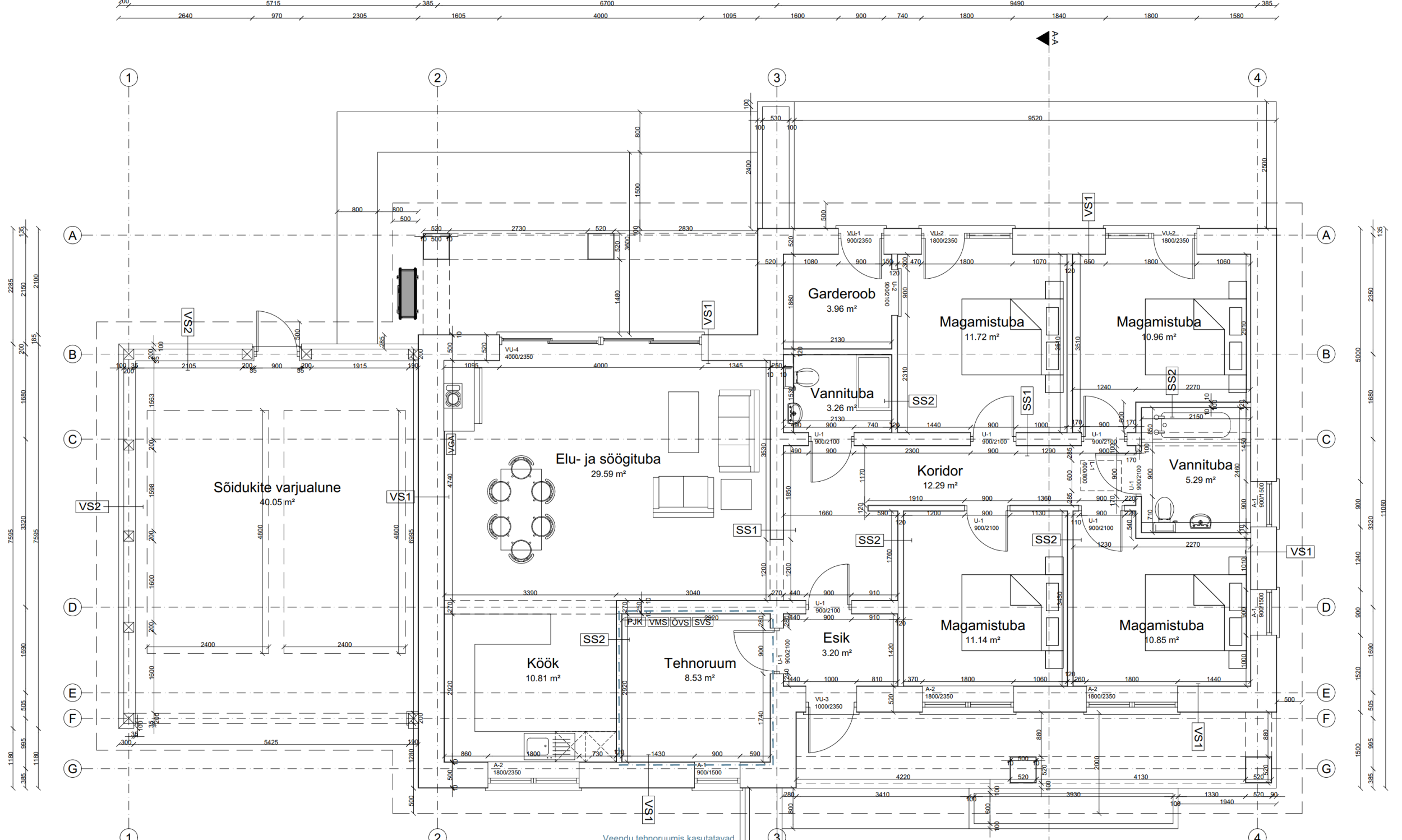
Töö sisu

Ma võin eksida mingite nimetustega aga oleks vaja saada plaatvundamendi ehitus projekti? mille järgi ehitada. Eelprojekt on olemas ja ehitusluba on väljastatud. Nüüd oleks vaja jooniseid mille järgi hakata vundamenti ehitama.
Vundamendi tüüp on plaat, garaazi osa eraldiseisevana lindi peal
Vajadus on veel järgmiste asjade järele: radooni ventilatsioon + kile, põrandasoenduse torud võiksid plaanil olemas olla, ideaalis võiks olla veel ka veevärgi joonised ehk siis kanalisatsiooni torud + veetorud (kust kuidas joksevad, läbiviigud on jne.)
Rohkem ei oska midagi lisada. Kui on vaja mingeid lisaandmeid või dokumente siis palun küsige.

Pildid, video ja failid

Hanke korraldaja: eraisik ID70014

Pakkumised

Pakkumisi kokku: 0

Küsimused hanke korraldajale

Küsimus: private ID47813   27.04.2025 12:43
Tere

Täpsustavad küsimused:
1. Kas on teostatud krundil või selle läheduses ehitusgeoloogilised uuringud?
2. Kas soovite konstruktiivset projekti - plaadi armeerimisjooniseid ning lintvundamendi laiuse dimensioneerimist ja armeerimisjooniseid?
3. Kirjas on, et garaaž eraldiseisvana lindi peal, aga seinte plaanil garaaži ja hoone vahel ühine vahesein. Palun täpsustage.
4. Kas plaat on plaanis teha ühekihilise betoonplaadina või kandev kiht + soojustus + pealevalu?
5. Eeldan, et terrasspostid lähevad eraldi kohtvundamentidele, õigus?
6. Saan pakkuda p.2 nimetatut, radooni vent ja VK osa ei ole konstruktiivse joonise osa. Kas teen sellele pakkumise või soovite ikkagi ainult kogu tervikut?

Teavita reeglite rikkumisest

Korraldaja vastus: 27.04.2025 21:11

1. Kas on teostatud krundil või selle läheduses ehitusgeoloogilised uuringud? - Kohe projekteeritava maja kõrvale on rajatud puurkaev mille tulemusel saadi sellised andmed: maapinda katab 30-50cm muld, mille all on saviliiv- ja liivsavimoreen (kihi tüsedus 13m, kihi lamami sügavus 13m) ning lubjakivi ja savikas lubjakivi mergli vahekihtidega (kihi tüsedus.
23m, kihi lamami sügavus 36m).
2. Kas soovite konstruktiivset projekti - plaadi armeerimisjooniseid ning lintvundamendi laiuse dimensioneerimist ja armeerimisjooniseid? - Täpselt nii. Kuhu, mida, kui palju, kui pikk, mis paksus, mis jämedus jne.
3. Kirjas on, et garaaž eraldiseisvana lindi peal, aga seinte plaanil garaaži ja hoone vahel ühine vahesein. Palun täpsustage. - Sellega on mingi segadus jah... Tegemist on tegelikkuses varjualusega millel on lahtised seinad. Seda ei köeta, ust ette ei tule jne. Piltilikult öeldes 4 posti ja katus peale. Mina enda peas ei näe põhjust miks see peaks olema kuidagi maja vundamendiga või seinaga seotud. Pigem jätaks täiesti eraldiseisvalt vundamendile, ei teki külmasildasid? jne. Parandage mind kui ma eksin kui nii mõtlen ja on vaja mingil põhjusel teistmoodi teha.
4. Kas plaat on plaanis teha ühekihilise betoonplaadina või kandev kiht + soojustus + pealevalu? - Ühekihiline
5. Eeldan, et terrasspostid lähevad eraldi kohtvundamentidele, õigus? - Need on katuse ääre toestus postid ja jah eraldi vundamentidele oleks ideaalne. Kui plaadiga ära sisduda siis vist tekib külmasild?
6. Saan pakkuda p.2 nimetatut, radooni vent ja VK osa ei ole konstruktiivse joonise osa. Kas teen sellele pakkumise või soovite ikkagi ainult kogu tervikut? - Võib teha pakkumise ka ilma nende osadeta.

Teavita reeglite rikkumisest

Küsimus: private ID76566   27.04.2025 16:27
Tere!
Tundub oleks vaja vundamendile konstruktiivset projekti tugevusarvustustega. Oleks hea juurde lisada sektsioonlõige hoonest koos arhitekti konstruktsioonide kirjeldustega projektis, et komplektsem hinnapakkumine koostada.

Teavita reeglite rikkumisest

Korraldaja vastus: 27.04.2025 20:59

Vist leidsin õige asja ja lisasin hankele juurde. Kui ei sobi siis andke palun teada.

Teavita reeglite rikkumisest

Lisa küsimus

Lisa küsimus

Minu pakkumine

Reeglid

Pakkumise kirjelduse väli on mõeldud pakkumise detailsemaks lahti kirjutamiseks. Pikema teksti mugavaks sisestamiseks klikkige kasti paremal ülaservas oleval ikoonil.
Pakkumist tehes on keelatud postitada enda kontaktandmeid (nimi, telefon, aadress jne). Me jälgime ja analüüsime pakkumisi, et vältida pettuseid ja reeglite rikkumisi.
Rikkumise puhul kasutajakonto blokeeritakse.

 

Teisi töid samas valdkonnas

Valdkonnas "Projekteerimine" on 6 aktiivset tööd

no-img Pilt puudub

1-kordse 120 m2 elumaja põhiprojekt

Asukoht: Harjumaa, Metsanurme
Aega jäänud: 8p 16h
Tehtud pakkumisi: 4

no-img Pilt puudub

Saunamaja eelprojekt ehitusteatiseks

Asukoht: Lääne-Virumaa
Aega jäänud: 1p 16h
Tehtud pakkumisi: 3

Vanemad teated:

Vaata kõiki

Sellel veebilehel kasutatakse küpsiseid. Kasutamist jätkates nõustute küpsiste kasutamisega.

Sulge
 
Minu pakkumine

Reeglid

Pakkumise kirjelduse väli on mõeldud pakkumise detailsemaks lahti kirjutamiseks. Pikema teksti mugavaks sisestamiseks klikkige kasti paremal ülaservas oleval ikoonil.
Pakkumist tehes on keelatud postitada enda kontaktandmeid (nimi, telefon, aadress jne). Me jälgime ja analüüsime pakkumisi, et vältida pettuseid ja reeglite rikkumisi.
Rikkumise puhul kasutajakonto blokeeritakse.