+ Lisa oma töö      

Otsid ehitajat "Projekteerimine" valdkonnast?

Parima pakkumise ja teostaja leidmiseks lisa oma töö.

Korteri mõõdistusprojekt

ID 113783

1093 vaatamist

Prindi

  • check Pakkumiste tegemine
    kuni 01.05.2025
  • check Võitja valik kuni
    08.05.2025
  • 3 Töö teostamine
    ja hinnang
Hanke lõpp: N, 1. mai, 2025
Maakond: Harjumaa
Linn: Tallinn
Tööde lõpp: Kokkuleppel
Ehitusmaterjalid: Töö tegija poolt
Soovin pakkumisi: Summa kogu projektile

Töö sisu

Tere.

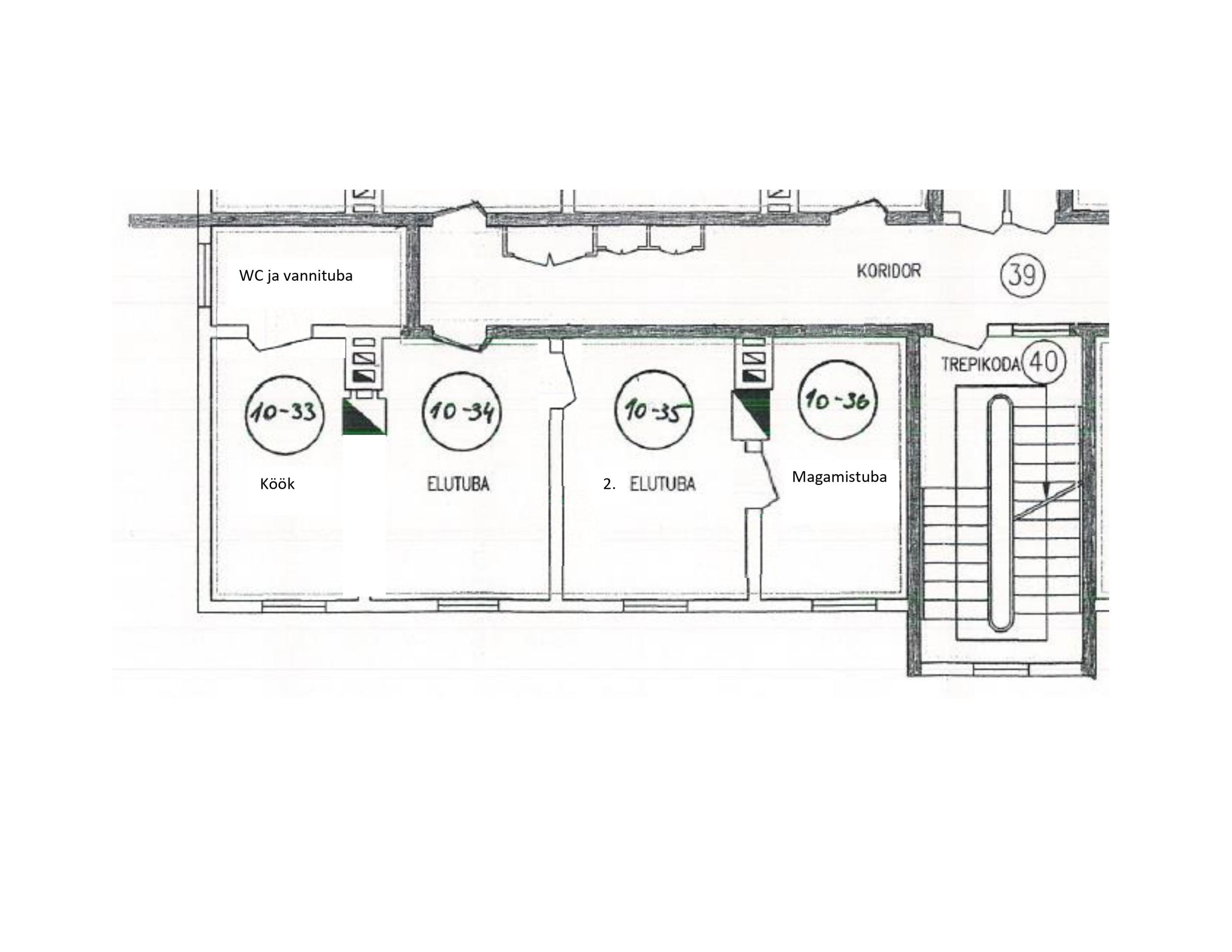
Oleks vaja 48 m2 suuruse korteri mõõdistusprojekti koos tiitellehe ja seletuskirjaga. Kaasa pandud remondijärgne ja originaalne plaan.

Kuna eelmise omaniku poolt sai remondiga tehtud rida muudatusi, oleks nüüd tarvis korteri info EHR-is korda saada. Täpsemelt oleks vaja dokumenteerida järgnev:

1. Pildil oleva ruumi 33 ja 34 ruumiplaani on muudetud - lammutatud on kahe ruumi vaheline mittekandev vahesein. Tarvis on spetsialisti kinnitust, et tegemist ei ole hoone kande- ega jäigastava seinaga.

2. Ruumide 34, 35 ja 36 uste asukohti on muudetud ilma kandekonstruktsioone kahjustamata (ukse jooksevad kandetalade vahelt, ruumi 35 ja 36 vahel ei ole kandev sein). Tarvis on spetsialisti kinnitust, et kõik on korrektne.

3. Ruumis 36 on välja lammutatud seal paiknenud küttekolle. Korsten on seejuures pottsepa poolt korrektselt viimistletud (sleped suletud jne). Selle kohta saan jagada pottsepa akti hanke võitnud pakkujaga.

4. Ruumi 33 ja 36 eesmärki on muudetud.

5. Ruumi 36 välisuks on kinni pandud.

Sooviks antud töödele hinnapakkumist. Tööd võiks teostada esimesel võimalusel.
Mõõdistusprojekti oleks vaja nii digitaalselt kui PDF-i kujul.

Olemas on maja 2002 ja 1974 aasta inventariseerimise joonised, mida saan hanke võitjaga jagada.

Hea koostöö puhul on veel projekteerimistöid lisaks pakkuda!

Pildid, video ja failid

Hanke korraldaja: ettevõte ID84293

Pakkumised

Pakkumisi kokku: 1

Ettevõte Summa Käibemaks Lisatud Vestlus
Kasutaja ikoon ID86907
Pakkuja profiil Väike nool paremale
1 620€ KM lisandub KM lisandub 21.04.2025 Vestlus (0)

Pakkumise kirjeldus:

Hind sisaldab korteri mõõdistust, 2D jooniste ja ruumide eksplikatsioonide koostamist Ehitise audit (eksperdi hinnang) vastavalt Majandus- ja taristuministri 12.10.2020 määrusele nr 61 „Ehitise auditi
tegemise kord“ . Töid teostab diplomeeritud ehitusinsener tase 7 ( ehitusjuhtimine, omanikujärelevalve, projektide ekspertiis, ehitiste audit )

Küsimused hanke korraldajale

Küsimus: private ID86907   18.04.2025 08:08
Hanke kirjeldusest loen välja, et lisaks mõõdistusprohektile vajate ka ehitise auditit ?

Teavita reeglite rikkumisest

Korraldaja vastus: 18.04.2025 11:58

Tere. Linnavalitsuse poolt saadetud nõuetest lugesin välja, et mõõdistusprojektist piisab. Mittekandva seina osas on vaja eksperdi hinnangut-kinnitust. Ma hetkel ei ole kindel, mis see nüüd praktikas tähendab - ma eeldan, et piisab, kui mõõdistusprojekti selgituskirjas on antud seina info välja toodud ja eksperdi poolt kinnitatud. Kas selle jaoks on vaja eraldi auditi paberit, võin Linnavalitsuselt üle küsida. Antud kulu võib siis viimasel korral igaks juhuks eraldi välja tuua. Kindlasti ei ole vaja terve korteri või maja ehitusauditit.

Teavita reeglite rikkumisest

Küsimus: private ID86907   18.04.2025 17:09
Eksperdi hinnang sisuliselt ongi ehitise audit. Teeme pakkumise peale pühi.

Teavita reeglite rikkumisest

Korraldaja vastus:
Hanke korraldaja ei ole küsimusele veel vastanud

Küsimus: private ID68615   24.04.2025 11:00
Tere
Kuna tegemist on puitmajaga, siis terviklikult ei saa eemaldada seinad 33/34/35/36 vahel. Need on jäigastavad seinad fassaadi osas ehk vähendavad fassaadi nõtkepikkust. Kuna seinad on omavoliliselt lammutatud, siis tuleb teha ehitusprojekt ja teha vastav tugevdus välisseina juures. Soovitan selles osas konsulteerida ehitusinseneridega, kes on puutunud puitkonstruktsioonidega.
Parimat!
Diplomeeritud ehitusinsener tase 7

Teavita reeglite rikkumisest

Korraldaja vastus:
Hanke korraldaja ei ole küsimusele veel vastanud

Lisa küsimus

Lisa küsimus

Minu pakkumine

Reeglid

Pakkumise kirjelduse väli on mõeldud pakkumise detailsemaks lahti kirjutamiseks. Pikema teksti mugavaks sisestamiseks klikkige kasti paremal ülaservas oleval ikoonil.
Pakkumist tehes on keelatud postitada enda kontaktandmeid (nimi, telefon, aadress jne). Me jälgime ja analüüsime pakkumisi, et vältida pettuseid ja reeglite rikkumisi.
Rikkumise puhul kasutajakonto blokeeritakse.

 

Teisi töid samas valdkonnas

Valdkonnas "Projekteerimine" on 6 aktiivset tööd

no-img Pilt puudub

1-kordse 120 m2 elumaja põhiprojekt

Asukoht: Harjumaa, Metsanurme
Aega jäänud: 8p 17h
Tehtud pakkumisi: 4

no-img Pilt puudub

Saunamaja eelprojekt ehitusteatiseks

Asukoht: Lääne-Virumaa
Aega jäänud: 1p 17h
Tehtud pakkumisi: 3

Vanemad teated:

Vaata kõiki

Sellel veebilehel kasutatakse küpsiseid. Kasutamist jätkates nõustute küpsiste kasutamisega.

Sulge
 
Minu pakkumine

Reeglid

Pakkumise kirjelduse väli on mõeldud pakkumise detailsemaks lahti kirjutamiseks. Pikema teksti mugavaks sisestamiseks klikkige kasti paremal ülaservas oleval ikoonil.
Pakkumist tehes on keelatud postitada enda kontaktandmeid (nimi, telefon, aadress jne). Me jälgime ja analüüsime pakkumisi, et vältida pettuseid ja reeglite rikkumisi.
Rikkumise puhul kasutajakonto blokeeritakse.