+ Lisa oma töö      

Otsid ehitajat "Ehitusprojektid" valdkonnast?

Parima pakkumise ja teostaja leidmiseks lisa oma töö.

Korteri ehitusluba joonistega EHRi

ID 113265

1008 vaatamist

Prindi

  • check Pakkumiste tegemine
    kuni 23.04.2025
  • check Võitja valik kuni
    30.04.2025
  • 3 Töö teostamine
    ja hinnang
Hanke lõpp: K, 23. aprill, 2025
Maakond: Pärnumaa
Linn: Pärnu
Tööde lõpp: Kokkuleppel
Ehitusmaterjalid: Töö tellija poolt
Soovin pakkumisi: Summa kogu projektile

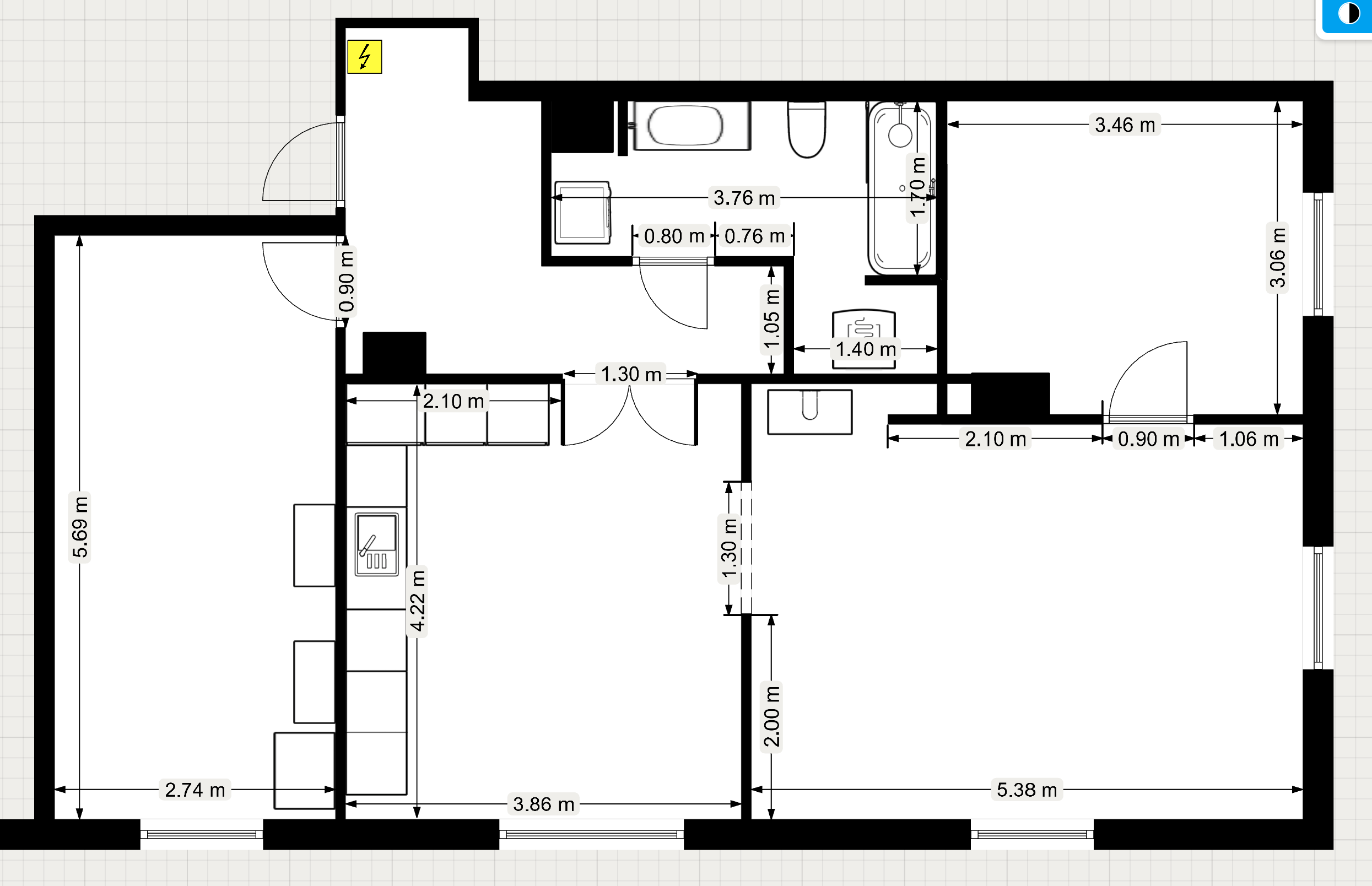
Töö sisu

Otsime tase 7 arhidekti korteri plaanide üle kontrollimiseks ja korrektseks vormistamiseks. Korteri plaanid peavad sobima EHR-i ehitousloa taotlemiseks.
Töö vastuvõtja peab tegelema EHR-is dokumentide vormistamise ning lubade taotlemisega (ehitusluba, kasutusluba).
Elektripistikute/lülitite plaan olemas, aga vajab korrigeerimist;
Valgustite plaan olemas, aga vajab korrigeerimist;
Küttesüsteemi joonis tuleb paigaldaja poolt, aga vajab ülevaatust;
Vee- ja kanalisatsiooniplaan tuleb paigaldajalt, aga vajab ülevaatust.
Korteri rekonstrueerimistööde luba KÜ poolt olemas.

Pildid, video ja failid

Hanke korraldaja: eraisik ID89319

Pakkumised

Pakkumisi kokku: 1

Ettevõte Summa Käibemaks Lisatud Vestlus
Kasutaja ikoon ID76091
Pakkuja profiil Väike nool paremale
2 500€ Ei ole KMKR Ei ole KMKR 23.04.2025 Vestlus (0)

Pakkumise kirjeldus:

Vastavalt hankes küsitule.

Küsimused hanke korraldajale

Hanke korraldajale ei ole veel küsimusi esitatud.

Lisa küsimus

Lisa küsimus

Minu pakkumine

Reeglid

Pakkumise kirjelduse väli on mõeldud pakkumise detailsemaks lahti kirjutamiseks. Pikema teksti mugavaks sisestamiseks klikkige kasti paremal ülaservas oleval ikoonil.
Pakkumist tehes on keelatud postitada enda kontaktandmeid (nimi, telefon, aadress jne). Me jälgime ja analüüsime pakkumisi, et vältida pettuseid ja reeglite rikkumisi.
Rikkumise puhul kasutajakonto blokeeritakse.

 

Teisi töid samas valdkonnas

Valdkonnas "Ehitusprojektid" on 3 aktiivset tööd

no-img Pilt puudub

Eraldiseisva korterelamu vahetu liitumine ühisveevärgiga.

Asukoht: Harjumaa, Tallinn
Aega jäänud: 3p 22h
Tehtud pakkumisi: 0

Vanemad teated:

Vaata kõiki

Sellel veebilehel kasutatakse küpsiseid. Kasutamist jätkates nõustute küpsiste kasutamisega.

Sulge
 
Minu pakkumine

Reeglid

Pakkumise kirjelduse väli on mõeldud pakkumise detailsemaks lahti kirjutamiseks. Pikema teksti mugavaks sisestamiseks klikkige kasti paremal ülaservas oleval ikoonil.
Pakkumist tehes on keelatud postitada enda kontaktandmeid (nimi, telefon, aadress jne). Me jälgime ja analüüsime pakkumisi, et vältida pettuseid ja reeglite rikkumisi.
Rikkumise puhul kasutajakonto blokeeritakse.