+ Lisa oma töö      

Otsid ehitajat "Projekteerimine" valdkonnast?

Parima pakkumise ja teostaja leidmiseks lisa oma töö.

Eramu eelprojekti koostamine

ID 112498

1327 vaatamist

Prindi

  • check Pakkumiste tegemine
    kuni 11.04.2025
  • check Võitja valik kuni
    18.04.2025
  • 3 Töö teostamine
    ja hinnang
Hanke lõpp: R, 11. aprill, 2025
Maakond: Tartumaa
Linn: Tartu
Tööde lõpp: Kokkuleppel
Ehitusmaterjalid: Töö tellija poolt
Soovin pakkumisi: Summa kogu projektile

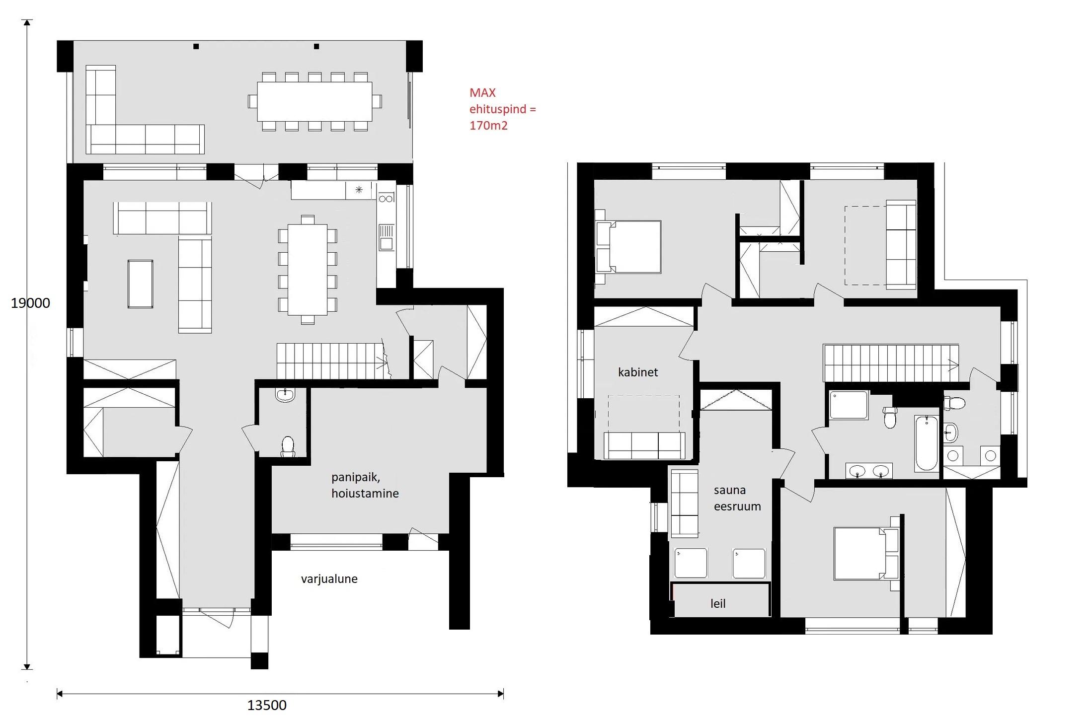
Töö sisu

Soovin hinnapakkumist eramu eelprojekti koostamiseks koos ehitusloa taotlemisega.
Geoalus varsti saadaval.
Planeeritava maja suurus: 170m2, kahe korruseline.
Kivimaja, katusekalle 5 kraadi.
Garaazi ei ole, terrass lahtine (kinni ehitamata).

Visioonpildid ja plaan lisatud.

Pildid, video ja failid

Hanke korraldaja: eraisik ID89002

Pakkumised

Pakkumisi kokku: 9

Ettevõte Summa Käibemaks Lisatud Vestlus
Kasutaja ikoon ID76566
Pakkuja profiil Väike nool paremale
2 100€ KM lisandub KM lisandub 29.03.2025 Vestlus (0)

Pakkumise kirjeldus:

Tere!

Väljatoodud hinnas pakume arhitektuurse eelprojekti koostamist hoone püstitamiseks ja kooskõlastamist omavalitsusega.

Töömaht sisaldab:

- Eelprojekti taotluse joonised: vundament, korruste plaanid, katuseplaan, maja sektsioon, vaated, krundi planeering geoalusel
- Seletuskiri
- Taotluste esitamist ning kohaliku omavalitsusega suhtlu ... Rohkem

Kasutaja ikoon ID69164
Pakkuja profiil Väike nool paremale
2 200€ Ei ole KMKR Ei ole KMKR 31.03.2025 Vestlus (0)

Pakkumise kirjeldus:

Hoone ehitusprojekt eelprojekti staadiumis.

Koostatav projekt vastab EVS 932:2017 ja MKM määruse nr. 97 „Nõuded ehitusprojektile1" nõuetele.

Märkused:
1. Hinnapakkumine ei sisalda Topo-geodeetiliste, ehitusgeoloogiliste, dendroloogiliste uuringute koostamist, ega nende maksumust,
2. Projektiga ja projekteerimisega seotud kõik kooskõlastustas ... Rohkem

Kasutaja ikoon ID78425
Pakkuja profiil Väike nool paremale
6 850€ KM lisandub KM lisandub 31.03.2025 Vestlus (0)

Pakkumise kirjeldus:

Oleme 15 aastase projekteerimiskogemusega arhitektuuribüroo ning teinud sadu projekte üle eesti ning omame 10 spetsialisti näol piisavalt kompetentsi.
Eskiisprojekt 2400-
Arhitektuurne eelprojekt (asendiplaan, seletuskiri, korruste plaanid, vaated, lõiked) 3500-
3D visualiseeringud 450-
Ehitusloa taotlus ja menetlus (Projekti EHR-i laadimine, andme ... Rohkem

Kasutaja ikoon ID40011
Pakkuja profiil Väike nool paremale
2 100€ Ei ole KMKR Ei ole KMKR 31.03.2025 Vestlus (0)

Pakkumise kirjeldus:

pakkumine eelprojektile koos energiamärgise ja menetlusega KOVis, hind ei sisalda riigiõive, geo-alust.

Kasutaja ikoon ID5128
Pakkuja profiil Väike nool paremale
4 500€ KM lisandub KM lisandub 01.04.2025 Vestlus (0)

Pakkumise kirjeldus:

Projekti osad eelprojekti staadiumis ja energiamärgis ja ehitusloa taotlemine. Hinnas ei ole geoalust ega haljastuse uuringut.

Kasutaja ikoon ID26988
Pakkuja profiil Väike nool paremale
2 200€ Ei ole KMKR Ei ole KMKR 10.04.2025 Vestlus (0)

Pakkumise kirjeldus:

Pakkumine sisaldab projekti ehitusloa taotlemiseks vajalikus mahus, vastavalt normidele ja standartidele ning Teie kirjeldusele. Kõik kooskõlastused ja asjaajamised kuni ehitusloani. Vajadusel konsultatsioonid . Projekt digitaalselt Teile sobivates formaatides, 3D-visualiseering.
Geoalus, riigilõivud ja seotud asutuste menetlemise tasud ei kuulu pakk ... Rohkem

Kasutaja ikoon ID77238
Pakkuja profiil Väike nool paremale
1 250€ Ei ole KMKR Ei ole KMKR 10.04.2025 Vestlus (0)

Pakkumise kirjeldus:

Meie spetsialiseerumisvaldkonnaks on elamute projekteerimine. Koostame ehitusprojekte vastavalt standardile EVS 932:2017 ning majandus- ja kommunikatsiooniministri määrusele nr 97 „Nõuded ehitusprojektile“. Omame vastavat MTR-i registreeringut.

Käesolev hinnapakkumine sisaldab järgmisi etappe ja tööde sisu:

1.1) Konsultatsioon ja lähteüles ... Rohkem

Kasutaja ikoon ID48870
Pakkuja profiil Väike nool paremale
2 450€ KM lisandub KM lisandub 11.04.2025 Vestlus (0)

Pakkumise kirjeldus:

Tere
Ehitusprojekt eelprojekti staadiumis ehitisregistrile esitamiseks
Pakkumishind sisaldab:
Seletuskiri,Korruste plaanid, Katuse plaan,Hoone lõige, Hoone vaated, Avatäidete joonised, jm asjakohased vajalikud joonised, Asendiplaan
Kooskõlastused ehitusloa saamiseks
Ehitusloa taotluse esitamine ehistisregistrisse
Kui arve tuleb eraisikule siis saab ... Rohkem

Kasutaja ikoon ID78618
Pakkuja profiil Väike nool paremale
1 750€ KM lisandub KM lisandub 11.04.2025 Vestlus (0)

Pakkumise kirjeldus:

Arhitektuurne ehitusprojekt eelprojekti staadiumis vastavalt Eesti Vabariigis kehtivatele seadustele.

Projekti maht:
Seletuskiri
Asukohaskeem
Asendiplaan
Hoone plaanid
Hoone vaated
Hoone lõige
Avatäidete spetsifikatsioonid

Maksmine: 80% enne projekti EHR-i sisestamist ja 20% peale ehitusloa saamist.

Volitatud arhitekt, tase 7.

Küsimused hanke korraldajale

Hanke korraldajale ei ole veel küsimusi esitatud.

Lisa küsimus

Lisa küsimus

Minu pakkumine

Reeglid

Pakkumise kirjelduse väli on mõeldud pakkumise detailsemaks lahti kirjutamiseks. Pikema teksti mugavaks sisestamiseks klikkige kasti paremal ülaservas oleval ikoonil.
Pakkumist tehes on keelatud postitada enda kontaktandmeid (nimi, telefon, aadress jne). Me jälgime ja analüüsime pakkumisi, et vältida pettuseid ja reeglite rikkumisi.
Rikkumise puhul kasutajakonto blokeeritakse.

 

Teisi töid samas valdkonnas

Valdkonnas "Projekteerimine" on 6 aktiivset tööd

no-img Pilt puudub

1-kordse 120 m2 elumaja põhiprojekt

Asukoht: Harjumaa, Metsanurme
Aega jäänud: 8p 14h
Tehtud pakkumisi: 4

no-img Pilt puudub

Saunamaja eelprojekt ehitusteatiseks

Asukoht: Lääne-Virumaa
Aega jäänud: 1p 14h
Tehtud pakkumisi: 3

Vanemad teated:

Vaata kõiki

Sellel veebilehel kasutatakse küpsiseid. Kasutamist jätkates nõustute küpsiste kasutamisega.

Sulge
 
Minu pakkumine

Reeglid

Pakkumise kirjelduse väli on mõeldud pakkumise detailsemaks lahti kirjutamiseks. Pikema teksti mugavaks sisestamiseks klikkige kasti paremal ülaservas oleval ikoonil.
Pakkumist tehes on keelatud postitada enda kontaktandmeid (nimi, telefon, aadress jne). Me jälgime ja analüüsime pakkumisi, et vältida pettuseid ja reeglite rikkumisi.
Rikkumise puhul kasutajakonto blokeeritakse.