+ Lisa oma töö      

Otsid ehitajat "Ehitusprojektid" valdkonnast?

Parima pakkumise ja teostaja leidmiseks lisa oma töö.

Hange on lõppenud!

Võitjaks osutus kasutaja ID 48870

Elumaja projekti koostamine

ID 112491

950 vaatamist

Prindi

  • check Pakkumiste tegemine
    kuni 31.03.2025
  • check Võitja valik kuni
    07.04.2025
  • 3 Töö teostamine
    ja hinnang
Hanke lõpp: E, 31. märts, 2025
Maakond: Harjumaa
Tööde lõpp: P, 18. mai, 2025
Ehitusmaterjalid: Töö tellija poolt
Soovin pakkumisi: Summa kogu projektile

Töö sisu

Koostada tuleks elumaja ehitus ja aiamaja lammutusprojekt olemasolevate pildifailide põhjal. Olemas on geoalus ja ehitustingimused.

Projekt tuleks esitada dwg formaadis.

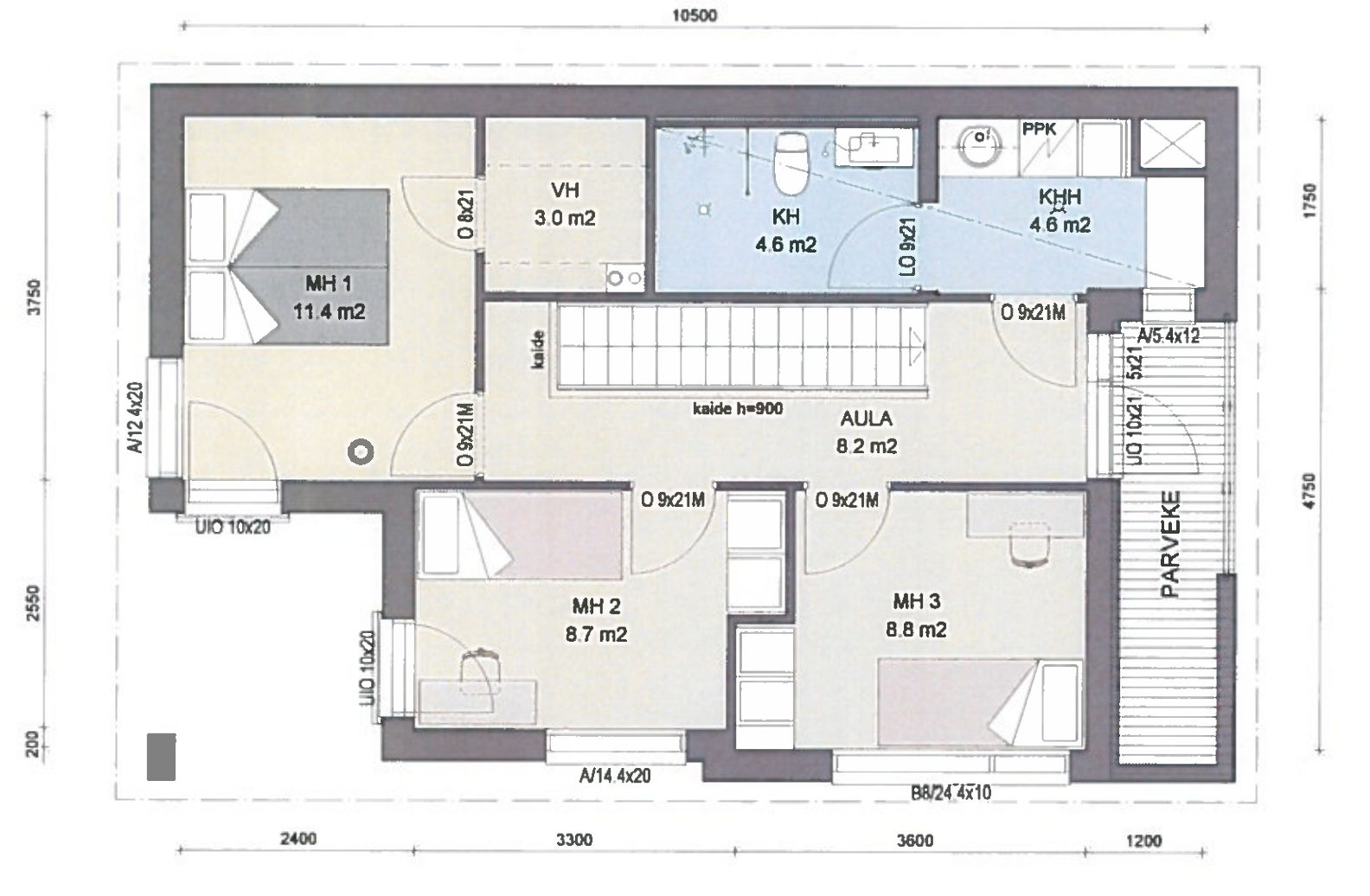
Pildid, video ja failid

Hanke korraldaja: eraisik ID89005

Pakkumised

Pakkumisi kokku: 9

Ettevõte Summa Käibemaks Lisatud Vestlus
Kasutaja ikoon ID76566
Pakkuja profiil Väike nool paremale
2 600€ KM lisandub KM lisandub 29.03.2025 Vestlus (0)

Pakkumise kirjeldus:

Tere!

Väljatoodud hinnas pakume arhitektuurse eelprojekti koostamist hoone püstitamiseks, olemasoleva aiamaja lammutusprojekti koostamist ja projektide kooskõlastamist omavalitsusega.

Töömaht sisaldab:

- Eelprojekti taotluse joonised: vundament, korruste plaanid, katuseplaan, maja sektsioon, vaated, krundi planeering geoalusel
- Seletuskir ... Rohkem

Kasutaja ikoon ID26988
Pakkuja profiil Väike nool paremale
1 850€ Ei ole KMKR Ei ole KMKR 30.03.2025 Vestlus (0)

Pakkumise kirjeldus:

Pakkumine sisaldab lammutuse ja püstitamise projektide ehitusloa taotlemiseks vajalikus mahus, vastavalt normidele ja standartidele ning Teie kirjeldusele. Kõik kooskõlastused ja asjaajamised kuni ehitusloani. Vajadusel konsultatsioonid. Projekt digitaalselt Teile sobivates formaatides, 3D-visualiseering.
Geoalus, riigilõivud ja seotud asutuste menetl ... Rohkem

Kasutaja ikoon ID69164
Pakkuja profiil Väike nool paremale
2 200€ Ei ole KMKR Ei ole KMKR 31.03.2025 Vestlus (0)

Pakkumise kirjeldus:

Hoone ehitusprojekt eelprojekti staadiumis ja lammutusprojekt.

Koostatav projekt vastab EVS 932:2017 ja MKM määruse nr. 97 „Nõuded ehitusprojektile1" nõuetele.

Märkused:
1. Hinnapakkumine ei sisalda Topo-geodeetiliste, ehitusgeoloogiliste, dendroloogiliste uuringute koostamist, ega nende maksumust,
2. Projektiga ja projekteerimisega seotud kõ ... Rohkem

Kasutaja ikoon ID78425
Pakkuja profiil Väike nool paremale
5 700€ KM lisandub KM lisandub 31.03.2025 Vestlus (0)

Pakkumise kirjeldus:

Oleme 15 aastase projekteerimiskogemusega arhitektuuribüroo ning teinud sadu projekte üle eesti ning omame 10 spetsialisti näol piisavalt kompetentsi.
Arhitektuurne eelprojekt (asendiplaan, seletuskiri, korruste plaanid, vaated, lõiked) 4000-
Lammutusprojekt 1000-
Ehitusloa taotlus ja menetlus (Projekti EHR-i laadimine, andmete ajakohastamine ja KOV ... Rohkem

Kasutaja ikoon ID40011
Pakkuja profiil Väike nool paremale
2 500€ Ei ole KMKR Ei ole KMKR 31.03.2025 Vestlus (0)

Pakkumise kirjeldus:

Pakkumine eelprojektidele. hind sisaldab projekti, energiamärgist ja menetlust KOVis, hind ei sisalda riigilõive,

Kasutaja ikoon ID48870
Pakkuja profiil Väike nool paremale
1 450€ Ei ole KMKR Ei ole KMKR 31.03.2025 Vestlus (10)

Pakkumise kirjeldus:

Ehitusprojekt eelprojekti staadiumis ehitisregistrile esitamiseks
Pakkumishind sisaldab:
Seletuskiri,Korruste plaanid, Katuse plaan,Hoone lõige, Hoone vaated, Avatäidete joonised, jm asjakohased vajalikud joonised, Asendiplaan
Kooskõlastused ehitusloa saamiseks
Ehitusloa taotluse esitamine ehistisregistrisse
Kui arve tuleb eraisikule siis saab ka ilm ... Rohkem

Kasutaja ikoon ID77238
Pakkuja profiil Väike nool paremale
1 460€ Ei ole KMKR Ei ole KMKR 31.03.2025 Vestlus (0)

Pakkumise kirjeldus:

Meie spetsialiseerumisvaldkonnaks on elamute projekteerimine. Koostame ehitusprojekti vastavalt EVS 932:2017 ja MKM määruse nr 97 „Nõuded ehitusprojektile“ nõuetele.

Antud hinnapakkumise koosseis sisaldab järgmisi sisu ja etappe:
1. konsultatsioon ja LÜ täpsustamine, ettepanekud pädeva arhitekti poolt;
1.2 lammutusprojekti EHR taotlusega koo ... Rohkem

Kasutaja ikoon ID78618
Pakkuja profiil Väike nool paremale
2 200€ KM lisandub KM lisandub 31.03.2025 Vestlus (0)

Pakkumise kirjeldus:

Arhitektuurne ehitusprojekt eelprojekti staadiumis vastavalt Eesti Vabariigis kehtivatele seadustele.

Hinnapakkumine ei sisalda ehitusgeoloogiliste, dendroloogiliste jms uuringute koostamist ega nende maksumust.
Projekti ja projekteerimisega seotud kooskõlastuste tasud ja riigilõivud tasub Tellija.

Maksmine: 80% enne projekti EHR-i sisestamist ja 20 ... Rohkem

Kasutaja ikoon ID87262
Pakkuja profiil Väike nool paremale
1 800€ Ei ole KMKR Ei ole KMKR 31.03.2025 Vestlus (0)

Pakkumise kirjeldus:

Tere!

1. Koostame ehitusprojekti vastavalt standarditele vajalikus mahus (nii lammutus- kui ka elumaja püstitamise ehitusprojekti).

- Soovi korral teeme tasuta 3D-visualiseeringud.

Meil on laialdane kogemus nii väiksemate kui ka suuremahuliste projektidega. Meie varasemate töödega saate tutvuda meie veebilehel. Omame MTR-i registreeringut.

Om ... Rohkem

Küsimused hanke korraldajale

Küsimus: private ID26988   29.03.2025 07:37
Palun lisage mingi pilt soovitud majast.

Teavita reeglite rikkumisest

Korraldaja vastus: 30.03.2025 08:53

Fotod lisatud!

Teavita reeglite rikkumisest

Lisa küsimus

Lisa küsimus

Minu pakkumine

Reeglid

Pakkumise kirjelduse väli on mõeldud pakkumise detailsemaks lahti kirjutamiseks. Pikema teksti mugavaks sisestamiseks klikkige kasti paremal ülaservas oleval ikoonil.
Pakkumist tehes on keelatud postitada enda kontaktandmeid (nimi, telefon, aadress jne). Me jälgime ja analüüsime pakkumisi, et vältida pettuseid ja reeglite rikkumisi.
Rikkumise puhul kasutajakonto blokeeritakse.

 

Teisi töid samas valdkonnas

Valdkonnas "Ehitusprojektid" on 7 aktiivset tööd

Eramu ehitusprojekt

Asukoht: Tartumaa
Aega jäänud: 13p 12h
Tehtud pakkumisi: 4

Biopuhasti ja imbväljaku paigalduseks ehitusprojekti koostamine ja Ehitusteatise esitamine Ehitisregistrisse

Asukoht: Jõgevamaa, Võduvere
Aega jäänud: 12h 13 min
Tehtud pakkumisi: 4

Vanemad teated:

Vaata kõiki

Sellel veebilehel kasutatakse küpsiseid. Kasutamist jätkates nõustute küpsiste kasutamisega.

Sulge
 
Minu pakkumine

Reeglid

Pakkumise kirjelduse väli on mõeldud pakkumise detailsemaks lahti kirjutamiseks. Pikema teksti mugavaks sisestamiseks klikkige kasti paremal ülaservas oleval ikoonil.
Pakkumist tehes on keelatud postitada enda kontaktandmeid (nimi, telefon, aadress jne). Me jälgime ja analüüsime pakkumisi, et vältida pettuseid ja reeglite rikkumisi.
Rikkumise puhul kasutajakonto blokeeritakse.