+ Lisa oma töö      

Otsid ehitajat "Projekteerimine" valdkonnast?

Parima pakkumise ja teostaja leidmiseks lisa oma töö.

Hange on lõppenud!

Võitjaks osutus kasutaja ID 40011

Renoveerimisprojekt eramajale

ID 112366

1090 vaatamist

Prindi

  • check Pakkumiste tegemine
    kuni 31.03.2025
  • check Võitja valik kuni
    31.03.2025
  • 3 Töö teostamine
    ja hinnang
Hanke lõpp: E, 31. märts, 2025
Maakond: Pärnumaa
Linn: Pärnu
Tööde lõpp: N, 10. aprill, 2025
Ehitusmaterjalid: Töö tegija poolt
Soovin pakkumisi: Summa kogu projektile

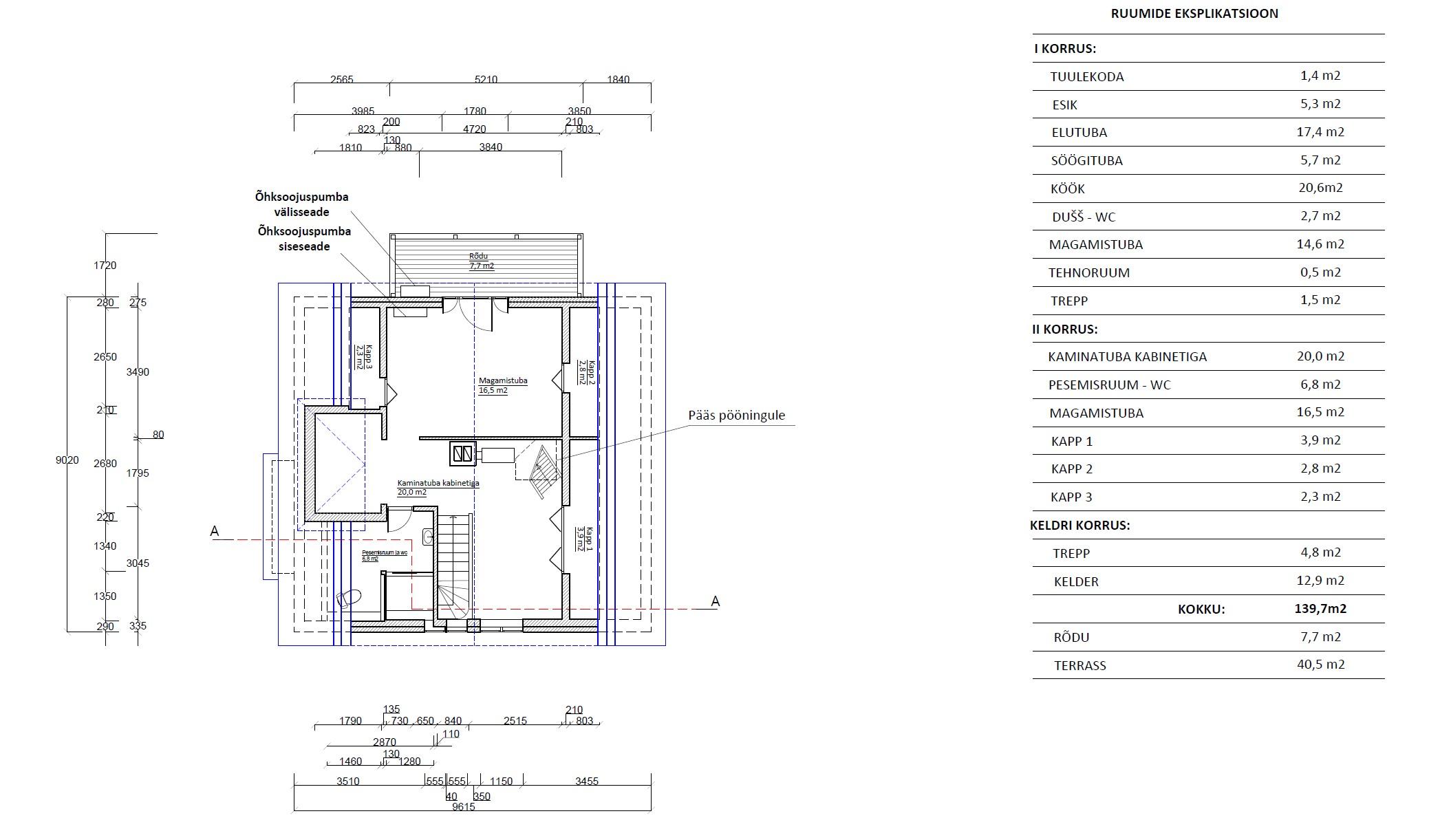
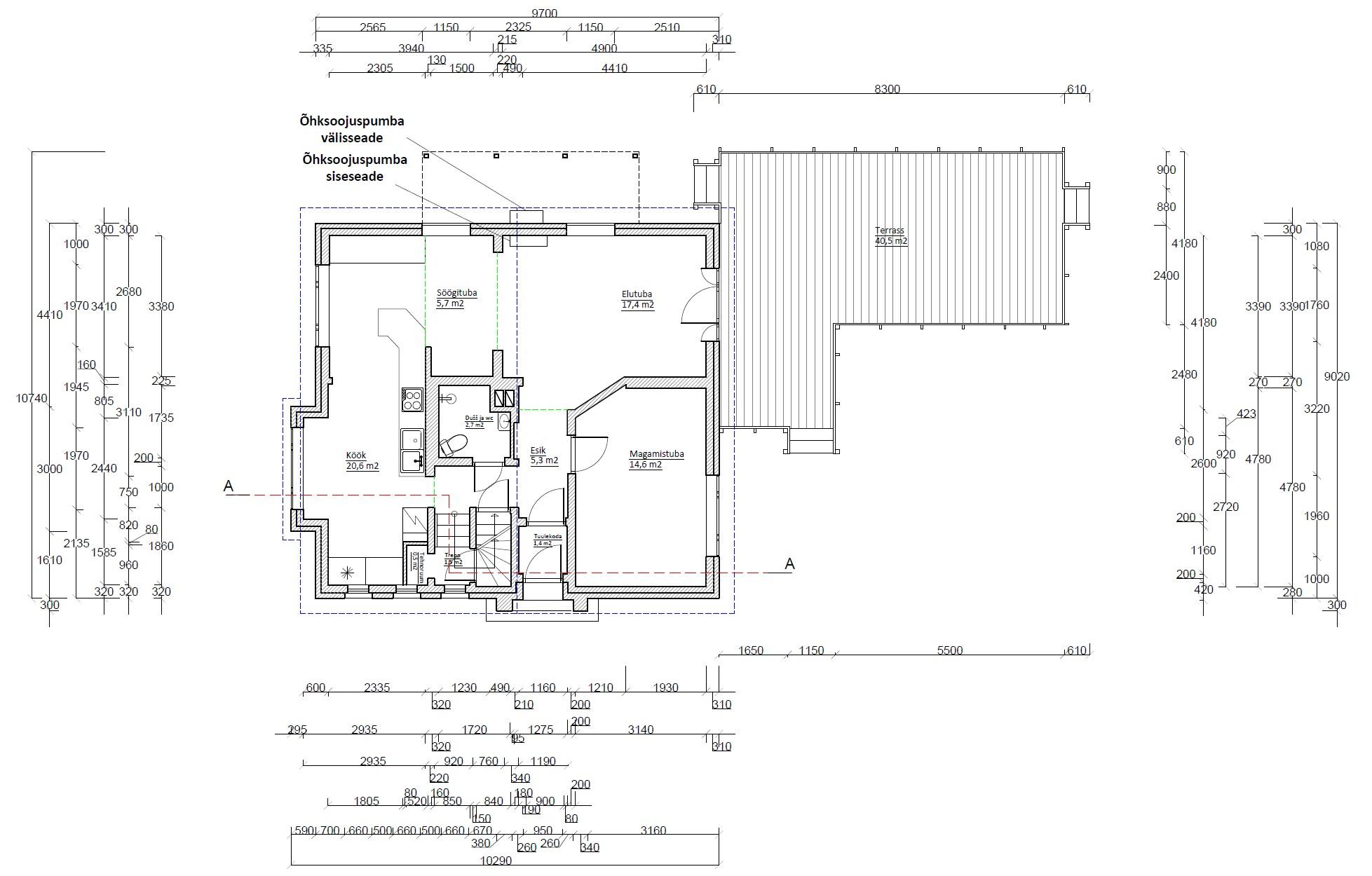
Töö sisu

Tere!

Peame renoveerima 1966. aastal ehitatud eramaja Pärnus, kuid vajame selleks projekti. Plaanis on kogu hoone rekonstrueerimine, kuna maja osutus kehvas seisus olevaks. Lõplik stiil on barn-house, ilma räästasteta.
Aluseks on olemas originaal 1966a projekt ja 2a tagasi koostatud mõõdistusprojekt, kuid selles esineb erinevaid vigu ja ebatäpsusi, mida saan jooksvalt selgitada. Majas käivad praegu lammutustööd, alles jäävad vaid kandvad konstruktsioonid.

Hoone andmed:
Ehitusaasta: 1966
Välissein (joonis manuses):Kokku 26cm - topelt plank 14cm (kahene püst pruss 70x190mm, ), 32mm õhuvahe (PIR vahuga täidetud), silikaattellis 250*120*88.
Katusekalle: 52.5 kraadi
Korrused: Kelder 13m2, esimene korrus 70m2, teine korrus 50m2, pööning 15m2
Kokku pinda: ~130m2(ilma pööninguta)



PLAAN
KATUS:
Eemaldada — plekk , 15cm-18cm EPS soojustuse.
Lisandub — aurutõke (maja seest), 15cm sarikate kõrgust, 35-40cm kivivilla, tuuletõkke, roovitus, Monier(Teviva Cisar) kivid, osaliselt kasutame lõuna poolel päikesepaneele Solar Tiled Roof (paneel on 105w, 1790mm laiusega, tuleb kivi asemele, mitte peale) 5tk ühes reas, 10 rida.
Lisandub vintskapp lamekatusega lõuna poolel, vintskapi välisseinad katame Monier kividega.

VÄLISSEINAD:
Eemaldame — sisevoodrilaudist ja NSV ajast kipsi;
Jääb — Püstplank 7+7cm, 4cm õhuvahe mis on PIR vahuga täidetud, 8.8cm silikaattellis
Lisandub(väljast) — 44x150mm puitkarkass, 150mm kivivill, tuuletõkke, roovitus, vertikaalne laudis.
Välisseinte sisekateks jääb osaliselt olemasolev püstplank (kui leiame sobiva lahenduse, millega katta 5-12 mm vahed) ja osaliselt paigaldame kipsplaadid metallkarkassi peale.

RÕDU:
Olemasoleva demonteerime, tuleb "rootsi" rõdu.

SOKKEL:
Lisandub — hüdroisolatsioon, horisontaalne ja vertikaalne soojustus EPS100m, 150mm; drenaaž perimeetril.

PÕRAND (1.k):
Eemaldame — vana laudis, liiv.
Lisandada — EPS100 200mm, (kile?), 60mm EPS põrandakütte plaat (vee küttetorukandur), armatuurvõrk, 100mm betoon.

AVATÄITED:
Eemaldame — kõik vanad aknad ja uksed.
Paigaldame — kolmekordsed pakettaknad halli raamiga (värv võib veel muutuda, ootame hinnapakkumisi).
Ühest aknast teeme ukse ning lisame mõned aknad juurde – täpsustame jooniste põhjal.

KÜTE:
Eemaldame — esimese korruse kivikamina (ei vasta tuleohutusnõuetele) ja teise korruse plekkkamina; mõlemad vanad õhksoojuspumbad.
Lisame esimesele korrusele soojust salvestava ahju ning keldrikorrusele õhk-vesi soojuspumba. Välisosa tuleb maja ette.
Esimesele korrusele paigaldame põrandaküttetorustiku, teisele korrusele radiaatorid.

VENT.:
Paigaldame — vent. agregaat soojustagastusega keldrisse, torustik tuleb esimesele ja teisele korrusele

TERRASS:
Eemaldame olemasoleva konstruktsiooni, kuna kõik lauad ja prussid on läbi.
Ehitame sarnase, eskiis on valmimisel.

Pildid, video ja failid

Hanke korraldaja: eraisik ID88952

Pakkumised

Pakkumisi kokku: 3

Ettevõte Summa Käibemaks Lisatud Vestlus
Kasutaja ikoon ID78425
Pakkuja profiil Väike nool paremale
5 300€ KM lisandub KM lisandub 27.03.2025 Vestlus (0)

Pakkumise kirjeldus:

Oleme 15 aastase projekteerimiskogemusega arhitektuuribüroo ning teinud sadu projekte üle eesti ning omame 10 spetsialisti näol piisavalt kompetentsi.
Arhitektuurne eelprojekt (asendiplaan, seletuskiri, korruste plaanid, vaated, lõiked) 3900-
Olemasolevate jooniste põhjal Archicad 3D mudeli ülesse ehitamine 800-
Ehitusloa taotlus ja menetlus (Proj ... Rohkem

Kasutaja ikoon ID76566
Pakkuja profiil Väike nool paremale
2 200€ KM lisandub KM lisandub 29.03.2025 Vestlus (6)

Pakkumise kirjeldus:

Tere!

Väljatoodud hinnas pakume arhitektuurse eelprojekti koostamist hoone püstitamiseks ja kooskõlastamist omavalitsusega.

Töömaht sisaldab:

- Eelprojekti taotluse joonised: vundament, korruste plaanid, katuseplaan, maja sektsioon, vaated, krundi planeering geoalusel
- Seletuskiri
- Taotluste esitamist ning kohaliku omavalitsusega suhtlu ... Rohkem

Kasutaja ikoon ID40011
Pakkuja profiil Väike nool paremale
2 100€ Ei ole KMKR Ei ole KMKR 31.03.2025 Vestlus (6)

Pakkumise kirjeldus:

Pakkumine eelprojektile, energiamärgis ja menetlusega KOVis

Küsimused hanke korraldajale

Küsimus: private ID80789   26.03.2025 20:58
Tere, kas saaksite lisada akende spetsifikatsiooni koos mõõtudega, et teha õige hinnapakkumine?

Teavita reeglite rikkumisest

Korraldaja vastus: 27.03.2025 11:02

Tere, tänan küsimuse eest. Avatäidete spetsifikatsioon on hetkel lahtine. Täna tegelen sellega, määran lõplikud mõõdud ja lisan need hankesse.

Teavita reeglite rikkumisest

Lisa küsimus

Lisa küsimus

Minu pakkumine

Reeglid

Pakkumise kirjelduse väli on mõeldud pakkumise detailsemaks lahti kirjutamiseks. Pikema teksti mugavaks sisestamiseks klikkige kasti paremal ülaservas oleval ikoonil.
Pakkumist tehes on keelatud postitada enda kontaktandmeid (nimi, telefon, aadress jne). Me jälgime ja analüüsime pakkumisi, et vältida pettuseid ja reeglite rikkumisi.
Rikkumise puhul kasutajakonto blokeeritakse.

 

Teisi töid samas valdkonnas

Valdkonnas "Projekteerimine" on 6 aktiivset tööd

no-img Pilt puudub

1-kordse 120 m2 elumaja põhiprojekt

Asukoht: Harjumaa, Metsanurme
Aega jäänud: 8p 15h
Tehtud pakkumisi: 4

no-img Pilt puudub

Saunamaja eelprojekt ehitusteatiseks

Asukoht: Lääne-Virumaa
Aega jäänud: 1p 15h
Tehtud pakkumisi: 3

Vanemad teated:

Vaata kõiki

Sellel veebilehel kasutatakse küpsiseid. Kasutamist jätkates nõustute küpsiste kasutamisega.

Sulge
 
Minu pakkumine

Reeglid

Pakkumise kirjelduse väli on mõeldud pakkumise detailsemaks lahti kirjutamiseks. Pikema teksti mugavaks sisestamiseks klikkige kasti paremal ülaservas oleval ikoonil.
Pakkumist tehes on keelatud postitada enda kontaktandmeid (nimi, telefon, aadress jne). Me jälgime ja analüüsime pakkumisi, et vältida pettuseid ja reeglite rikkumisi.
Rikkumise puhul kasutajakonto blokeeritakse.