+ Lisa oma töö      

Otsid ehitajat "Ehitusprojektid" valdkonnast?

Parima pakkumise ja teostaja leidmiseks lisa oma töö.

Ventilatsiooniprojekt

ID 111763

1179 vaatamist

Prindi

  • check Pakkumiste tegemine
    kuni 31.03.2025
  • check Võitja valik kuni
    07.04.2025
  • 3 Töö teostamine
    ja hinnang
Hanke lõpp: E, 31. märts, 2025
Maakond: Harjumaa
Tööde lõpp: Kokkuleppel
Ehitusmaterjalid: Töö tellija poolt
Soovin pakkumisi: Summa kogu projektile

Töö sisu

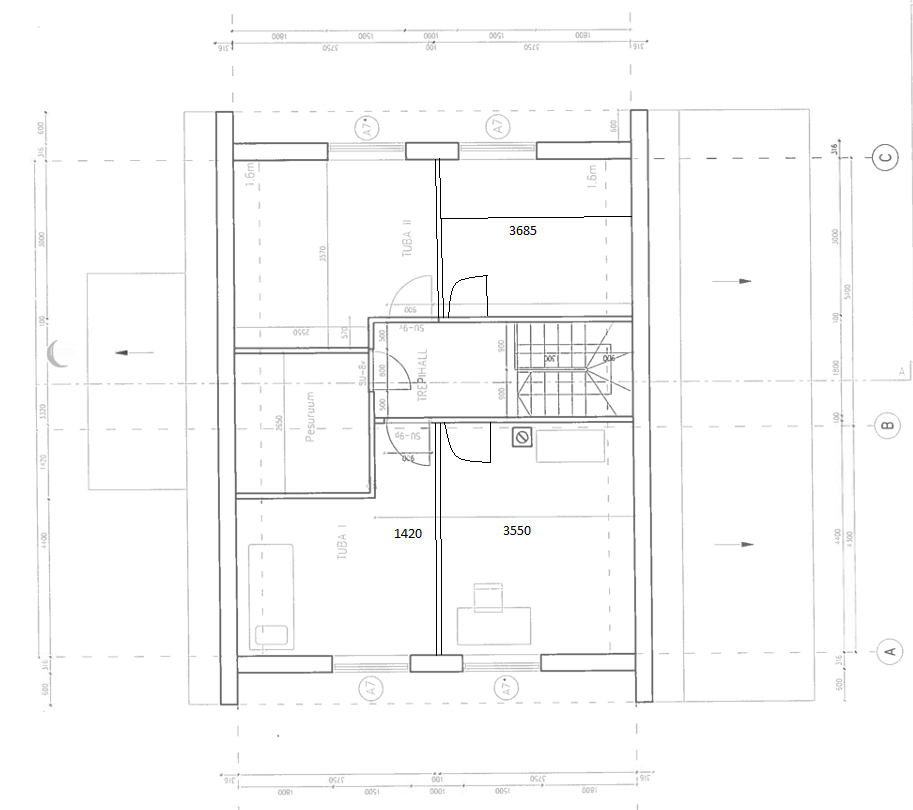
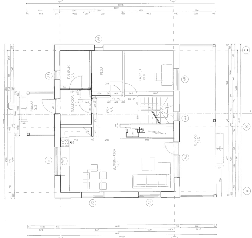
Soovin paigaldada elamule mehhaanilise sissepuhe ja väljatõmme soojustagastusega ventilatsioonisüsteemi. Oleks vaja projekti, mida kohalikule omavalitsusele esitada.
(näidata asukoht plaanijoonisel ja lisada selgitused - seletuskiri)
Digitaalsel kujul ehitusprojekti pole.

Pildid, video ja failid

Hanke korraldaja: eraisik ID78193

Pakkumised

Pakkumisi kokku: 3

Ettevõte Summa Käibemaks Lisatud Vestlus
Kasutaja ikoon ID52325
Pakkuja profiil Väike nool paremale
600€ KM lisandub KM lisandub 17.03.2025 Vestlus (0)

Pakkumise kirjeldus:

Tere,

Pakkumine sisaldab soojustagastusega ventilatsioonisüsteemi põhiprojekti. Sinna kuuluvad õhuvooluhulkade arvutus, agregaadi valimine, sissepuhke- ja väljatõmbekanalite projekteerimine, mürasummutid ja õhujaoturite valik. Lisaks koostatakse seletuskiri koos põhimaterjali loeteluga ning lisatakse vastutava spetsialisti allkiri. Alustada saaks ... Rohkem

Kasutaja ikoon ID87046
Pakkuja profiil Väike nool paremale
430€ Sisaldab KM Sisaldab KM 30.03.2025 Vestlus (0)
Kasutaja ikoon ID48870
Pakkuja profiil Väike nool paremale
1 450€ KM lisandub KM lisandub 31.03.2025 Vestlus (0)

Pakkumise kirjeldus:

Tere
minu pakkumine on 1450 eurot

Küsimused hanke korraldajale

Küsimus: private ID76235   18.03.2025 10:07
Tere
Kas oleks võimalik täpsustada korruse kõrgus?

Teavita reeglite rikkumisest

Korraldaja vastus: 24.03.2025 11:23

Esimene korrus on 2,4m ja teine 2,7m.

Teavita reeglite rikkumisest

Lisa küsimus

Lisa küsimus

Minu pakkumine

Reeglid

Pakkumise kirjelduse väli on mõeldud pakkumise detailsemaks lahti kirjutamiseks. Pikema teksti mugavaks sisestamiseks klikkige kasti paremal ülaservas oleval ikoonil.
Pakkumist tehes on keelatud postitada enda kontaktandmeid (nimi, telefon, aadress jne). Me jälgime ja analüüsime pakkumisi, et vältida pettuseid ja reeglite rikkumisi.
Rikkumise puhul kasutajakonto blokeeritakse.

 

Teisi töid samas valdkonnas

Valdkonnas "Ehitusprojektid" on 3 aktiivset tööd

no-img Pilt puudub

Eraldiseisva korterelamu vahetu liitumine ühisveevärgiga.

Asukoht: Harjumaa, Tallinn
Aega jäänud: 3p 20h
Tehtud pakkumisi: 0

Vanemad teated:

Vaata kõiki

Sellel veebilehel kasutatakse küpsiseid. Kasutamist jätkates nõustute küpsiste kasutamisega.

Sulge
 
Minu pakkumine

Reeglid

Pakkumise kirjelduse väli on mõeldud pakkumise detailsemaks lahti kirjutamiseks. Pikema teksti mugavaks sisestamiseks klikkige kasti paremal ülaservas oleval ikoonil.
Pakkumist tehes on keelatud postitada enda kontaktandmeid (nimi, telefon, aadress jne). Me jälgime ja analüüsime pakkumisi, et vältida pettuseid ja reeglite rikkumisi.
Rikkumise puhul kasutajakonto blokeeritakse.