+ Lisa oma töö      

Otsid ehitajat "Ehitusprojektid" valdkonnast?

Parima pakkumise ja teostaja leidmiseks lisa oma töö.

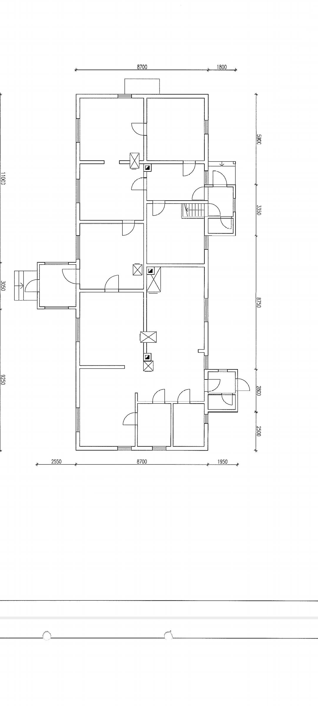
Wc, dush märgruumide püstaku ehitusprojekt 2 korrusel, puumajas

ID 111596

887 vaatamist

Prindi

  • check Pakkumiste tegemine
    kuni 16.03.2025
  • check Võitja valik kuni
    23.03.2025
  • 3 Töö teostamine
    ja hinnang
Hanke lõpp: P, 16. märts, 2025
Maakond: Võrumaa
Muu asula: Haabsaare
Tööde lõpp: Kokkuleppel
Ehitusmaterjalid: Töö tegija poolt
Soovin pakkumisi: Summa kogu projektile

Pildid, video ja failid

Hanke korraldaja: eraisik ID55784

Pakkumised

Pakkumisi kokku: 1

Ettevõte Summa Käibemaks Lisatud Vestlus
Kasutaja ikoon ID86959
Pakkuja profiil Väike nool paremale
1 000€ KM lisandub KM lisandub 16.03.2025 Vestlus (17)

Pakkumise kirjeldus:

Tere, info puuduse tõttu raske pakkumist teha, kuid ootan infot.

Lisaküsimuste korral vastan meeleldi!

Lugupidamisega

Küsimused hanke korraldajale

Hanke korraldajale ei ole veel küsimusi esitatud.

Lisa küsimus

Lisa küsimus

Minu pakkumine

Reeglid

Pakkumise kirjelduse väli on mõeldud pakkumise detailsemaks lahti kirjutamiseks. Pikema teksti mugavaks sisestamiseks klikkige kasti paremal ülaservas oleval ikoonil.
Pakkumist tehes on keelatud postitada enda kontaktandmeid (nimi, telefon, aadress jne). Me jälgime ja analüüsime pakkumisi, et vältida pettuseid ja reeglite rikkumisi.
Rikkumise puhul kasutajakonto blokeeritakse.

 

Teisi töid samas valdkonnas

Valdkonnas "Ehitusprojektid" on 7 aktiivset tööd

Eramu ehitusprojekt

Asukoht: Tartumaa
Aega jäänud: 13p 12h
Tehtud pakkumisi: 4

Biopuhasti ja imbväljaku paigalduseks ehitusprojekti koostamine ja Ehitusteatise esitamine Ehitisregistrisse

Asukoht: Jõgevamaa, Võduvere
Aega jäänud: 12h 11 min
Tehtud pakkumisi: 4

Vanemad teated:

Vaata kõiki

Sellel veebilehel kasutatakse küpsiseid. Kasutamist jätkates nõustute küpsiste kasutamisega.

Sulge
 
Minu pakkumine

Reeglid

Pakkumise kirjelduse väli on mõeldud pakkumise detailsemaks lahti kirjutamiseks. Pikema teksti mugavaks sisestamiseks klikkige kasti paremal ülaservas oleval ikoonil.
Pakkumist tehes on keelatud postitada enda kontaktandmeid (nimi, telefon, aadress jne). Me jälgime ja analüüsime pakkumisi, et vältida pettuseid ja reeglite rikkumisi.
Rikkumise puhul kasutajakonto blokeeritakse.