+ Lisa oma töö      

Otsid ehitajat "Ehitusprojektid" valdkonnast?

Parima pakkumise ja teostaja leidmiseks lisa oma töö.

Hange on lõppenud!

Võitjaks osutus kasutaja ID 86806

Korteri projekt

ID 110775

958 vaatamist

Prindi

  • check Pakkumiste tegemine
    kuni 01.03.2025
  • check Võitja valik kuni
    08.03.2025
  • 3 Töö teostamine
    ja hinnang
Hanke lõpp: L, 1. märts, 2025
Maakond: Tartumaa
Muu asula: Ülenurme
Tööde lõpp: Kokkuleppel
Ehitusmaterjalid: Töö tellija poolt
Soovin pakkumisi: Summa kogu projektile

Töö sisu

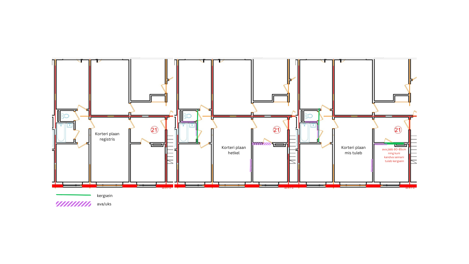
30a tagasi on eelmised omanikud kandvasse seina teinud ava, ning nüüd on vaja selle kohta projekti ja sissekandeid, et korterit müüa.

Hindamisaktis olev kirjeldus:
Korteri planeeringut on muudetud, eemaldatud on osaliselt koridori ja elutoa vaheline seina ja WC ja vannituba eraldav sein, tualeti poolne uks suletakse. Kuna tegemist on kergseintega, pole ehitusseadustiku järgi tegu ümberehitamisega. Köögi ja elutoa vahelise seina sisse on rajatud ava, omaniku esindaja sõnul on tegemist kandva seinaga. Ümberehitamise kohta ei ole esitatud ehitus- ja kasutusteatist. Suurpaneel-korterelamutes kandekonstruktsioonide muutmisel tuleb koostada ehitusprojekt ja esitada ehitus- ja kasutusteatis.

Pildid, video ja failid

Hanke korraldaja: eraisik ID88207

Pakkumised

Pakkumisi kokku: 2

Ettevõte Summa Käibemaks Lisatud Vestlus
Kasutaja ikoon ID86806
Pakkuja profiil Väike nool paremale
600€ Ei ole KMKR Ei ole KMKR 27.02.2025 Vestlus (0)

Pakkumise kirjeldus:

Tere, korteri rekonstrueerimisprojekti koostamine ja ehitusteatise ning kasutusteatise taotlemine

Kasutaja ikoon ID77238
Pakkuja profiil Väike nool paremale
600€ Ei ole KMKR Ei ole KMKR 28.02.2025 Vestlus (0)

Pakkumise kirjeldus:

Hind sisaldab arhitektuurset projekti ja EHR-taotluse ettevalmistust.
Võimaliku konstruktiivse või tehnilise ekspertiisi vajaduse korral tuleb lisatasus eraldi kokku leppida.

Küsimused hanke korraldajale

Küsimus: private ID87262   27.02.2025 17:30
Tere,

Kui suur ava on tehtud kandvas seinas?

Teavita reeglite rikkumisest

Korraldaja vastus: 27.02.2025 18:35

Tere!

Köögist elutuppa on laius on 1m ning kõrgus ~2,1m.
Köögist esikusse jääb ava laiusega 0,8-0,85 maast laeni ehk ~2,5 ülejäänud ehitatakse kinni. Hetkel on ava ~1,75m

Teavita reeglite rikkumisest

Lisa küsimus

Lisa küsimus

Minu pakkumine

Reeglid

Pakkumise kirjelduse väli on mõeldud pakkumise detailsemaks lahti kirjutamiseks. Pikema teksti mugavaks sisestamiseks klikkige kasti paremal ülaservas oleval ikoonil.
Pakkumist tehes on keelatud postitada enda kontaktandmeid (nimi, telefon, aadress jne). Me jälgime ja analüüsime pakkumisi, et vältida pettuseid ja reeglite rikkumisi.
Rikkumise puhul kasutajakonto blokeeritakse.

 

Teisi töid samas valdkonnas

Valdkonnas "Ehitusprojektid" on 6 aktiivset tööd

no-img Pilt puudub

Ehitusinsener tase 7 vastutav allikiri

Asukoht: Pärnumaa, Pärnu
Aega jäänud: 12h 42 min
Tehtud pakkumisi: 2

Korteri elektri projekt

Asukoht: Harjumaa, Tallinn
Aega jäänud: 2p 12h
Tehtud pakkumisi: 2

Vanemad teated:

Vaata kõiki

Sellel veebilehel kasutatakse küpsiseid. Kasutamist jätkates nõustute küpsiste kasutamisega.

Sulge
 
Minu pakkumine

Reeglid

Pakkumise kirjelduse väli on mõeldud pakkumise detailsemaks lahti kirjutamiseks. Pikema teksti mugavaks sisestamiseks klikkige kasti paremal ülaservas oleval ikoonil.
Pakkumist tehes on keelatud postitada enda kontaktandmeid (nimi, telefon, aadress jne). Me jälgime ja analüüsime pakkumisi, et vältida pettuseid ja reeglite rikkumisi.
Rikkumise puhul kasutajakonto blokeeritakse.