+ Lisa oma töö      

Otsid ehitajat "Projekteerimine" valdkonnast?

Parima pakkumise ja teostaja leidmiseks lisa oma töö.

Hange on lõppenud!

Võitjaks osutus kasutaja ID 86806

Korraldaja hinnang tehtud tööle

5.0
01.08.2025
Töökiirus: 12345
Kvaliteet: 12345
Hind: 12345

Korteri ümberehituse projekti koostamine

ID 110603

1236 vaatamist

Prindi

  • check Pakkumiste tegemine
    kuni 01.03.2025
  • check Võitja valik kuni
    08.03.2025
  • 3 Töö teostamine
    ja hinnang
Hanke lõpp: L, 1. märts, 2025
Maakond: Harjumaa
Linn: Tallinn
Tööde lõpp: Kokkuleppel
Ehitusmaterjalid: Töö tellija poolt
Soovin pakkumisi: Summa kogu projektile

Töö sisu

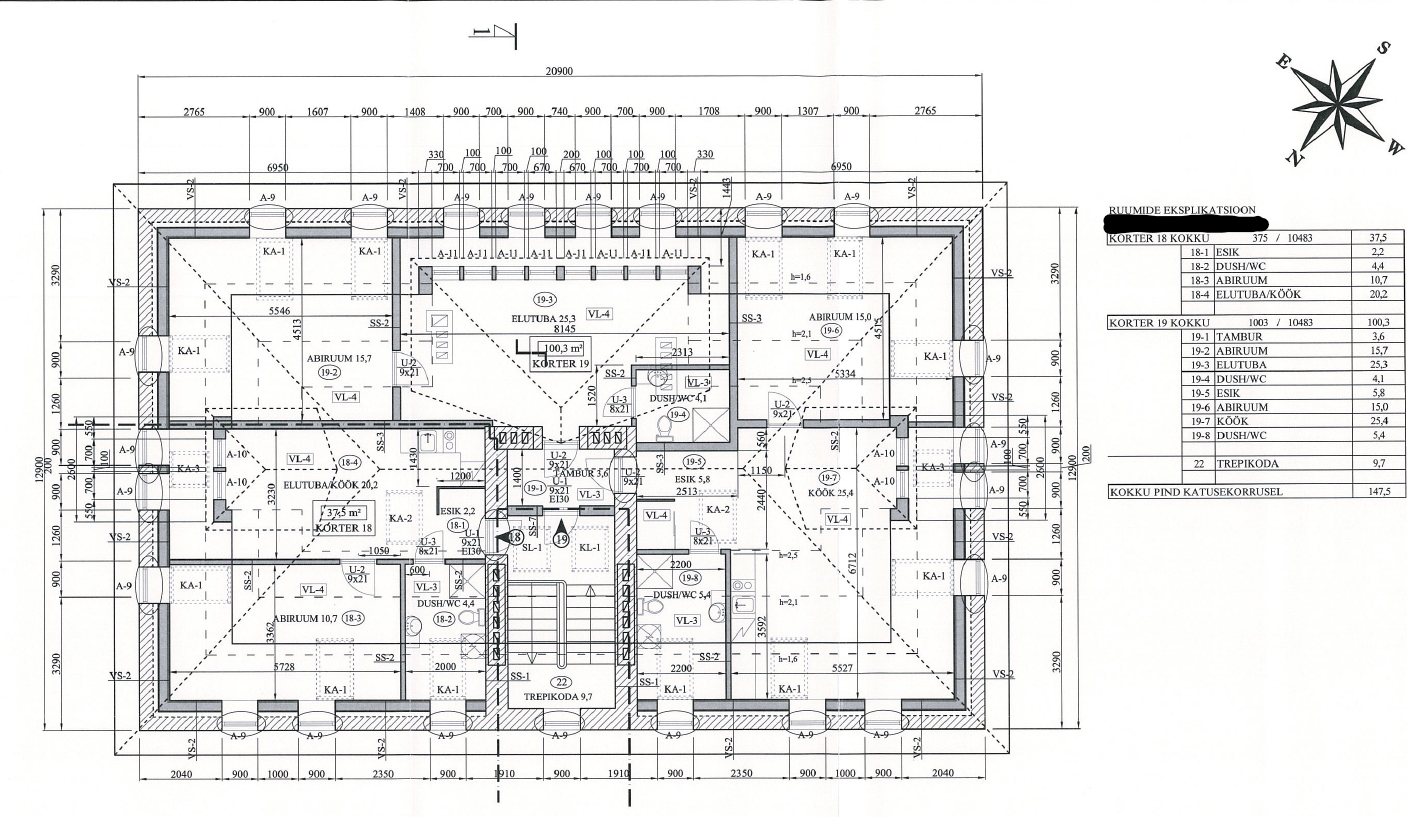
Õigulikul alusel on arendaja poolt 2015 a. ümberehitanud Tallinnas asuv kortermaja, millega on korterid rajatud katusekorrusele. Katusekorruse plaanil kajastuv Korter 19 on registreeritud kaasomandina. Omanikud soovivad tänaseks kaasomandit ümbervormistada korteriomanditeks. Mõlemas korteris on plaani pealt mõõdetuna vähemalt 1 eluruum (elutuba) mis vastab ''eluruumidele esitavatele nõuetele'' ehk saaks korteriomandid moodustada 1 toaliste korteritena. Varasema projekti seinte spetsifikatsioonide põhjal selgub, et korterite vahel juba on tuletõkkesein (SS-03) ja reaaluses olemas ka korteritel tuletõkkeuksed. Vajalik koostada korteri 19 ümberehituse projekt, mis vastaks kõikidele projekteerimisele esitatud nõuetele (seadustik, määrused, standardid), mille alusel moodustada kaks eraldi korteriomandit.

Tellija poolt:

1) Ehitisregistri toimingud
2) Varasem projekt (pdf)
3) Vajadusel fotode ja mõõtude edastamine

Pakkuja poolt:

1) Vajadusel kohapealne ülevaatus
2) Pädeva isiku poolt, korteri ümberehituse projekti koostamine, eelprojekti mahus
3) Kasutusteatise järgselt, hoonejaotusplaani koostamine

Pildid, video ja failid

Hanke korraldaja: ettevõte ID77562

Pakkumised

Pakkumisi kokku: 3

Ettevõte Summa Käibemaks Lisatud Vestlus
Kasutaja ikoon ID76091
Pakkuja profiil Väike nool paremale
3 000€ Ei ole KMKR Ei ole KMKR 25.02.2025 Vestlus (0)

Pakkumise kirjeldus:

Vastavalt standarditele ja määrustele

Kasutaja ikoon ID86806
Pakkuja profiil Väike nool paremale
1 400€ Ei ole KMKR Ei ole KMKR 26.02.2025 Vestlus (3)

Pakkumise kirjeldus:

Tere! pakkumine sisaldab:
- kohapealne ülevaatus ja kontrollmõõdistamine
- ümberehituse eelprojekti koostamine
- korruste plaanide koostamine kasutusteatise järgselt

Kasutaja ikoon ID77238
Pakkuja profiil Väike nool paremale
950€ Ei ole KMKR Ei ole KMKR 28.02.2025 Vestlus (0)

Küsimused hanke korraldajale

Hanke korraldajale ei ole veel küsimusi esitatud.

Lisa küsimus

Lisa küsimus

Minu pakkumine

Reeglid

Pakkumise kirjelduse väli on mõeldud pakkumise detailsemaks lahti kirjutamiseks. Pikema teksti mugavaks sisestamiseks klikkige kasti paremal ülaservas oleval ikoonil.
Pakkumist tehes on keelatud postitada enda kontaktandmeid (nimi, telefon, aadress jne). Me jälgime ja analüüsime pakkumisi, et vältida pettuseid ja reeglite rikkumisi.
Rikkumise puhul kasutajakonto blokeeritakse.

 

Teisi töid samas valdkonnas

Valdkonnas "Projekteerimine" on 7 aktiivset tööd

no-img Pilt puudub

1-kordse 120 m2 elumaja põhiprojekt

Asukoht: Harjumaa, Metsanurme
Aega jäänud: 9p
Tehtud pakkumisi: 4

no-img Pilt puudub

Saunamaja eelprojekt ehitusteatiseks

Asukoht: Lääne-Virumaa
Aega jäänud: 2p
Tehtud pakkumisi: 3

Vanemad teated:

Vaata kõiki

Sellel veebilehel kasutatakse küpsiseid. Kasutamist jätkates nõustute küpsiste kasutamisega.

Sulge
 
Minu pakkumine

Reeglid

Pakkumise kirjelduse väli on mõeldud pakkumise detailsemaks lahti kirjutamiseks. Pikema teksti mugavaks sisestamiseks klikkige kasti paremal ülaservas oleval ikoonil.
Pakkumist tehes on keelatud postitada enda kontaktandmeid (nimi, telefon, aadress jne). Me jälgime ja analüüsime pakkumisi, et vältida pettuseid ja reeglite rikkumisi.
Rikkumise puhul kasutajakonto blokeeritakse.