+ Lisa oma töö      

Otsid ehitajat "Projekteerimine" valdkonnast?

Parima pakkumise ja teostaja leidmiseks lisa oma töö.

Hange on lõppenud!

Võitjaks osutus kasutaja ID 26988

Korteri mõõdistusprojekti koostamine ning andmete korrastamine ehitisregistris ja kinnistusraamatus

ID 110486

1052 vaatamist

Prindi

  • check Pakkumiste tegemine
    kuni 22.02.2025
  • check Võitja valik kuni
    01.03.2025
  • 3 Töö teostamine
    ja hinnang
Hanke lõpp: L, 22. veebruar, 2025
Maakond: Võrumaa
Linn: Võru
Tööde lõpp: Kokkuleppel
Ehitusmaterjalid: Töö tellija poolt
Soovin pakkumisi: Summa kogu projektile

Töö sisu

Töö sisu:

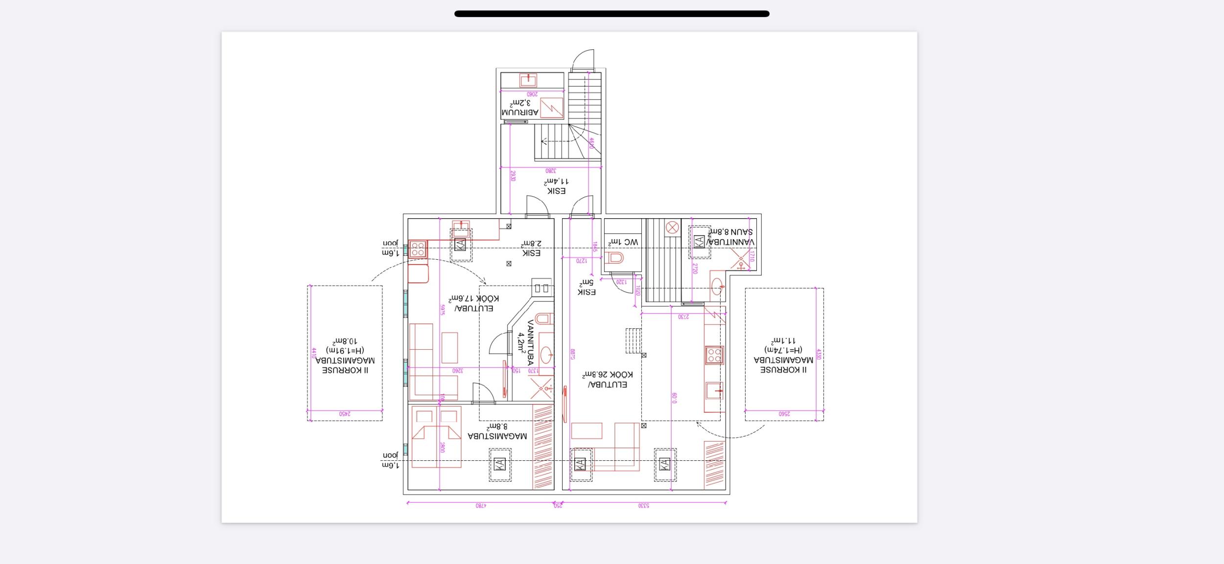
Ehitisregistrisse esitamiseks oleks vaja korrektset dokumentatsiooni/projekti juba teostatud tööde kohta 3-toalises korteris, et ajakohastada ruumiplaneeringut. Teostatud tööde käigus on eemaldatud mittekandvaid seinu erinevatel aegadel, samuti on mittekandvaid seinu lisatud.


Aastal 2000 koostatud mõõdistusprojekti järgi oli korteri pindala 51,5m2.

Aastal 2004 on tehtud uus mõõdistusprojekt ja korter ümber ehitatud müügisaal/kaupluseks. Pindala mõõdistusprojekti järgi oli 77,1m2, kuid eelmisel omanikul on jäänud ehitisregistris muudatused tegemata. 
Hetkel on sama ruum kasutusel korterina, planeeringut on muudetud ja paigaldatud on katuseaknad. Pindala on suurenenud katuse kalde all asuva ruumi ja pööningule ehitatud pooliku korruse (magala/panipaik) arvelt. Ligikaudne netopind on 95m2. 

Hoonel puudub üldkasutatav pind ja ülejäänud hoone arvelt pole korterit suurendatud. 


Paberkandjal on olemas Kurmik AS-i poolt koostatud 2000 ja 2004 aasta projektid.

Pildid, video ja failid

Hanke korraldaja: eraisik ID86383

Pakkumised

Pakkumisi kokku: 2

Ettevõte Summa Käibemaks Lisatud Vestlus
Kasutaja ikoon ID86806
Pakkuja profiil Väike nool paremale
1 200€ Ei ole KMKR Ei ole KMKR 19.02.2025 Vestlus (0)

Pakkumise kirjeldus:

Tere!

pakkumine sisaldab projekti koostamist ehri ja kinnistusraamatu kannete korrigeerimiseks. Vajalik kaasomanike nõusolek.

Kasutaja ikoon ID26988
Pakkuja profiil Väike nool paremale
950€ Ei ole KMKR Ei ole KMKR 20.02.2025 Vestlus (8)

Pakkumise kirjeldus:

Pakkumine sisaldab projekti ehitusteatise esitamiseks vajalikus mahus, vastavalt normidele ja standartidele ning Teie kirjeldusele. Kõik kooskõlastused ja asjaajamised kuni ehitusteatise registreerimiseni. Vajadusel konsultatsioonid ja mõõdistamine. Projekt digitaalselt Teile sobivates formaatides.

Küsimused hanke korraldajale

Hanke korraldajale ei ole veel küsimusi esitatud.

Lisa küsimus

Lisa küsimus

Minu pakkumine

Reeglid

Pakkumise kirjelduse väli on mõeldud pakkumise detailsemaks lahti kirjutamiseks. Pikema teksti mugavaks sisestamiseks klikkige kasti paremal ülaservas oleval ikoonil.
Pakkumist tehes on keelatud postitada enda kontaktandmeid (nimi, telefon, aadress jne). Me jälgime ja analüüsime pakkumisi, et vältida pettuseid ja reeglite rikkumisi.
Rikkumise puhul kasutajakonto blokeeritakse.

 

Teisi töid samas valdkonnas

Valdkonnas "Projekteerimine" on 7 aktiivset tööd

no-img Pilt puudub

1-kordse 120 m2 elumaja põhiprojekt

Asukoht: Harjumaa, Metsanurme
Aega jäänud: 8p 8h
Tehtud pakkumisi: 4

no-img Pilt puudub

Saunamaja eelprojekt ehitusteatiseks

Asukoht: Lääne-Virumaa
Aega jäänud: 1p 8h
Tehtud pakkumisi: 3

Vanemad teated:

Vaata kõiki

Sellel veebilehel kasutatakse küpsiseid. Kasutamist jätkates nõustute küpsiste kasutamisega.

Sulge
 
Minu pakkumine

Reeglid

Pakkumise kirjelduse väli on mõeldud pakkumise detailsemaks lahti kirjutamiseks. Pikema teksti mugavaks sisestamiseks klikkige kasti paremal ülaservas oleval ikoonil.
Pakkumist tehes on keelatud postitada enda kontaktandmeid (nimi, telefon, aadress jne). Me jälgime ja analüüsime pakkumisi, et vältida pettuseid ja reeglite rikkumisi.
Rikkumise puhul kasutajakonto blokeeritakse.