+ Lisa oma töö      

Otsid ehitajat "Projekteerimine" valdkonnast?

Parima pakkumise ja teostaja leidmiseks lisa oma töö.

Hange on lõppenud!

Võitjaks osutus kasutaja ID 83720

Korraldaja hinnang tehtud tööle

5.0
30.03.2025
Töökiirus: 12345
Kvaliteet: 12345
Hind: 12345

Selge kommunikatsioon ja kvaliteetne töö. Soovitan! - Toomas A.

Eramu mõõdistusprojekt

ID 110397

1384 vaatamist

Prindi

  • check Pakkumiste tegemine
    kuni 05.03.2025
  • check Võitja valik kuni
    05.03.2025
  • 3 Töö teostamine
    ja hinnang
Hanke lõpp: K, 5. märts, 2025
Maakond: Viljandimaa
Linn: Viljandi
Tööde lõpp: Kokkuleppel
Ehitusmaterjalid: Töö tegija poolt
Soovin pakkumisi: Summa kogu projektile

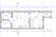
Töö sisu

Töö sisuks on nõuetekohase mõõdistusprojekti koostamine olemasolevale hoonele.

Tegu on paarismajaga, millest mõõdistusprojekti soovin ainult endale kuuluvale poolele. Maja on valminud nõukogude ajal ja hilisema renoveerimise käigus on välja ehitatud II korruse katusealused eluruumid. Mitte ühtegi joonist maja kohta teadaolevalt ei eksisteeri.

Objekti asukoht: Viljandi vald, 10 km Viljandi kesklinnast

Pildid, video ja failid

Hanke korraldaja: eraisik ID64061

Pakkumised

Pakkumisi kokku: 3

Ettevõte Summa Käibemaks Lisatud Vestlus
Kasutaja ikoon ID58147
Pakkuja profiil Väike nool paremale
900€ Sisaldab KM Sisaldab KM 24.02.2025 Vestlus (2)

Pakkumise kirjeldus:

Siseplaneeringu mõõdistusprojekt. Sisaldab 1x kohale sõitu mõõtude võtmiseks.

Kasutaja ikoon ID78702
Pakkuja profiil Väike nool paremale
1 000€ Ei ole KMKR Ei ole KMKR 03.03.2025 Vestlus (0)

Pakkumise kirjeldus:

Hinna sisse kuulub hoone arhitektuurne mõõdistusprojekt, mis koosneb järgmistest osadest:
1) asukoha skeem (ei ole sama mis Asendiplaan)
2) korruste plaanid
3) katuse plaan
4) lõige
5) vaated
6) lühike seletuskiri

Kõikvoimalikud uuringud, ekspertiisid, hinnangud jne ei kuulu hinna sisse.

Kasutaja ikoon ID83720
Pakkuja profiil Väike nool paremale
1 000€ Ikoon kell Ei ole KMKR Ei ole KMKR 04.03.2025 Vestlus (0)

Pakkumise kirjeldus:

Tere,

Pakkumine mõõdistusprojektile.

Pakkumine sisaldab:
- Hoone täpset mõõdistust.
- Vajadusel arhiivist vanade jooniste leidmine
- Hoone plaanid, lõiked ja vaated.
- Kogu joonestamine toimub 3D´s, hiljem võimalik Tellijale anda lisaks .pdf joonistele ka .ifc .dwg või mis tahes 3D mudeli laiend.

Pakkumine ei sisalda:
- Geodeetilist al ... Rohkem

Küsimused hanke korraldajale

Küsimus: private ID86895   20.02.2025 09:46
Tere

Kas Rahvusarhiivist olete jooniseid küsinud? Vahel ei leita dokumente seetõttu, et aadressiandmed on muutunud.

Teavita reeglite rikkumisest

Korraldaja vastus: 25.02.2025 20:05

Tänan küsimuse/vihje eest. Rahvusarhiivist õnnestus saada JPEG formaadis koopia hoonete asendiskeemist ja I korruse ruumide plaanist 1997. aasta seisuga, mis ei ole päris 100% ajakohane.

Teavita reeglite rikkumisest

Lisa küsimus

Lisa küsimus

Minu pakkumine

Reeglid

Pakkumise kirjelduse väli on mõeldud pakkumise detailsemaks lahti kirjutamiseks. Pikema teksti mugavaks sisestamiseks klikkige kasti paremal ülaservas oleval ikoonil.
Pakkumist tehes on keelatud postitada enda kontaktandmeid (nimi, telefon, aadress jne). Me jälgime ja analüüsime pakkumisi, et vältida pettuseid ja reeglite rikkumisi.
Rikkumise puhul kasutajakonto blokeeritakse.

 

Teisi töid samas valdkonnas

Valdkonnas "Projekteerimine" on 7 aktiivset tööd

Eramu renoveerimisprojekt

Asukoht: Lääne-Virumaa, Kadrina
Aega jäänud: 1p 22h
Tehtud pakkumisi: 7

Ehitusprojekt 129 m2 abihoone ümberehitamiseks ja suurendamiseks

Asukoht: Jõgevamaa, Pikknurme
Aega jäänud: 6p 22h
Tehtud pakkumisi: 4

Vanemad teated:

Vaata kõiki

Sellel veebilehel kasutatakse küpsiseid. Kasutamist jätkates nõustute küpsiste kasutamisega.

Sulge
 
Minu pakkumine

Reeglid

Pakkumise kirjelduse väli on mõeldud pakkumise detailsemaks lahti kirjutamiseks. Pikema teksti mugavaks sisestamiseks klikkige kasti paremal ülaservas oleval ikoonil.
Pakkumist tehes on keelatud postitada enda kontaktandmeid (nimi, telefon, aadress jne). Me jälgime ja analüüsime pakkumisi, et vältida pettuseid ja reeglite rikkumisi.
Rikkumise puhul kasutajakonto blokeeritakse.