+ Lisa oma töö      

Otsid ehitajat "Projekteerimine" valdkonnast?

Parima pakkumise ja teostaja leidmiseks lisa oma töö.

Korteri elektriprojekt

ID 109208

1075 vaatamist

Prindi

  • check Pakkumiste tegemine
    kuni 24.01.2025
  • check Võitja valik kuni
    31.01.2025
  • 3 Töö teostamine
    ja hinnang
Hanke lõpp: R, 24. jaanuar, 2025
Maakond: Harjumaa
Linn: Tallinn
Tööde lõpp: Kokkuleppel
Ehitusmaterjalid: Töö tegija poolt
Soovin pakkumisi: Summa kogu projektile

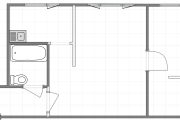
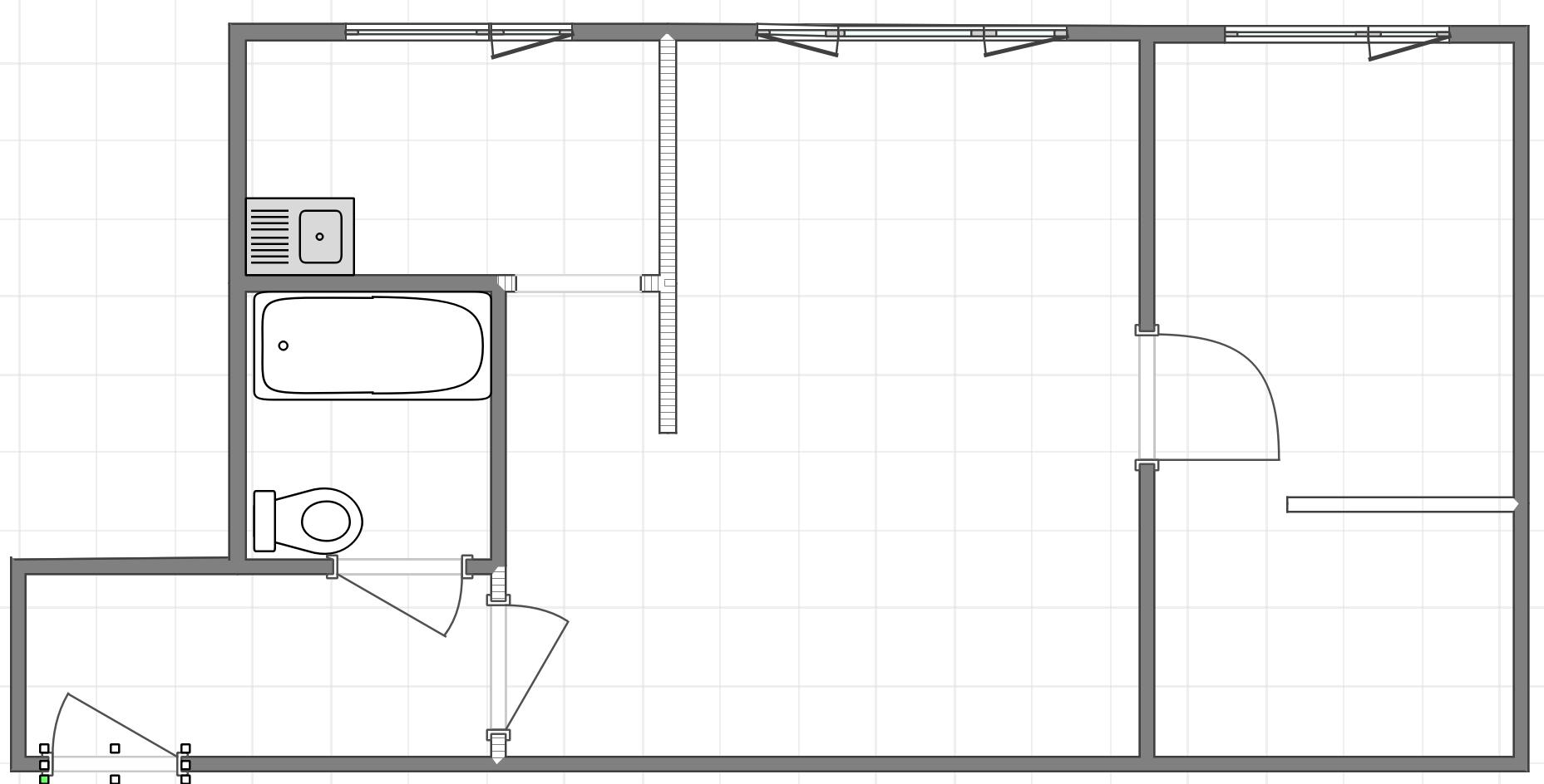
Töö sisu

Ootan elektriprojekti hinnapakkumisi

Pildid, video ja failid

Hanke korraldaja: eraisik ID87341

Pakkumised

Pakkumisi kokku: 5

Ettevõte Summa Käibemaks Lisatud Vestlus
Kasutaja ikoon ID73665
Pakkuja profiil Väike nool paremale
500€ KM lisandub KM lisandub 22.01.2025 Vestlus (0)

Pakkumise kirjeldus:

Juhul kui tahate lisada korteri muudatused ehr-sse, siis on 150 eur lisa.

Kasutaja ikoon ID31470
Pakkuja profiil Väike nool paremale
250€ KM lisandub KM lisandub 22.01.2025 Vestlus (0)

Pakkumise kirjeldus:

Tere,

teeme pakkumise antud korteri tugevvoolupaigaldise EVS standardile vastavas mahus põhiprojekti koostamiseks. Pärast lähteülesande kättesaamist saame projekti valmimise ajaks lubada maksimaalselt 1 töönädal. Töid teostab volitatud elektriinsener, tase 8 kutsetunnistusega isik.

Edu hankel!
Lugupidamisega, V.

Kasutaja ikoon ID79821
Pakkuja profiil Väike nool paremale
290€ KM lisandub KM lisandub 22.01.2025 Vestlus (0)

Pakkumise kirjeldus:

Eesti Vabariigi normidele ja EVS standarditele vastav kvaliteetne põhjalik põhiprojekt. Projekti valmimise aeg 10 päeva jooksul peale alusmaterjali ja lähteülesanne esitamist. Elektriprojekteerimise kogemus >10a., soovi korral esitame projektlahendused kogemuse alusel.

Hind sisaldab:
1. Tekstiline osa (tiitelleht, dokumentide nimekiri, seletuskiri, ... Rohkem

Kasutaja ikoon ID78673
Pakkuja profiil Väike nool paremale
450€ KM lisandub KM lisandub 22.01.2025 Vestlus (0)

Pakkumise kirjeldus:

Pakkumine sisaldab elektriprojekti põhiprojekti staadiumis.

Projekteerimine eeldab Tellijalt lähteülesande kokku panemist (Pistikupesade asukohta, Lülitite asukohta, Valgustite asukohti jms).

Kasutaja ikoon ID50672
Pakkuja profiil Väike nool paremale
200€ Ei ole KMKR Ei ole KMKR 23.01.2025 Vestlus (0)

Küsimused hanke korraldajale

Küsimus: private ID85299   22.01.2025 08:28
Tere!

Projektis ei ole märgitud elektritarbijate, valgustite, pistikupesade ega elektrilise põrandakütte punktide arvu. Seetõttu ei ole praegu võimalik täpset hinnapakkumist koostada.

Kui täpsustate vajaliku teabe, saame pakkumise esitada.

Lugupidamisega

Teavita reeglite rikkumisest

Korraldaja vastus:
Hanke korraldaja ei ole küsimusele veel vastanud

Küsimus: private ID86753   22.01.2025 09:20
Tere!

Lähteülesanne on puudulik. Palun infot elektritarbijate kohta (valgustid, pistikupesad, jõuseadmed).
Mis staadiumis projekti soovitatakse: põhiprojekt, tööprojekt?
Kas on sisustuse plaan?

Lugupidamisega,

Teavita reeglite rikkumisest

Korraldaja vastus:
Hanke korraldaja ei ole küsimusele veel vastanud

Lisa küsimus

Lisa küsimus

Minu pakkumine

Reeglid

Pakkumise kirjelduse väli on mõeldud pakkumise detailsemaks lahti kirjutamiseks. Pikema teksti mugavaks sisestamiseks klikkige kasti paremal ülaservas oleval ikoonil.
Pakkumist tehes on keelatud postitada enda kontaktandmeid (nimi, telefon, aadress jne). Me jälgime ja analüüsime pakkumisi, et vältida pettuseid ja reeglite rikkumisi.
Rikkumise puhul kasutajakonto blokeeritakse.

 

Teisi töid samas valdkonnas

Valdkonnas "Projekteerimine" on 6 aktiivset tööd

no-img Pilt puudub

1-kordse 120 m2 elumaja põhiprojekt

Asukoht: Harjumaa, Metsanurme
Aega jäänud: 8p 18h
Tehtud pakkumisi: 4

no-img Pilt puudub

Saunamaja eelprojekt ehitusteatiseks

Asukoht: Lääne-Virumaa
Aega jäänud: 1p 18h
Tehtud pakkumisi: 3

Vanemad teated:

Vaata kõiki

Sellel veebilehel kasutatakse küpsiseid. Kasutamist jätkates nõustute küpsiste kasutamisega.

Sulge
 
Minu pakkumine

Reeglid

Pakkumise kirjelduse väli on mõeldud pakkumise detailsemaks lahti kirjutamiseks. Pikema teksti mugavaks sisestamiseks klikkige kasti paremal ülaservas oleval ikoonil.
Pakkumist tehes on keelatud postitada enda kontaktandmeid (nimi, telefon, aadress jne). Me jälgime ja analüüsime pakkumisi, et vältida pettuseid ja reeglite rikkumisi.
Rikkumise puhul kasutajakonto blokeeritakse.