+ Lisa oma töö      

Otsid ehitajat "Projekteerimine" valdkonnast?

Parima pakkumise ja teostaja leidmiseks lisa oma töö.

Eramajale vee-ja kanalisatsiooni projekt

ID 108983

1065 vaatamist

Prindi

  • check Pakkumiste tegemine
    kuni 19.01.2025
  • check Võitja valik kuni
    26.01.2025
  • 3 Töö teostamine
    ja hinnang
Hanke lõpp: P, 19. jaanuar, 2025
Maakond: Tartumaa
Linn: Tartu
Tööde lõpp: Kokkuleppel
Ehitusmaterjalid: Töö tellija poolt
Soovin pakkumisi: Summa kogu projektile

Töö sisu

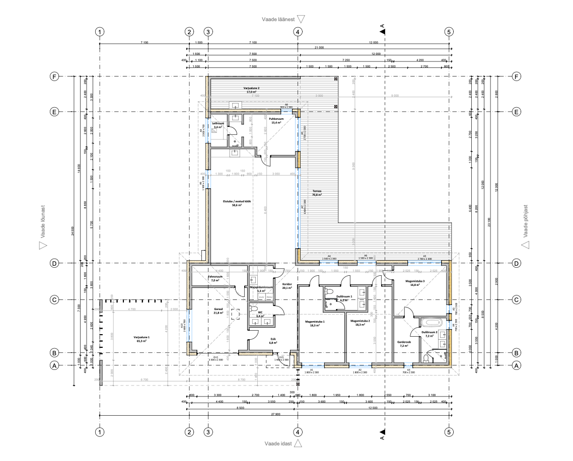
Tegemist 1.korruselise eramaja ehitusega, kus oleks vaja vee- ja kanalisatsiooni projekti eramajale - välistrassid ja siseosa.

Pildid, video ja failid

Hanke korraldaja: ettevõte ID50189

Pakkumised

Pakkumisi kokku: 4

Ettevõte Summa Käibemaks Lisatud Vestlus
Kasutaja ikoon ID48870
Pakkuja profiil Väike nool paremale
350€ Ei ole KMKR Ei ole KMKR 16.01.2025 Vestlus (0)

Pakkumise kirjeldus:

Tere
minu pakkumine projektile on 350 eurot

Kasutaja ikoon ID63115
Pakkuja profiil Väike nool paremale
2 000€ KM lisandub KM lisandub 17.01.2025 Vestlus (0)

Pakkumise kirjeldus:

Tere

Hinnapakkumine sisaldab kütte-, sise ja välisveevarustuse- ja kanalisatsioonisüsteemide põhiprojekti.
Ettemaksu ei soovi. Vastutava isiku allkiri on hinna sees.
Kütte pakkumine sisaldab soojuskadude arvutamist dünaamilises tarkvaras, põrandküttetorude projekteerimist, magistraalide jooniseid, põhiseadmete mahuloetelu ja seletuskirja. (va ... Rohkem

Kasutaja ikoon ID55125
Pakkuja profiil Väike nool paremale
500€ Ei ole KMKR Ei ole KMKR 19.01.2025 Vestlus (0)

Pakkumise kirjeldus:

Hoonesisene VK põhiprojekt koosseisus:

Seletuskiri
Põhimaterjalide loetelu
Joonised:
Hoonesisene veevarustus - korruseplaan torustike läbimõõtudega.
Hoonesisene kanalisatsioonisüsteem - korruseplaan torustike läbimõõtudega.

Hooneväline VK põhiprojekt koosseisus:

Seletuskiri
Põhimaterjalide loetelu
Joonised:
Hoonevälise VK asendip ... Rohkem

Kasutaja ikoon ID52246
Pakkuja profiil Väike nool paremale
450€ Ei ole KMKR Ei ole KMKR 19.01.2025 Vestlus (0)

Pakkumise kirjeldus:

VK projekti koostamine vastavalt hanke kirjeldusele.

Hind sisaldab:
- Projekti koostamine (joonised ja seletuskiri)
- Kooskõlastamine Tartu veevärgiga

Hind ei sisalda:
- Geodeetilise alusplaani mõõdistamine
- Kooskõlastuste tasusid
- Võimalikud riigilõivud

Käibemaksu ei lisandu
Lisaküsimused oodatud

Küsimused hanke korraldajale

Küsimus: private ID55125   17.01.2025 08:37
Tere!
Kas välistorustike liitumispunktid on krundi piirile välja ehitatud ja kes on vee-ettevõtja?

Teavita reeglite rikkumisest

Korraldaja vastus: 17.01.2025 08:42

Tere

Liitumispunktid kinnistul olemas. Tartu Veevärk. Projekteerimistingimused olemas.

Teavita reeglite rikkumisest

Lisa küsimus

Lisa küsimus

Minu pakkumine

Reeglid

Pakkumise kirjelduse väli on mõeldud pakkumise detailsemaks lahti kirjutamiseks. Pikema teksti mugavaks sisestamiseks klikkige kasti paremal ülaservas oleval ikoonil.
Pakkumist tehes on keelatud postitada enda kontaktandmeid (nimi, telefon, aadress jne). Me jälgime ja analüüsime pakkumisi, et vältida pettuseid ja reeglite rikkumisi.
Rikkumise puhul kasutajakonto blokeeritakse.

 

Teisi töid samas valdkonnas

Valdkonnas "Projekteerimine" on 6 aktiivset tööd

no-img Pilt puudub

1-kordse 120 m2 elumaja põhiprojekt

Asukoht: Harjumaa, Metsanurme
Aega jäänud: 8p 12h
Tehtud pakkumisi: 4

no-img Pilt puudub

Saunamaja eelprojekt ehitusteatiseks

Asukoht: Lääne-Virumaa
Aega jäänud: 1p 12h
Tehtud pakkumisi: 3

Vanemad teated:

Vaata kõiki

Sellel veebilehel kasutatakse küpsiseid. Kasutamist jätkates nõustute küpsiste kasutamisega.

Sulge
 
Minu pakkumine

Reeglid

Pakkumise kirjelduse väli on mõeldud pakkumise detailsemaks lahti kirjutamiseks. Pikema teksti mugavaks sisestamiseks klikkige kasti paremal ülaservas oleval ikoonil.
Pakkumist tehes on keelatud postitada enda kontaktandmeid (nimi, telefon, aadress jne). Me jälgime ja analüüsime pakkumisi, et vältida pettuseid ja reeglite rikkumisi.
Rikkumise puhul kasutajakonto blokeeritakse.