+ Lisa oma töö      

Otsid ehitajat "Projekteerimine" valdkonnast?

Parima pakkumise ja teostaja leidmiseks lisa oma töö.

Ühepereelamu KVVK projekteermine

ID 108958

1237 vaatamist

Prindi

  • check Pakkumiste tegemine
    kuni 18.01.2025
  • check Võitja valik kuni
    25.01.2025
  • 3 Töö teostamine
    ja hinnang
Hanke lõpp: L, 18. jaanuar, 2025
Maakond: Raplamaa
Linn: Rapla
Tööde lõpp: Kokkuleppel
Ehitusmaterjalid: Töö tellija poolt
Soovin pakkumisi: Summa kogu projektile

Töö sisu

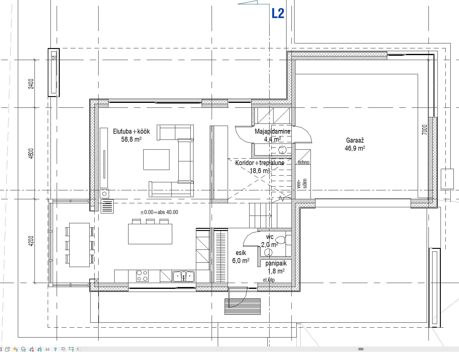
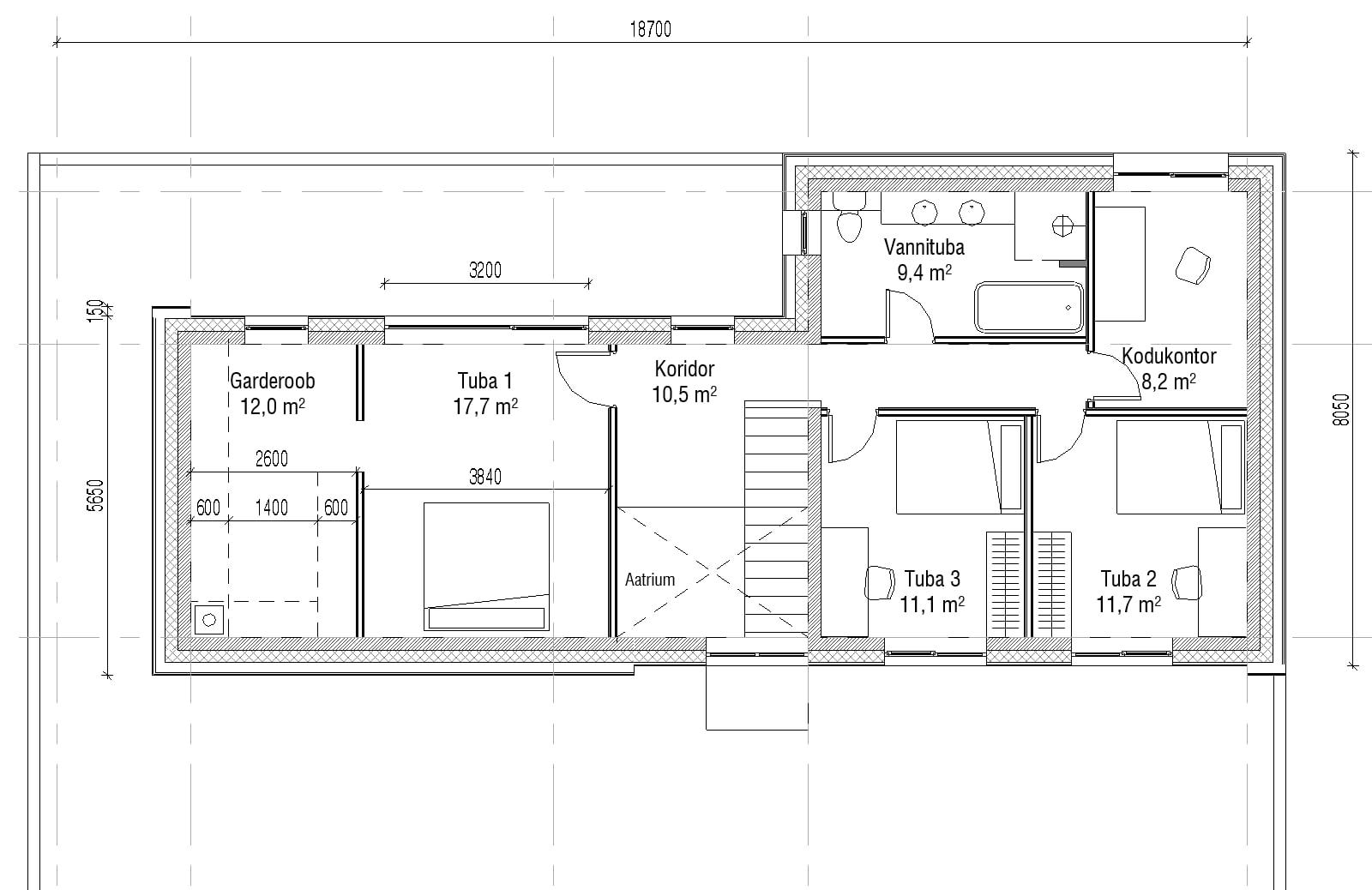
Soovime leida Kanali-, Vee, Ventilatsiooni ja Kütteprojekteerijat ühepereelamule. Eramu suletud netopind on 219m2. Projekti staadium: Põhiprojekt.

Pildid, video ja failid

Hanke korraldaja: ettevõte ID82620

Pakkumised

Pakkumisi kokku: 4

Ettevõte Summa Käibemaks Lisatud Vestlus
Kasutaja ikoon ID48870
Pakkuja profiil Väike nool paremale
950€ Ei ole KMKR Ei ole KMKR 15.01.2025 Vestlus (0)

Pakkumise kirjeldus:

Tere
minu pakkumine projektile on 950 eurot

Kasutaja ikoon ID63115
Pakkuja profiil Väike nool paremale
1 900€ KM lisandub KM lisandub 16.01.2025 Vestlus (0)

Pakkumise kirjeldus:

Tere

Hinnapakkumine sisaldab kütte-, ventilatsiooni-, veevarustuse- ja kanalisatsioonisüsteemide põhiprojekti.
Ettemaksu ei soovi. Vastutava isiku allkiri on hinna sees.
Kütte pakkumine sisaldab soojuskadude arvutamist dünaamilises tarkvaras, põrandküttetorude projekteerimist, magistraalide jooniseid, põhiseadmete mahuloetelu ja seletuskirja. ... Rohkem

Kasutaja ikoon ID52325
Pakkuja profiil Väike nool paremale
500€ KM lisandub KM lisandub 16.01.2025 Vestlus (0)

Pakkumise kirjeldus:

Pakkumine sisaldab ainult ventilatsioonisüsteemi projekteerimist, mis vastab kehtivatele nõuetele ja standarditele. Teenuse osana tagame kogu vajaliku dokumentatsiooni ning süsteemi korrektse ja tõhusa planeerimise. Pakkumine hõlmab:
• Hoone vajadustele ja kasutusotstarbele vastava soojustagastusega ventilatsioonisüsteemi lahenduse väljatöötamine ... Rohkem

Kasutaja ikoon ID86685
Pakkuja profiil Väike nool paremale
1 300€ Ei ole KMKR Ei ole KMKR 18.01.2025 Vestlus (0)

Pakkumise kirjeldus:

Projektid vastavalt tellija soovidele ja normidele.
Kogemus paljude erinevate objektidega.
Tööga saab alustada koheselt.

Küsimused hanke korraldajale

Hanke korraldajale ei ole veel küsimusi esitatud.

Lisa küsimus

Lisa küsimus

Minu pakkumine

Reeglid

Pakkumise kirjelduse väli on mõeldud pakkumise detailsemaks lahti kirjutamiseks. Pikema teksti mugavaks sisestamiseks klikkige kasti paremal ülaservas oleval ikoonil.
Pakkumist tehes on keelatud postitada enda kontaktandmeid (nimi, telefon, aadress jne). Me jälgime ja analüüsime pakkumisi, et vältida pettuseid ja reeglite rikkumisi.
Rikkumise puhul kasutajakonto blokeeritakse.

 

Teisi töid samas valdkonnas

Valdkonnas "Projekteerimine" on 6 aktiivset tööd

no-img Pilt puudub

1-kordse 120 m2 elumaja põhiprojekt

Asukoht: Harjumaa, Metsanurme
Aega jäänud: 8p 18h
Tehtud pakkumisi: 4

no-img Pilt puudub

Saunamaja eelprojekt ehitusteatiseks

Asukoht: Lääne-Virumaa
Aega jäänud: 1p 18h
Tehtud pakkumisi: 3

Vanemad teated:

Vaata kõiki

Sellel veebilehel kasutatakse küpsiseid. Kasutamist jätkates nõustute küpsiste kasutamisega.

Sulge
 
Minu pakkumine

Reeglid

Pakkumise kirjelduse väli on mõeldud pakkumise detailsemaks lahti kirjutamiseks. Pikema teksti mugavaks sisestamiseks klikkige kasti paremal ülaservas oleval ikoonil.
Pakkumist tehes on keelatud postitada enda kontaktandmeid (nimi, telefon, aadress jne). Me jälgime ja analüüsime pakkumisi, et vältida pettuseid ja reeglite rikkumisi.
Rikkumise puhul kasutajakonto blokeeritakse.