+ Lisa oma töö      

Otsid ehitajat "Üldehitus" valdkonnast?

Parima pakkumise ja teostaja leidmiseks lisa oma töö.

Eramu ehitus

ID 108936

2560 vaatamist

Prindi

  • check Pakkumiste tegemine
    kuni 20.02.2025
  • check Võitja valik kuni
    27.02.2025
  • 3 Töö teostamine
    ja hinnang
Hanke lõpp: N, 20. veebruar, 2025
Maakond: Harjumaa
Muu asula: Kanama
Tööde lõpp: T, 30. september, 2025
Ehitusmaterjalid: Töö tegija poolt
Soovin pakkumisi: Summa kogu projektile

Töö sisu

Ehitusluba peaks saabuma ca 1 kuu jooksul. Geodeetiline plaan olemas.
Elektriliitumine ja elektrikilp kinnistul olemas.
Pakkumises palun tuua ehitusetapid ja materjalid eraldi välja (n: vundamendi väljakaeve, vundamendi ehitus, vee-ja kanalisatsioonitorustik, karkass, soojustus, laudis, katuse katted jne.).
Vundamendi väljakaeve on minimaalne, sest paepinnas on ca 30-40 cm sügavusel.
Väljakaevatud pinnase saab ladustada kinnistul.
Eramu ehitusega soovime alustada ca aprill 2025.
Palun hinnapakkumist hiljemalt 15.veebruar 2025.

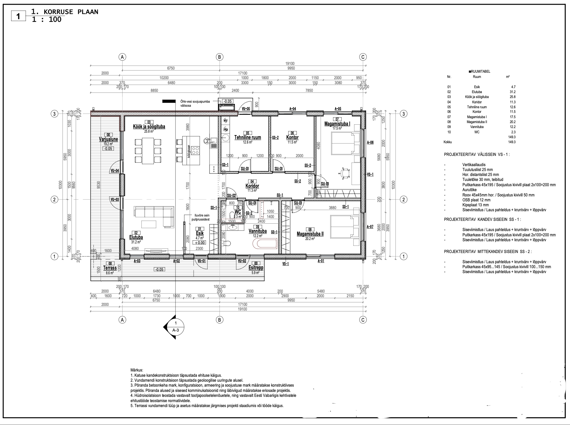
Pildid, video ja failid

Hanke korraldaja: eraisik ID87358

Pakkumised

Pakkumisi kokku: 15

Ettevõte Summa Käibemaks Lisatud Vestlus
Kasutaja ikoon ID86806
Pakkuja profiil Väike nool paremale
310 000€ Ei ole KMKR Ei ole KMKR 21.01.2025 Vestlus (0)

Pakkumise kirjeldus:

vastavalt hankes toodule

Kasutaja ikoon ID85299
Pakkuja profiil Väike nool paremale
46 897€ Ei ole KMKR Ei ole KMKR 22.01.2025 Vestlus (0)

Pakkumise kirjeldus:

Ehitusetapid:
1.Vundament
Tööd:
- Pinnase väljakaevamine vundamendi jaoks.
- Mineraalse täitepinnase tihendamine.
- Liiva ja killustiku kihi paigaldamine (vähemalt 350 mm).
- Vundamendi armeerimine ja betoonivalu.
- Isolatsiooni EPS Perimeeter PLUSS 120 mm paigaldamine (veeimavus <2%, kalle 1/20).
- Columbia (190x190 mm) täisvalatud postide pai ... Rohkem

Kasutaja ikoon ID85499
Pakkuja profiil Väike nool paremale
189 509€ KM lisandub KM lisandub 22.01.2025 Vestlus (0)

Pakkumise kirjeldus:

Pinnase eemaldus kuni paeni 30-40cm ja ladustamine tellija kinnistul. Killustikalus vundamendile 25cm - 4000€
L-plokiga EPS süsteemis vundamendi ehitus armeeritult ja betoneeritult14916€
Maja lahtine soojustatud karp 47047€
Voodrilaud koos paigaldusega 11926€
Katuseplekk Ruukki Clasic koos paigaldusega 10697€
Räästakastide ehitus 1500€
... Rohkem

Kasutaja ikoon ID85820
Pakkuja profiil Väike nool paremale
320 000€ Sisaldab KM Sisaldab KM 22.01.2025 Vestlus (0)

Pakkumise kirjeldus:

keskmine hind ehitame võtmed kätte lõplik hind sõltub valitud viimistlusmaterjalidest

Kasutaja ikoon ID86318
Pakkuja profiil Väike nool paremale
318 000€ Sisaldab KM Sisaldab KM 23.01.2025 Vestlus (0)
Kasutaja ikoon ID87462
Pakkuja profiil Väike nool paremale
600 000€ Sisaldab KM Sisaldab KM 27.01.2025 Vestlus (0)

Pakkumise kirjeldus:

Tere
Juhul kui soovite meid valida hanke võitjaks peaks eelnevalt kokku leppima makse tingimustes
Tänud

Kasutaja ikoon ID87587
Pakkuja profiil Väike nool paremale
305 000€ Sisaldab KM Sisaldab KM 27.01.2025 Vestlus (0)

Pakkumise kirjeldus:

Võtmed kätte hind.
Maja ehitatakse tehases eelnevalt toodetud maja elementidest. Täpse pakkumise koos materjalide ja ehitusettappidega vormistaks hiljem. Praegu arvestatud vastavalt hankes toodud infole.
Hind ei sisalda puurkevu, sissesõidu teed ja pinnase planeerimist.
Tehtud töödega saab tutvuda kodulehel.

Kasutaja ikoon ID46738
Pakkuja profiil Väike nool paremale
310 000€ KM lisandub KM lisandub 30.01.2025 Vestlus (0)

Pakkumise kirjeldus:

Hind nullist võtmeteni.Ei sisalda valgusteid, san.tehnikat, mööblit, liuguksi, disain elemente seintes ja lagedes, haljastust, tänavakivi, piirdeaeda, puurkaevu.

Kasutaja ikoon ID72026
Pakkuja profiil Väike nool paremale
240 000€ KM lisandub KM lisandub 03.02.2025 Vestlus (0)

Pakkumise kirjeldus:

Tere!

Võtmed kätte hind!


Parimat!

Kasutaja ikoon ID79232
Pakkuja profiil Väike nool paremale
265 000€ KM lisandub KM lisandub 04.02.2025 Vestlus (0)

Pakkumise kirjeldus:

Võtmed kätte lahendus!

Kasutaja ikoon ID87470
Pakkuja profiil Väike nool paremale
420 000€ KM lisandub KM lisandub 05.02.2025 Vestlus (0)

Pakkumise kirjeldus:

Tere, pakkumine vastavalt lisatud jooniste alusel. Täpsema hinnapakkumise soovime otse tellijale edastada.

Pakkumine võtmed kätte. Pakkumine ei sisalda sisustus elemente.

Lisatööd: Haljastus, aed, sissesõidutee ja parkla.



Oleme kogenud ja vilunud ehitajate meeskond, kes on pühendunud oma klientidele kvaliteetsete konstruktsioonide loomis ... Rohkem

Kasutaja ikoon ID49699
Pakkuja profiil Väike nool paremale
255 000€ KM lisandub KM lisandub 14.02.2025 Vestlus (0)

Pakkumise kirjeldus:

Tere

Pakkumine võtmed kätte lahendusele.

Ajakulu maksimaalselt 6 kuud.

Huvi korral saan teile teha täpsema pakkumise, kus on ettappide kaudu hinnad välja toodud. Lõplik hind oleneb, mis siseviimistlust, põrandakatteid uksi jne soovite.

Lisaks on meil koostöö projekteerijaga, kes on diplomeeritud insener tase 7 ja kes vajadusel teos ... Rohkem

Kasutaja ikoon ID86422
Pakkuja profiil Väike nool paremale
305 000€ KM lisandub KM lisandub 19.02.2025 Vestlus (0)
Kasutaja ikoon ID72885
Pakkuja profiil Väike nool paremale
295 000€ KM lisandub KM lisandub 20.02.2025 Vestlus (0)

Pakkumise kirjeldus:

Pakume oma partneritelt kvaliteetset tehnilise järelevalve teenust.

Kasutaja ikoon ID8633
Pakkuja profiil Väike nool paremale
248 000€ KM lisandub KM lisandub 20.02.2025 Vestlus (0)

Pakkumise kirjeldus:

Tere,
Võtmed kätte hind.

Küsimused hanke korraldajale

Küsimus: private ID72127   22.01.2025 08:21
Tere!
Kas otsite ühelt pakkujalt võtmed kätte lahendust või sobib ka pakkumine: Karkass,katus,soojustus,välisvooder - töödele?

Teavita reeglite rikkumisest

Korraldaja vastus: 22.01.2025 18:38

Ootame võtmed kätte lahenduse pakkumisi.

Teavita reeglite rikkumisest

Küsimus: private ID85499   22.01.2025 09:17
Tere.

Kas olete kindel et Teie kinnistul on paas umbes 30cm sügavusel? Kõrval oleval kinnistul oli paas 1,2-1,3m sügavusel.
Paas on seal peale esimest 30cm väga kõva sinine paas, trasside tegemiseks vaja roomikutel roksonit.
Näidatud on imbväljak. Kas on ka plaanis nii ehitada? Imbväljak saan ma aru et tuleb pae peale ja tehakse sinna väike küngas peale? Üldiselt on sealkandis ka suvel väga märg ja vesi ei imbu pae tõttu pinnasesse.
Kas puurkaev on valmis? Kas puurkaevust saab juba ehituse ajal vett võtta (pumba valmidus)?
Kas elektri kaabel on majani toodud, või tuleb arvestada liitumiskilbist?

Tervitades

Teavita reeglite rikkumisest

Korraldaja vastus: 22.01.2025 18:46

Kinnistul varieerub pae pinnas umbes 30-60cm vahemikus.
Biopuhasti imbväljak on plaanitud just nii nagu kirjeldasite (Pae peale ja sinna peale küngas). Märg pinnas vastab tõele mulla kihi tõttu.
Hetkel puurkaev puudub, kuid tellija tagab vee olemas olu ehituse ajal.
Elektrikaabel ei ole planeeritava majani toodud.

Teavita reeglite rikkumisest

Küsimus: private ID8356   23.01.2025 15:25
Tere, Kas saaksite lisada seletuskirja

Teavita reeglite rikkumisest

Korraldaja vastus: 24.01.2025 11:05

Lisatud.

Teavita reeglite rikkumisest

Küsimus: private ID59528   18.02.2025 19:00
Tere,

Oleme huvitataud hinnapakkumise koostamisest, kas saaksite lisada pdf formaadis projektid

Meie profiili alt näete meie poolt tehtud töid ja klientide poolt antud hinnanguid
Ettevōttel olemas MTR registreering!

Parimat,

Erik

Teavita reeglite rikkumisest

Korraldaja vastus:
Hanke korraldaja ei ole küsimusele veel vastanud

Lisa küsimus

Lisa küsimus

Minu pakkumine

Reeglid

Pakkumise kirjelduse väli on mõeldud pakkumise detailsemaks lahti kirjutamiseks. Pikema teksti mugavaks sisestamiseks klikkige kasti paremal ülaservas oleval ikoonil.
Pakkumist tehes on keelatud postitada enda kontaktandmeid (nimi, telefon, aadress jne). Me jälgime ja analüüsime pakkumisi, et vältida pettuseid ja reeglite rikkumisi.
Rikkumise puhul kasutajakonto blokeeritakse.

 

Teisi töid samas valdkonnas

Valdkonnas "Üldehitus" on 26 aktiivset tööd

Kuuride lammutus ja uute ehitamine

Asukoht: Viljandimaa, Viljandi
Aega jäänud: 5p 22h
Tehtud pakkumisi: 16

Kipsi paigaldus lakke ja seina

Asukoht: Harjumaa, Turba
Aega jäänud: 22h 39 min
Tehtud pakkumisi: 9

Vanemad teated:

Vaata kõiki

Sellel veebilehel kasutatakse küpsiseid. Kasutamist jätkates nõustute küpsiste kasutamisega.

Sulge
 
Minu pakkumine

Reeglid

Pakkumise kirjelduse väli on mõeldud pakkumise detailsemaks lahti kirjutamiseks. Pikema teksti mugavaks sisestamiseks klikkige kasti paremal ülaservas oleval ikoonil.
Pakkumist tehes on keelatud postitada enda kontaktandmeid (nimi, telefon, aadress jne). Me jälgime ja analüüsime pakkumisi, et vältida pettuseid ja reeglite rikkumisi.
Rikkumise puhul kasutajakonto blokeeritakse.