+ Lisa oma töö      

Otsid ehitajat "Projekteerimine" valdkonnast?

Parima pakkumise ja teostaja leidmiseks lisa oma töö.

Korteri sisekujunduse ja plaanide koostamine

ID 108722

1717 vaatamist

Prindi

  • check Pakkumiste tegemine
    kuni 29.01.2025
  • check Võitja valik kuni
    05.02.2025
  • 3 Töö teostamine
    ja hinnang
Hanke lõpp: K, 29. jaanuar, 2025
Maakond: Tartumaa
Linn: Tartu
Tööde lõpp: Kokkuleppel
Ehitusmaterjalid: Töö tellija poolt
Soovin pakkumisi: Summa kogu projektile

Töö sisu

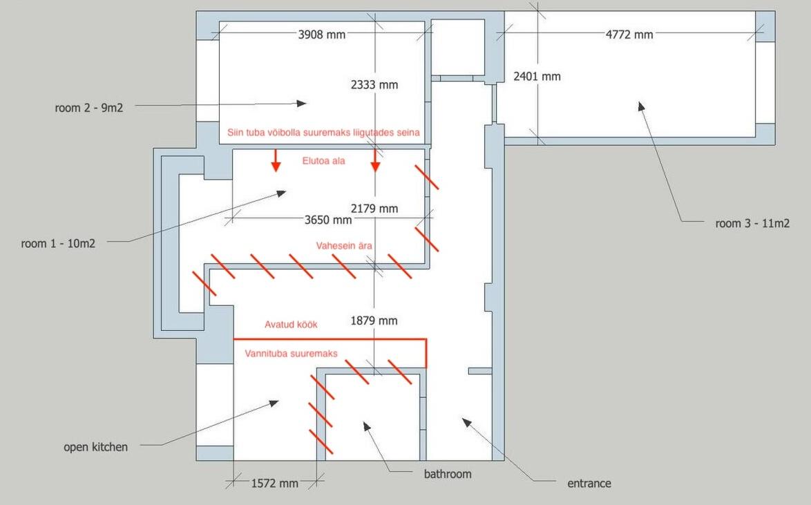
1) Korteri vaheseinte muutmine (sh vana projekti uueks tegemine) - Pilt plaan-uus.jpg näitab soovitud lahendust. Uuel projektil peab kõik vajalik ehitajale olemas olema. Pilt plaan-originaal.png on vana plaan koos võibolla vajaminevate detailidega. Originaalil kollane joon tähistab vaheseina, mille eelmine omanik oli teinud, kuid see tuleb eemaldada.
2) Mööbli paigutus – köök, valamukapid, voodi ja riidekappide mõõdud peaksid vastama IKEA standarditele. Oluline on ainult paigutus, see millised esemed reaalselt välja näevad ei mängi rolli.
3) Lülitite ja valgustite asukohad – kuhu oleks praktiline panna lülitid ning samuti koostada selle raames valgus- ja elektriplaan.
4) Vannitoa plaatide stiili valik – vajadus stiilse ja praktilise lahenduse järele, milliseid plaate valida.
5) Põrandaparketi valik – sobiva parketi valik, mis on kvaliteetne ja sobib ruumidega. Eelistatud on retro stiil kalasaba näol, kuid võib olla ka midagi muud.

Erilahendusi ja -paigutusi ei soovi kasutada. Kõik peab vastama IKEA standarditele ja mõõtudele. Neid arvastada ka siis, kui planeerida süvistatavaid kappe magamistubadesse või esikusse.

Pildid, video ja failid

Hanke korraldaja: eraisik ID86730

Pakkumised

Pakkumisi kokku: 2

Ettevõte Summa Käibemaks Lisatud Vestlus
Kasutaja ikoon ID86806
Pakkuja profiil Väike nool paremale
600€ Ei ole KMKR Ei ole KMKR 21.01.2025 Vestlus (0)

Pakkumise kirjeldus:

Pakkumine vastavalt hankes kirjeldatule. Vastame lisaküsimustele.

Kasutaja ikoon ID87620
Pakkuja profiil Väike nool paremale
750€ Ei ole KMKR Ei ole KMKR 28.01.2025 Vestlus (0)

Pakkumise kirjeldus:

Hind sisaldab:
- dwg/pdf korteriplaani koostamist koos muudatustega
- dwg/pdf sisustusplaani koostamist vastavalt Tellija soovidele
- dwg/pdf valgustiplaani koostamist
- dwg/pdf elektriplaani koostamist
- dwg/pdf põranda materjalide plaan
- soovitused vannitoa plaatide ja parketi valikul

Küsimused hanke korraldajale

Küsimus: private ID81622   10.01.2025 08:25
Palun täpsustage korteri suurus ruutmeetrites. Tänan!

Teavita reeglite rikkumisest

Korraldaja vastus: 10.01.2025 11:15

Korteri suurus on 53.8 m2

Teavita reeglite rikkumisest

Lisa küsimus

Lisa küsimus

Minu pakkumine

Reeglid

Pakkumise kirjelduse väli on mõeldud pakkumise detailsemaks lahti kirjutamiseks. Pikema teksti mugavaks sisestamiseks klikkige kasti paremal ülaservas oleval ikoonil.
Pakkumist tehes on keelatud postitada enda kontaktandmeid (nimi, telefon, aadress jne). Me jälgime ja analüüsime pakkumisi, et vältida pettuseid ja reeglite rikkumisi.
Rikkumise puhul kasutajakonto blokeeritakse.

 

Teisi töid samas valdkonnas

Valdkonnas "Projekteerimine" on 6 aktiivset tööd

no-img Pilt puudub

1-kordse 120 m2 elumaja põhiprojekt

Asukoht: Harjumaa, Metsanurme
Aega jäänud: 8p 14h
Tehtud pakkumisi: 4

no-img Pilt puudub

Saunamaja eelprojekt ehitusteatiseks

Asukoht: Lääne-Virumaa
Aega jäänud: 1p 14h
Tehtud pakkumisi: 3

Vanemad teated:

Vaata kõiki

Sellel veebilehel kasutatakse küpsiseid. Kasutamist jätkates nõustute küpsiste kasutamisega.

Sulge
 
Minu pakkumine

Reeglid

Pakkumise kirjelduse väli on mõeldud pakkumise detailsemaks lahti kirjutamiseks. Pikema teksti mugavaks sisestamiseks klikkige kasti paremal ülaservas oleval ikoonil.
Pakkumist tehes on keelatud postitada enda kontaktandmeid (nimi, telefon, aadress jne). Me jälgime ja analüüsime pakkumisi, et vältida pettuseid ja reeglite rikkumisi.
Rikkumise puhul kasutajakonto blokeeritakse.