+ Lisa oma töö      

Otsid ehitajat "Ehitusprojektid" valdkonnast?

Parima pakkumise ja teostaja leidmiseks lisa oma töö.

Õhk-vesi kütteprojekt koos EHR muudatustega

ID 108121

1134 vaatamist

Prindi

  • check Pakkumiste tegemine
    kuni 18.12.2024
  • check Võitja valik kuni
    25.12.2024
  • 3 Töö teostamine
    ja hinnang
Hanke lõpp: K, 18. detsember, 2024
Maakond: Harjumaa
Linn: Tallinn
Tööde lõpp: Kokkuleppel
Ehitusmaterjalid: Töö tellija poolt
Soovin pakkumisi: Summa kogu projektile

Töö sisu

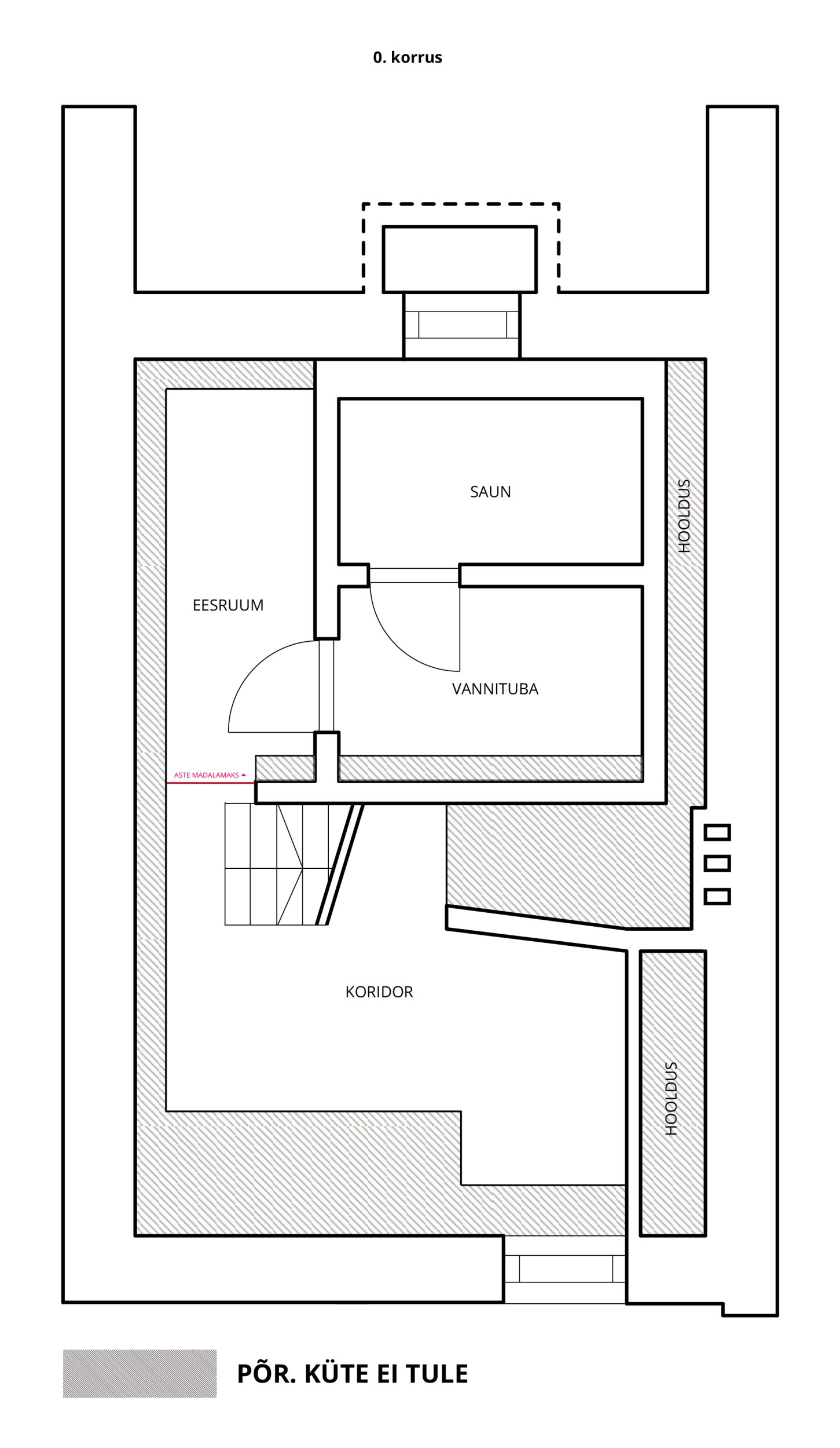
Soov paigaldada elamusse õhk-vesi soojuspump. Vaja koostada projekt ja viia EHR andmed kooskõlla. Olen joonistanud vanad plaanide ise üle ja olemas PDF/AI. Elamu läbi 3 korruse. Kokku pinda ca 88m2.

Vannituba, koridor, WC ja 0. korrus lõppviimistlus plaat, ehk selle all peaks olema Uponor Minitec 12mm (toru mõõtmed: 9.9 x 1.1 mm). Mujal parkett ja kasutada Siccus mini 15mm (toru mõõtmed: 9.9 x 1.1 mm). Püstaku torud tuleb vedada plaani vaadates alumisest lõõrist.

Lõppude lõpuks sooviks ka nimekirja kasutatavataest osadest (kollektorid, otsikud), toru mõõtudest (nt korrustevahelised torud) ja jooniseid.

Hea oleks, kui oleks võimekus ka töid pakkuda (õhk-vesi pumba ühendamine, püstaku torude vedamine). Plaan on ehitada süsteem välja etappide kaupa.

Pildid, video ja failid

Hanke korraldaja: eraisik ID43312

Pakkumised

Pakkumisi kokku: 0

Küsimused hanke korraldajale

Hanke korraldajale ei ole veel küsimusi esitatud.

Lisa küsimus

Lisa küsimus

Minu pakkumine

Reeglid

Pakkumise kirjelduse väli on mõeldud pakkumise detailsemaks lahti kirjutamiseks. Pikema teksti mugavaks sisestamiseks klikkige kasti paremal ülaservas oleval ikoonil.
Pakkumist tehes on keelatud postitada enda kontaktandmeid (nimi, telefon, aadress jne). Me jälgime ja analüüsime pakkumisi, et vältida pettuseid ja reeglite rikkumisi.
Rikkumise puhul kasutajakonto blokeeritakse.

 

Teisi töid samas valdkonnas

Valdkonnas "Ehitusprojektid" on 6 aktiivset tööd

no-img Pilt puudub

Ehitusinsener tase 7 vastutav allikiri

Asukoht: Pärnumaa, Pärnu
Aega jäänud: 7h 43 min
Tehtud pakkumisi: 2

Korteri elektri projekt

Asukoht: Harjumaa, Tallinn
Aega jäänud: 2p 7h
Tehtud pakkumisi: 2

Vanemad teated:

Vaata kõiki

Sellel veebilehel kasutatakse küpsiseid. Kasutamist jätkates nõustute küpsiste kasutamisega.

Sulge
 
Minu pakkumine

Reeglid

Pakkumise kirjelduse väli on mõeldud pakkumise detailsemaks lahti kirjutamiseks. Pikema teksti mugavaks sisestamiseks klikkige kasti paremal ülaservas oleval ikoonil.
Pakkumist tehes on keelatud postitada enda kontaktandmeid (nimi, telefon, aadress jne). Me jälgime ja analüüsime pakkumisi, et vältida pettuseid ja reeglite rikkumisi.
Rikkumise puhul kasutajakonto blokeeritakse.