+ Lisa oma töö      

Otsid ehitajat "Projekteerimine" valdkonnast?

Parima pakkumise ja teostaja leidmiseks lisa oma töö.

Põrandakütte torustiku projekt

ID 107776

1362 vaatamist

Prindi

  • check Pakkumiste tegemine
    kuni 08.12.2024
  • check Võitja valik kuni
    15.12.2024
  • 3 Töö teostamine
    ja hinnang
Hanke lõpp: P, 8. detsember, 2024
Maakond: Harjumaa
Linn: Tallinn
Tööde lõpp: Kokkuleppel
Ehitusmaterjalid: Töö tegija poolt
Soovin pakkumisi: Summa kogu projektile

Töö sisu

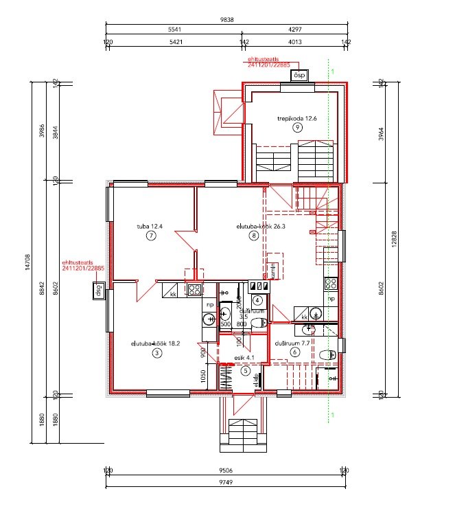
Vaja renoveeritava maja 1. korruse vesipõrandaküttetorustikule projekti. Torustik 20mm. 5-6m torustikku ühe m2 kohta. Põrandal OSB. Torustikule läheb hiljem kipsivalu peale. Korruse alusplaan olemas ka dwg-na . Ruumi number 9 ei tule põrandakütet. Torustiku kollektor hakkab asuma asub ruumis number 6.
Kütma hakkab hoonet õhk-vesi soojuspump. Teisel korrusel radiaatorküte.

Pildid, video ja failid

Hanke korraldaja: eraisik ID26830

Pakkumised

Pakkumisi kokku: 4

Ettevõte Summa Käibemaks Lisatud Vestlus
Kasutaja ikoon ID58894
Pakkuja profiil Väike nool paremale
980€ KM lisandub KM lisandub 05.12.2024 Vestlus (0)

Pakkumise kirjeldus:

Minu hinnapakkumine on tehtud teie poolt kirjeldatud tööde mahule ja projekti ülesandele.

1. Pakkumine sisaldab 1.korruse küttetorustiku joonised ,ehitusega seotud dokumente.

2. Saab pakkuda sammuti küttetorustiku paigaldust ja kõige muud sellega seotud tegevused (ehitused)

Kui teil on tekkinud minu pakkumisega seoses küsimusi siis vastan te ... Rohkem

Kasutaja ikoon ID79118
Pakkuja profiil Väike nool paremale
600€ KM lisandub KM lisandub 06.12.2024 Vestlus (0)

Pakkumise kirjeldus:

Hind sisaldab põrandakütte ringe kuni kollektorini. Eraldi pakkumisega radiaatorkütte, põrandakütte ja õhk-vesi seadme ühendamine.

Kasutaja ikoon ID84916
Pakkuja profiil Väike nool paremale
2 300€ Sisaldab KM Sisaldab KM 06.12.2024 Vestlus (0)
Kasutaja ikoon ID86685
Pakkuja profiil Väike nool paremale
700€ Ei ole KMKR Ei ole KMKR 08.12.2024 Vestlus (0)

Pakkumise kirjeldus:

Projekt vastavalt tellija soovidele ja normidele.
Vastava pädevusega projekteerijal varasem kogemus paljude erinevate objektidega.
Tööga saab alustada koheselt.

Küsimused hanke korraldajale

Hanke korraldajale ei ole veel küsimusi esitatud.

Lisa küsimus

Lisa küsimus

Minu pakkumine

Reeglid

Pakkumise kirjelduse väli on mõeldud pakkumise detailsemaks lahti kirjutamiseks. Pikema teksti mugavaks sisestamiseks klikkige kasti paremal ülaservas oleval ikoonil.
Pakkumist tehes on keelatud postitada enda kontaktandmeid (nimi, telefon, aadress jne). Me jälgime ja analüüsime pakkumisi, et vältida pettuseid ja reeglite rikkumisi.
Rikkumise puhul kasutajakonto blokeeritakse.

 

Teisi töid samas valdkonnas

Valdkonnas "Projekteerimine" on 9 aktiivset tööd

no-img Pilt puudub

Eramu eelprojekti koostamine ehitusloa taotlemiseks

Asukoht: Harjumaa
Aega jäänud: 5h 0 min
Tehtud pakkumisi: 11

Ehitusteatise eelprojekt

Asukoht: Järvamaa
Aega jäänud: 3p 5h
Tehtud pakkumisi: 10

Vanemad teated:

Vaata kõiki

Sellel veebilehel kasutatakse küpsiseid. Kasutamist jätkates nõustute küpsiste kasutamisega.

Sulge
 
Minu pakkumine

Reeglid

Pakkumise kirjelduse väli on mõeldud pakkumise detailsemaks lahti kirjutamiseks. Pikema teksti mugavaks sisestamiseks klikkige kasti paremal ülaservas oleval ikoonil.
Pakkumist tehes on keelatud postitada enda kontaktandmeid (nimi, telefon, aadress jne). Me jälgime ja analüüsime pakkumisi, et vältida pettuseid ja reeglite rikkumisi.
Rikkumise puhul kasutajakonto blokeeritakse.