+ Lisa oma töö      

Otsid ehitajat "Projekteerimine" valdkonnast?

Parima pakkumise ja teostaja leidmiseks lisa oma töö.

Hange on lõppenud!

Võitjaks osutus kasutaja ID 79821

Elektriprojekt eramajale

ID 107463

1530 vaatamist

Prindi

  • check Pakkumiste tegemine
    kuni 04.12.2024
  • check Võitja valik kuni
    04.12.2024
  • 3 Töö teostamine
    ja hinnang
Hanke lõpp: K, 4. detsember, 2024
Maakond: Pärnumaa
Tööde lõpp: Kokkuleppel
Ehitusmaterjalid: Töö tellija poolt
Soovin pakkumisi: Summa kogu projektile

Töö sisu

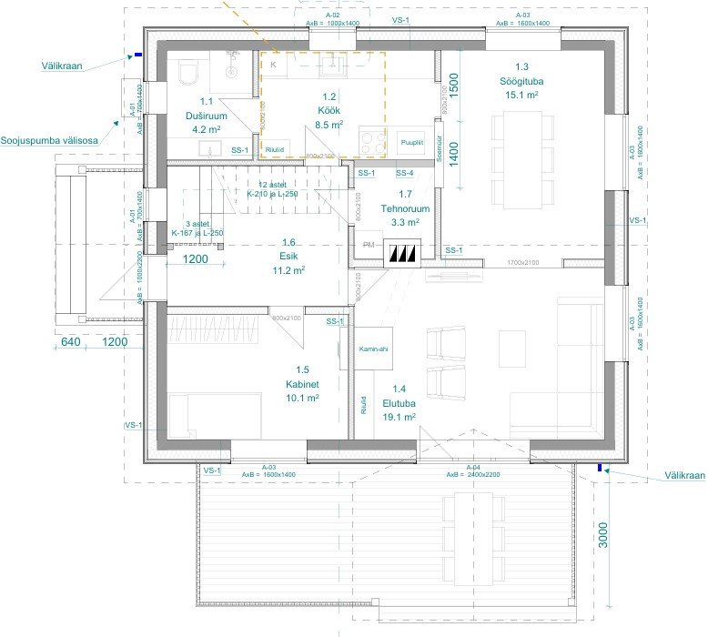
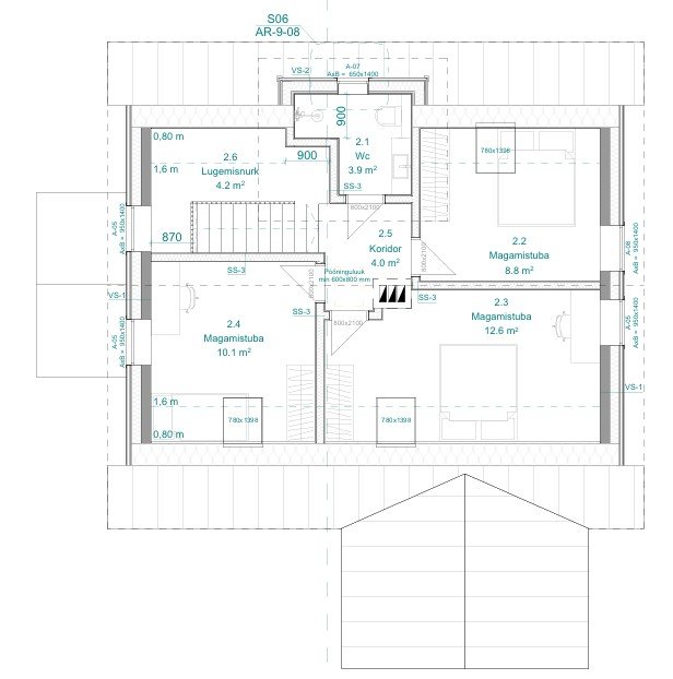
Töö sisuks on koostada tugev- ja nõrkvoolu projekt 115m2 eramajale põhiprojekti staadiumis. Vajalik arvestada küttesüsteemi termostaatide, valvekaamerate paigalduse ja hoone välisvalgustusega.

Pildid, video ja failid

Hanke korraldaja: eraisik ID74352

Pakkumised

Pakkumisi kokku: 5

Ettevõte Summa Käibemaks Lisatud Vestlus
Kasutaja ikoon ID31470
Pakkuja profiil Väike nool paremale
800€ KM lisandub KM lisandub 26.11.2024 Vestlus (0)

Pakkumise kirjeldus:

Tere,

teeme pakkumise antud hoone tugev- ja nõrkvoolupaigaldise EVS standardile vastavas ja hankes küsitud mahus põhiprojekti koostamiseks. Pärast lähteülesande kättesaamist saame projekti valmimise ajaks lubada maximaalselt 1 töönädal. Töid teostab volitatud elektriinsener, tase 8 kutsetunnistusega isik.

Edu hankel!
Lugupidamisega, V.

Kasutaja ikoon ID84522
Pakkuja profiil Väike nool paremale
400€ KM lisandub KM lisandub 27.11.2024 Vestlus (2)
Kasutaja ikoon ID82682
Pakkuja profiil Väike nool paremale
380€ KM lisandub KM lisandub 29.11.2024 Vestlus (0)

Pakkumise kirjeldus:

Tere

Koostame eramaja elektriosa põhiprojekti vastavalt Eestis kehtivatele normidele ja nõuetele.

Põhiprojekt koosneb:
1. Tekstiline osa (tiitelleht, dokumentide nimekiri, seletuskiri, spetsifikatsioon)
2. Struktuurskeemid (elektrivarustus, potentsiaalühtlustus)
3. Kilbiskeem
4. Valguspaigaldise plaanid
5. Jõupaigaldise plaanid
6. Maandus ... Rohkem

Kasutaja ikoon ID46459
Pakkuja profiil Väike nool paremale
630€ Sisaldab KM Sisaldab KM 01.12.2024 Vestlus (0)

Pakkumise kirjeldus:

Tere,
Elektriprojekti tegemiseks vajalik kliendipoolne eskiis pistikute,lülitite,valgustite asukohtadega, või saame ka ise loogiliselt paigutada. Teostusaeg - 6 tööpäeva vajalike andmete saamisest. Projekt vastab kõikidele normidele ja on teostatud litsenseeritud, pikaajalise kogemusega , spetsialisti poolt.

Tervitades,

Kasutaja ikoon ID79821
Pakkuja profiil Väike nool paremale
490€ KM lisandub KM lisandub 02.12.2024 Vestlus (0)

Pakkumise kirjeldus:

Eesti Vabariigi normidele ja EVS standarditele vastav kvaliteetne põhjalik põhiprojekt. Projekti valmimise aeg 10 päeva jooksul peale alusmaterjali ja lähteülesanne esitamist. Elektriprojekteerimise kogemus >10a., soovi korral esitame projektlahendused kogemuse alusel.

Hind sisaldab:
1. Tekstiline osa (tiitelleht, dokumentide nimekiri, seletuskiri, ... Rohkem

Küsimused hanke korraldajale

Hanke korraldajale ei ole veel küsimusi esitatud.

Lisa küsimus

Lisa küsimus

Minu pakkumine

Reeglid

Pakkumise kirjelduse väli on mõeldud pakkumise detailsemaks lahti kirjutamiseks. Pikema teksti mugavaks sisestamiseks klikkige kasti paremal ülaservas oleval ikoonil.
Pakkumist tehes on keelatud postitada enda kontaktandmeid (nimi, telefon, aadress jne). Me jälgime ja analüüsime pakkumisi, et vältida pettuseid ja reeglite rikkumisi.
Rikkumise puhul kasutajakonto blokeeritakse.

 

Teisi töid samas valdkonnas

Valdkonnas "Projekteerimine" on 6 aktiivset tööd

no-img Pilt puudub

1-kordse 120 m2 elumaja põhiprojekt

Asukoht: Harjumaa, Metsanurme
Aega jäänud: 8p 17h
Tehtud pakkumisi: 4

no-img Pilt puudub

Saunamaja eelprojekt ehitusteatiseks

Asukoht: Lääne-Virumaa
Aega jäänud: 1p 17h
Tehtud pakkumisi: 3

Vanemad teated:

Vaata kõiki

Sellel veebilehel kasutatakse küpsiseid. Kasutamist jätkates nõustute küpsiste kasutamisega.

Sulge
 
Minu pakkumine

Reeglid

Pakkumise kirjelduse väli on mõeldud pakkumise detailsemaks lahti kirjutamiseks. Pikema teksti mugavaks sisestamiseks klikkige kasti paremal ülaservas oleval ikoonil.
Pakkumist tehes on keelatud postitada enda kontaktandmeid (nimi, telefon, aadress jne). Me jälgime ja analüüsime pakkumisi, et vältida pettuseid ja reeglite rikkumisi.
Rikkumise puhul kasutajakonto blokeeritakse.