+ Lisa oma töö      

Otsid ehitajat "Üldehitus" valdkonnast?

Parima pakkumise ja teostaja leidmiseks lisa oma töö.

Suvila remont

ID 105098

1394 vaatamist

Prindi

  • check Pakkumiste tegemine
    kuni 09.10.2024
  • check Võitja valik kuni
    16.10.2024
  • 3 Töö teostamine
    ja hinnang
Hanke lõpp: K, 9. oktoober, 2024
Maakond: Tartumaa
Tööde lõpp: T, 15. aprill, 2025
Ehitusmaterjalid: Töö tegija poolt
Soovin pakkumisi: Summa kogu projektile

Töö sisu

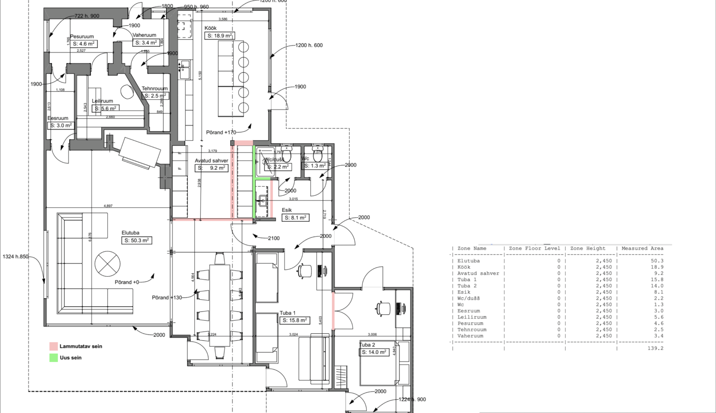
Lammutamine, seina laudis on vaja maha võtta ja lisada 50 mm villa ning uus laudis, vaja maha võtta mõned seinad ning ehitada uued. Vannitoa remont, sauna remont, värvida laed ja seinad, puitpõrandad lihvida ja lakkida või õlitada, köögimööbli paigaldus. Uute elektrijuhtmete vedamine.

Pildid, video ja failid

Hanke korraldaja: eraisik ID85637

Pakkumised

Pakkumisi kokku: 0

Küsimused hanke korraldajale

Küsimus: private ID53303   04.10.2024 07:12
Tere
Tundub et tööd jagub. Paluks rohkem infot.
Näiteks mahud täpsemalt välja kirjutada.
Huvi on
T.E.

Teavita reeglite rikkumisest

Korraldaja vastus:
Hanke korraldaja ei ole küsimusele veel vastanud

Küsimus: private ID19121   04.10.2024 17:54
Millega talvel ruume köetakse?

Teavita reeglite rikkumisest

Korraldaja vastus:
Hanke korraldaja ei ole küsimusele veel vastanud

Küsimus: private ID65773   04.10.2024 18:03
Tere!
Kas oleks võimalik lisada pilte ?

Lugupidamisega!

Teavita reeglite rikkumisest

Korraldaja vastus:
Hanke korraldaja ei ole küsimusele veel vastanud

Lisa küsimus

Lisa küsimus

Minu pakkumine

Reeglid

Pakkumise kirjelduse väli on mõeldud pakkumise detailsemaks lahti kirjutamiseks. Pikema teksti mugavaks sisestamiseks klikkige kasti paremal ülaservas oleval ikoonil.
Pakkumist tehes on keelatud postitada enda kontaktandmeid (nimi, telefon, aadress jne). Me jälgime ja analüüsime pakkumisi, et vältida pettuseid ja reeglite rikkumisi.
Rikkumise puhul kasutajakonto blokeeritakse.

 

Teisi töid samas valdkonnas

Valdkonnas "Üldehitus" on 33 aktiivset tööd

Puidust maja ärklikorruse soojustamine, seina, lae ja põranda ehitus

Asukoht: Põlvamaa
Aega jäänud: 15h 5 min
Tehtud pakkumisi: 4

Korteri kapitaalremont

Asukoht: Harjumaa, Laagri
Aega jäänud: 15h 5 min
Tehtud pakkumisi: 4

Vanemad teated:

Vaata kõiki

Sellel veebilehel kasutatakse küpsiseid. Kasutamist jätkates nõustute küpsiste kasutamisega.

Sulge
 
Minu pakkumine

Reeglid

Pakkumise kirjelduse väli on mõeldud pakkumise detailsemaks lahti kirjutamiseks. Pikema teksti mugavaks sisestamiseks klikkige kasti paremal ülaservas oleval ikoonil.
Pakkumist tehes on keelatud postitada enda kontaktandmeid (nimi, telefon, aadress jne). Me jälgime ja analüüsime pakkumisi, et vältida pettuseid ja reeglite rikkumisi.
Rikkumise puhul kasutajakonto blokeeritakse.