+ Lisa oma töö      

Otsid ehitajat "Ehitusprojektid" valdkonnast?

Parima pakkumise ja teostaja leidmiseks lisa oma töö.

Projekti digitaliseerimine ja kandmine EHR-i, 98a

ID 104588

1351 vaatamist

Prindi

  • check Pakkumiste tegemine
    kuni 07.10.2024
  • check Võitja valik kuni
    14.10.2024
  • 3 Töö teostamine
    ja hinnang
Hanke lõpp: E, 7. oktoober, 2024
Maakond: Harjumaa
Tööde lõpp: Kokkuleppel
Ehitusmaterjalid: Töö tegija poolt
Soovin pakkumisi: Summa kogu projektile

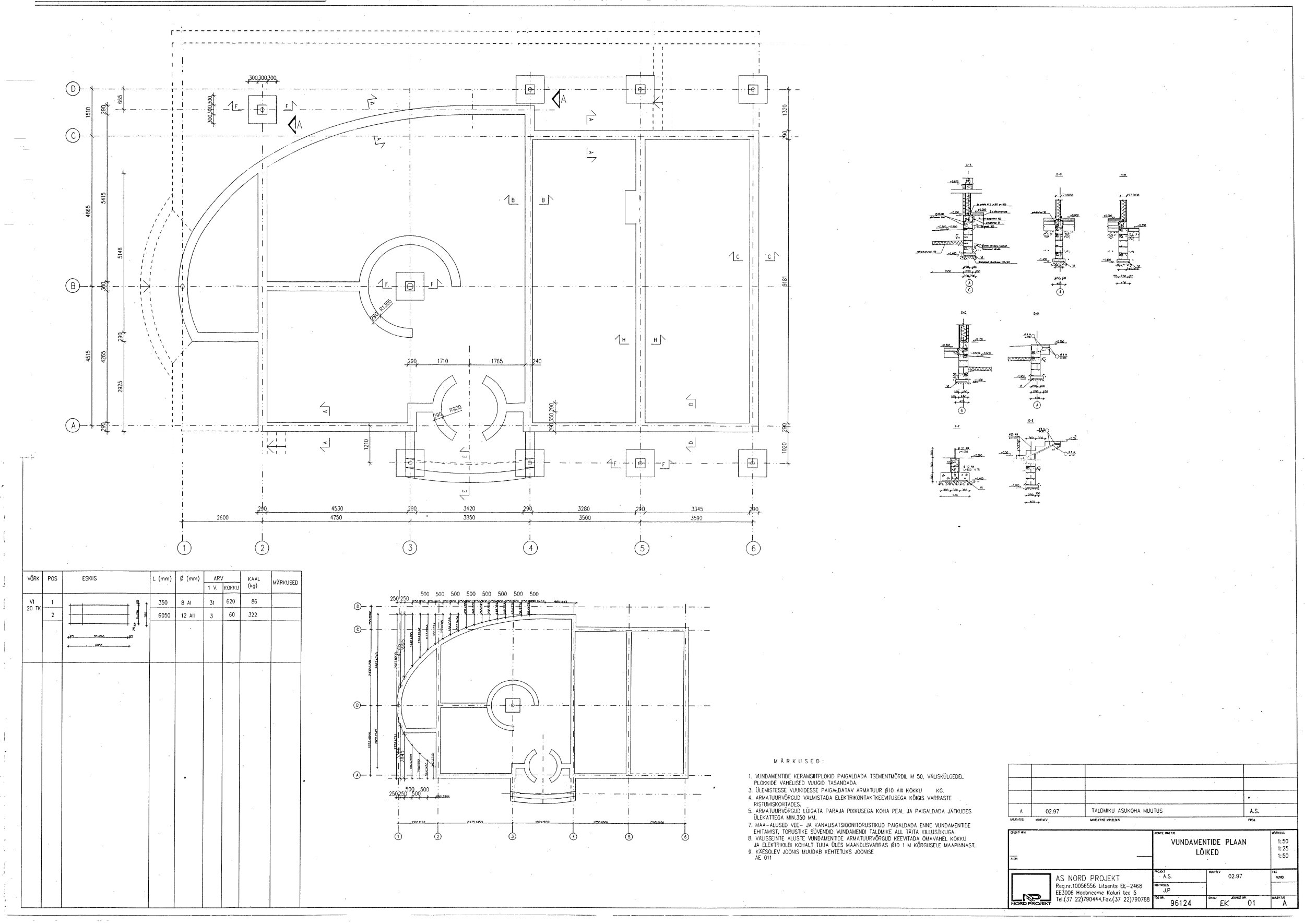
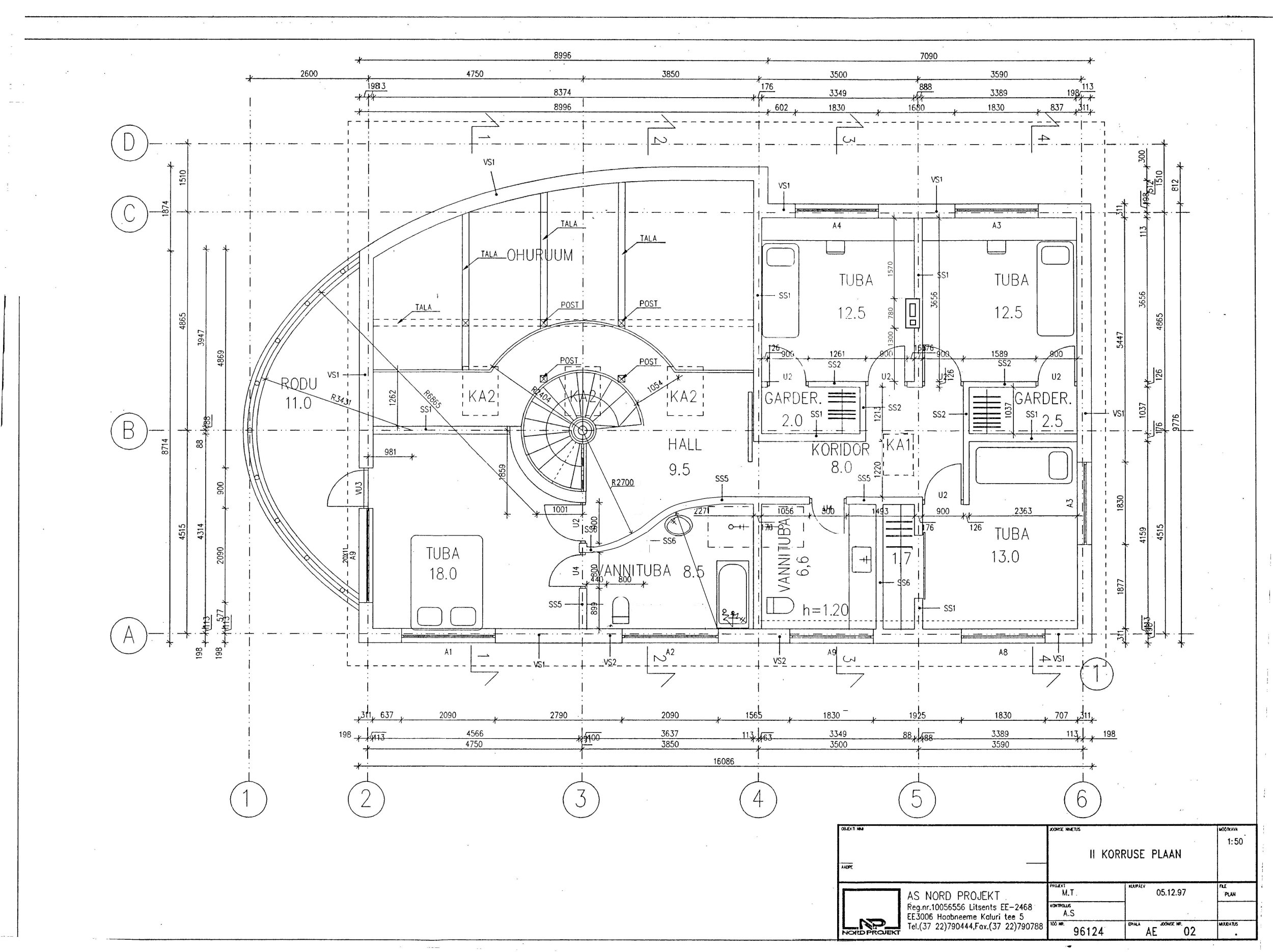
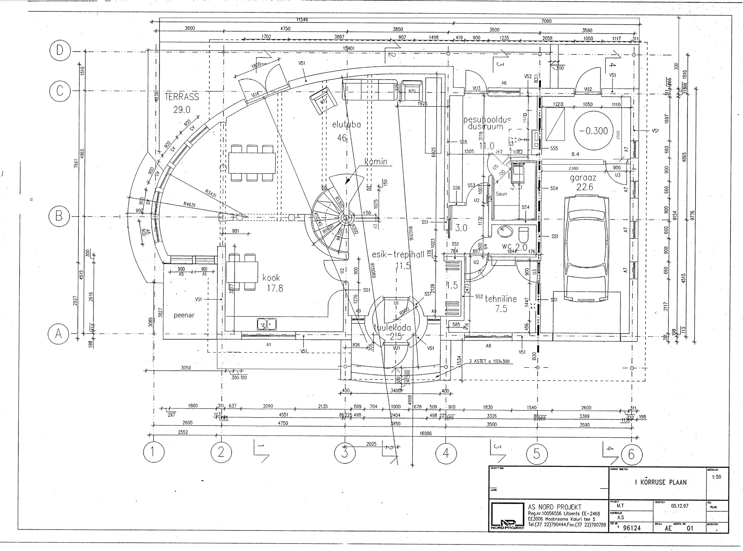
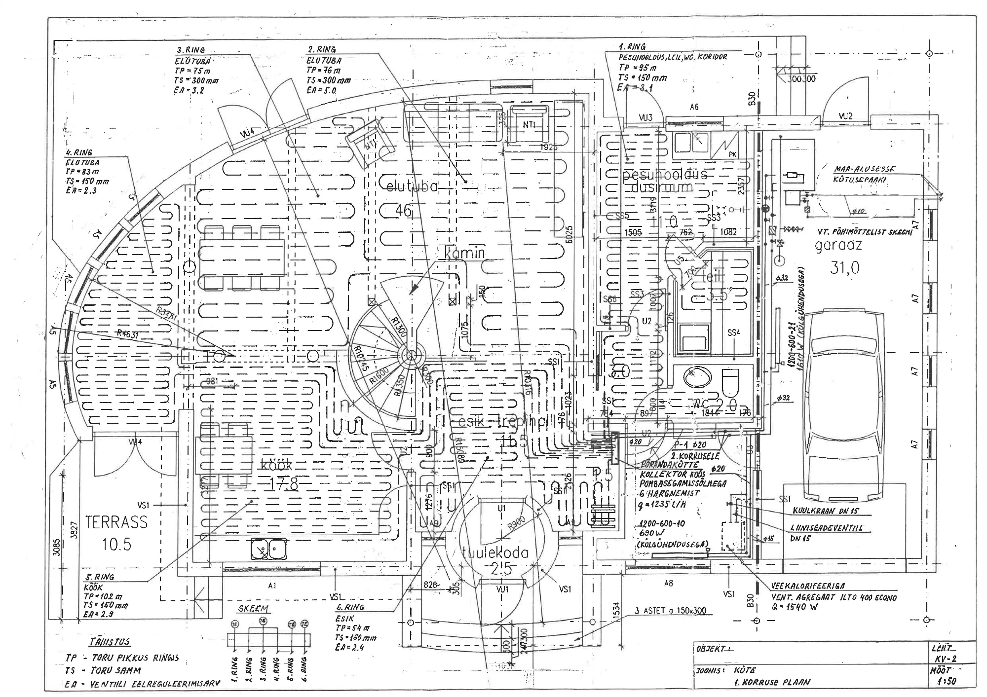
Töö sisu

Olemasolevate dokumentide loetelu on on toodud sisukordades.

Pildid, video ja failid

Hanke korraldaja: eraisik ID77684

Pakkumised

Pakkumisi kokku: 1

Ettevõte Summa Käibemaks Lisatud Vestlus
Kasutaja ikoon ID77238
Pakkuja profiil Väike nool paremale
760€ Ei ole KMKR Ei ole KMKR 24.09.2024 Vestlus (0)

Küsimused hanke korraldajale

Küsimus: private ID78702   02.10.2024 11:32
Tere
Kas saate palun täpsustada: EHRi esitamise all mõtlete andmete esitamise teatise?

Lugupidamisega

Teavita reeglite rikkumisest

Korraldaja vastus: 02.10.2024 19:48

Tere! Teatist ilmselt, on vaja taotelda kasutusluba. Ehitusluba on olemas.

Teavita reeglite rikkumisest

Küsimus: private ID78702   02.10.2024 11:34
Tere
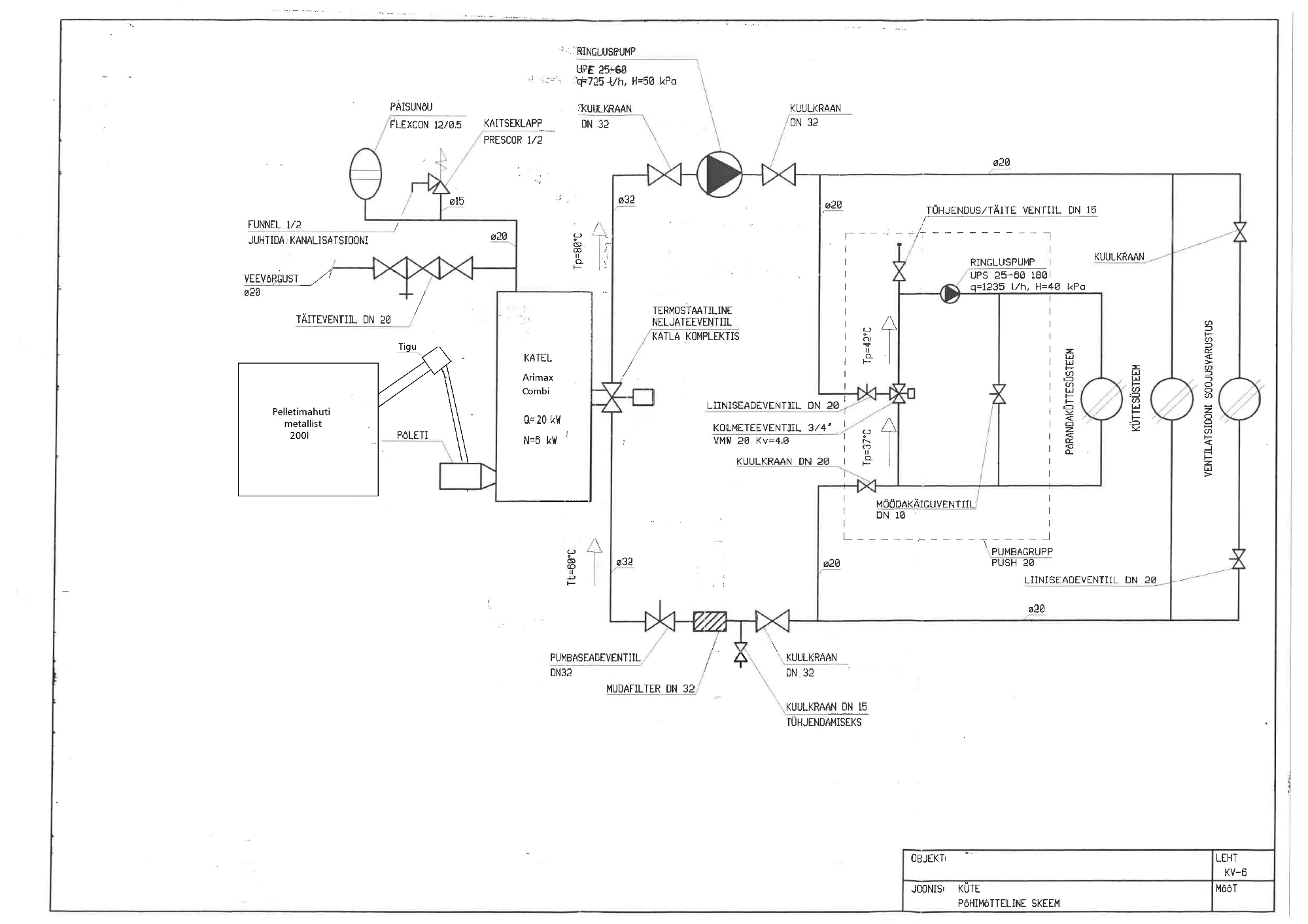
Kas küte ja ventilatsiooni joonised kuuluvad ka digitaliseerimisele? Kui jah, kas saate palun neid näidiseks lisada hanke juurde.

Lugupidamisega

Teavita reeglite rikkumisest

Korraldaja vastus: 02.10.2024 20:02

Tere! Küte ja vent. on lisatud. Loodan et on abi!

Teavita reeglite rikkumisest

Küsimus: private ID78702   03.10.2024 12:05
1)Andmete esitamise teatis ja kasutusloa taotlemine on kaks eri asja.
2)Kui soovite kasutusluba taotleda ja selleks on vaja esitada vana projekt, siis sageli aktsepteerib KOV ka skaneeritud paberversiooni, nagu teil juba tehtud on, ning digitaliseerimine pole vajalik. Digitaliseerimist on vaja ainult juhul, kui KOV seda otseselt nõuab või kui ehitamise käigus on tehtud nii palju muudatusi, et paberversioonil pole enam võimalik neid korrektselt kajastada.
3) Lisaks, kui soovite kasutusluba taotleda, siis enne seda on teil vaja esitada vähemalt: a) muudatusprojekti, juhul kui kõik pole ehitatud ehitusloa saanud projekti järgi, ning b) ehitusjärgne geomõõdistus.
Loodan, et see teave on abiks.

Teavita reeglite rikkumisest

Korraldaja vastus: 03.10.2024 19:23

Suur tänu lahke abi eest! Probleem oli selles et ma ei ole suutnud EHR-i PDF -formaadis projekti üles saada, sõltumatta nime kujust.

Teavita reeglite rikkumisest

Küsimus: private ID78702   04.10.2024 16:03
Kas olete KOViga ühendust võtnud? Tundub, et teil on vaja pigem abi menetluse alustamisega ja digitaliseerimine on mõttetu praegusel hetkel.

P.S. Mis puudutab faili nimetamist proovige .pdf faili nimega "AAA_EP_AR-0-01_v01_paberkandjalprojekt" üleslaadida. Kui küsib allkirjastatud projekti, siis allkirjastage varem mainitud nimetusega .pdf fail. Ja loodud .asice digiallkirjaga fail nimetage "AAA_EP_aadress". (Aadressi .asice faili nimesse kirjutamisel ärge kasutage täpitähti ja tühikuid.)

Teavita reeglite rikkumisest

Korraldaja vastus: 04.10.2024 21:04

KOV nõue on: "Kasutusloa taotluse juurde tuleb esitada ehitusprojekt ja küttekollete ehitamist tõendavate dokumentide (teostusjoonised, kaetud tööde aktid, toodete sertifikaadid) puudumisel esitada küttesüsteemi eksperthinnang. Esitada tuleb ehitusjärgne topo- geodeetiline mõõdistus, mis kajastab kõiki ehitisi (hooned, rajatised, tehnovõrgud) ja kõrghaljastust. Mõõdistus ja joonised esitada vastavalt kehtivale korrale DWG või DGN failina (geodeedi poolt allkirjastatuna) koos kasutusloa taotlusega ehitisregistrisse ja Viimsi geomõõdistuste infosüsteemi ja elektripaigaldise tehnilise kontrolli akt ehk audit koos mõõteprotokollidega (auditi tegija peab olema nõutava akrediteeringuga pädev isik), kust nähtub, et paigaldis vastab nõuetele. Taotlus koos dokumentidega esitada läbi ehitisregistri (www.ehr.ee) elektroonilise menetluskeskkonna"
Sellest saan aru et joonised peavad olema DWG või DGN.

Teavita reeglite rikkumisest

Lisa küsimus

Lisa küsimus

Minu pakkumine

Reeglid

Pakkumise kirjelduse väli on mõeldud pakkumise detailsemaks lahti kirjutamiseks. Pikema teksti mugavaks sisestamiseks klikkige kasti paremal ülaservas oleval ikoonil.
Pakkumist tehes on keelatud postitada enda kontaktandmeid (nimi, telefon, aadress jne). Me jälgime ja analüüsime pakkumisi, et vältida pettuseid ja reeglite rikkumisi.
Rikkumise puhul kasutajakonto blokeeritakse.

 

Teisi töid samas valdkonnas

Valdkonnas "Ehitusprojektid" on 3 aktiivset tööd

no-img Pilt puudub

Eraldiseisva korterelamu vahetu liitumine ühisveevärgiga.

Asukoht: Harjumaa, Tallinn
Aega jäänud: 3p 13h
Tehtud pakkumisi: 0

Vanemad teated:

Vaata kõiki

Sellel veebilehel kasutatakse küpsiseid. Kasutamist jätkates nõustute küpsiste kasutamisega.

Sulge
 
Minu pakkumine

Reeglid

Pakkumise kirjelduse väli on mõeldud pakkumise detailsemaks lahti kirjutamiseks. Pikema teksti mugavaks sisestamiseks klikkige kasti paremal ülaservas oleval ikoonil.
Pakkumist tehes on keelatud postitada enda kontaktandmeid (nimi, telefon, aadress jne). Me jälgime ja analüüsime pakkumisi, et vältida pettuseid ja reeglite rikkumisi.
Rikkumise puhul kasutajakonto blokeeritakse.