+ Lisa oma töö      

Otsid ehitajat "Üldehitus" valdkonnast?

Parima pakkumise ja teostaja leidmiseks lisa oma töö.

Tartu: Ava kandvasse seina. Projekt olemas.

ID 104498

267 vaatamist

Prindi

  • check Pakkumiste tegemine
    kuni 25.09.2024
  • check Võitja valik kuni
    02.10.2024
  • 3 Töö teostamine
    ja hinnang
Hanke lõpp: K, 25. september, 2024
Maakond: Tartumaa
Linn: Tartu
Tööde lõpp: Kokkuleppel
Ehitusmaterjalid: Töö tegija poolt
Soovin pakkumisi: Summa kogu projektile

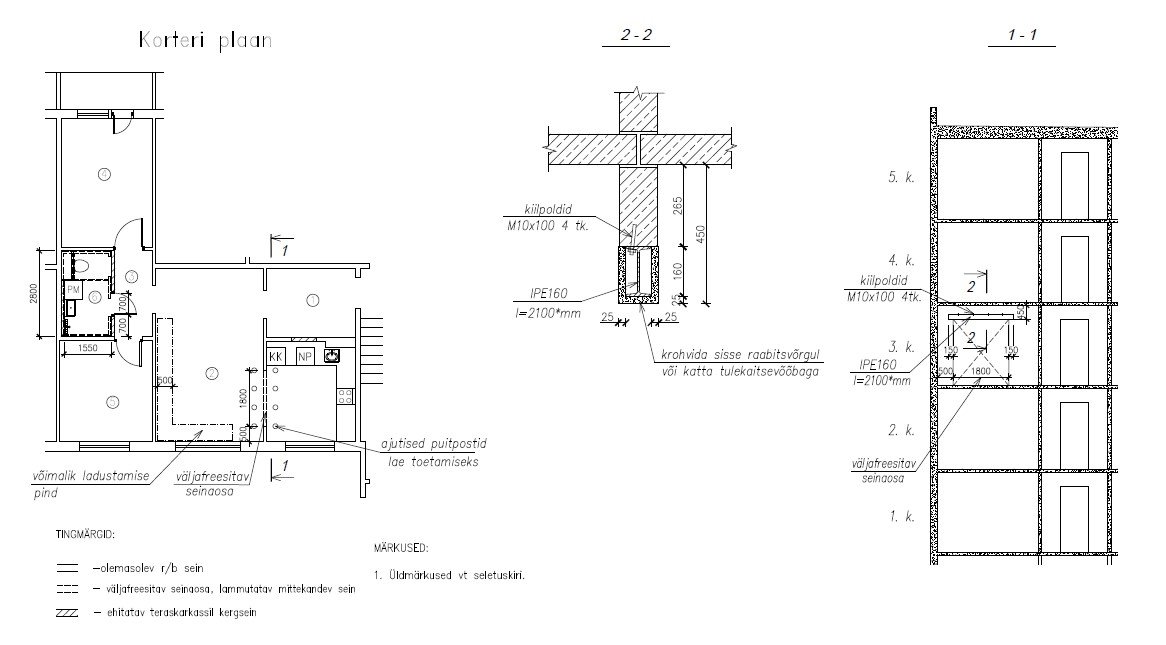
Töö sisu

Metalltala+prügi eemaldamine töövõtu sees. Töödega sooviks alustada esimesel võimalusel.

Tööde läbiviimise järjekord:
1. Enne tööde algust teha selgeks, kus jooksevad elektrijuhtmed. Elektrijuhtmed, mis lõigatakse
läbi, tuleb välja võtta ja vooluvõrgust eraldada.
2. Toestada laed ajutise tugistusega kahelt poolt ava sammuga ca ~700-1000mm ning ajutiselt
fikseerida sillust lae külge.
3. Metallelemendid enne paigaldamist kruntida ja värvida.
4. Metallelemendid kiiluda tihedalt vastu ava ülemist pinda ja vastu toetuspinda.
5. Metalltala krohvida sisse 2cm paksuselt raabitsvõrgul või katta tulekaitsekipsplaatidega 2x.
6. Materjalide ajutine ladustamine toimub korteris. Ehitustööde lõpetamisel tuleb ehitusjäätmed
koristada, sorteerida ja käidelda vastavalt Tartu linna jäätmekäitluse eeskirjadele.

Pildid, video ja failid

Hanke korraldaja: eraisik ID78194

Pakkumised

Pakkumisi kokku: 2

Ettevõte Summa Käibemaks Lisatud Vestlus
Kasutaja ikoon ID80709
Pakkuja profiil Väike nool paremale
4 200€ Ei ole KMKR Ei ole KMKR 25.09.2024 Vestlus (0)
Kasutaja ikoon ID22780
Pakkuja profiil Väike nool paremale
2 800€ KM lisandub KM lisandub 25.09.2024 Vestlus (0)

Pakkumise kirjeldus:

Pakkumine sisaldab materjale ja tööriiistu
Oleme ühe sellise ava teinud, samasuguse projekti järgi

Küsimused hanke korraldajale

Hanke korraldajale ei ole veel küsimusi esitatud.

Lisa küsimus

Lisa küsimus

Minu pakkumine

Reeglid

Pakkumise kirjelduse väli on mõeldud pakkumise detailsemaks lahti kirjutamiseks. Pikema teksti mugavaks sisestamiseks klikkige kasti paremal ülaservas oleval ikoonil.
Pakkumist tehes on keelatud postitada enda kontaktandmeid (nimi, telefon, aadress jne). Me jälgime ja analüüsime pakkumisi, et vältida pettuseid ja reeglite rikkumisi.
Rikkumise puhul kasutajakonto blokeeritakse.

 

Teisi töid samas valdkonnas

Valdkonnas "Üldehitus" on 34 aktiivset tööd

Korteri kapitaalremont

Asukoht: Harjumaa, Laagri
Aega jäänud: 13h 4 min
Tehtud pakkumisi: 5

5 tonni liiva esimese korruse aknast sisse tõsta (põranda aluse täiteks)

Asukoht: Jõgevamaa, Jõgeva
Aega jäänud: 1p 13h
Tehtud pakkumisi: 4

Vanemad teated:

Vaata kõiki

Sellel veebilehel kasutatakse küpsiseid. Kasutamist jätkates nõustute küpsiste kasutamisega.

Sulge
 
Minu pakkumine

Reeglid

Pakkumise kirjelduse väli on mõeldud pakkumise detailsemaks lahti kirjutamiseks. Pikema teksti mugavaks sisestamiseks klikkige kasti paremal ülaservas oleval ikoonil.
Pakkumist tehes on keelatud postitada enda kontaktandmeid (nimi, telefon, aadress jne). Me jälgime ja analüüsime pakkumisi, et vältida pettuseid ja reeglite rikkumisi.
Rikkumise puhul kasutajakonto blokeeritakse.