+ Lisa oma töö      

Otsid ehitajat "Ehitusprojektid" valdkonnast?

Parima pakkumise ja teostaja leidmiseks lisa oma töö.

Hange on lõppenud!

Võitjaks osutus kasutaja ID 42152

Maja projekt

ID 103897

656 vaatamist

Prindi

  • check Pakkumiste tegemine
    kuni 17.09.2024
  • check Võitja valik kuni
    24.09.2024
  • 3 Töö teostamine
    ja hinnang
Hanke lõpp: T, 17. september, 2024
Maakond: Harjumaa
Muu asula: Vääna-Jõesuu
Tööde lõpp: Kokkuleppel
Ehitusmaterjalid: Töö tellija poolt
Soovin pakkumisi: Summa kogu projektile

Töö sisu

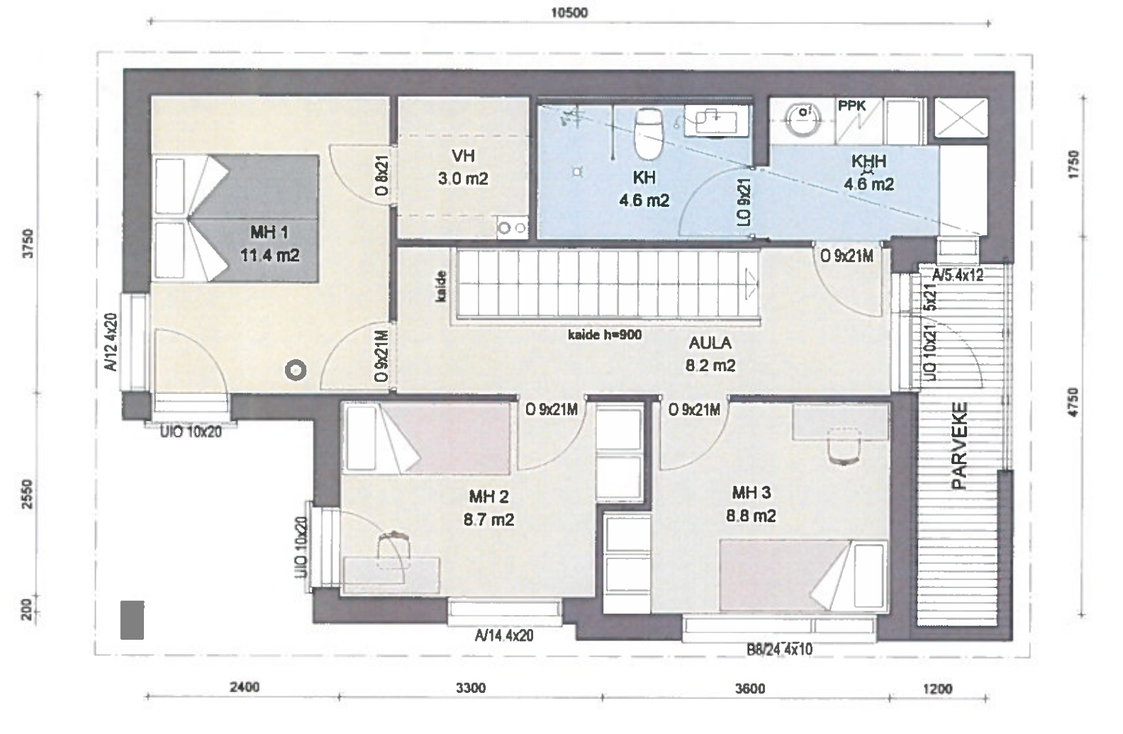
Vaja oleks elumaja ehitamiseks projekti.
Ehitusaluse pinnaks võib olla max 120m^2.
Visand tehtud teise projekti pealt. Lisan originaali, millest inspiratsiooni sain ja omalt poolt muudatustega kritseldatud versiooni.
Olemas on geoalus ja ehitustingimused.

Pildid, video ja failid

Hanke korraldaja: eraisik ID85128

Pakkumised

Pakkumisi kokku: 5

Ettevõte Summa Käibemaks Lisatud Vestlus
Kasutaja ikoon ID69164
Pakkuja profiil Väike nool paremale
1 600€ Ei ole KMKR Ei ole KMKR 13.09.2024 Vestlus (2)

Pakkumise kirjeldus:

Hoone ehitusprojekt eelprojekti staadiumis.

Koostatav projekt vastab EVS 932:2017 ja MKM määruse nr. 97 „Nõuded ehitusprojektile1" nõuetele.

Märkused:
1. Hinnapakkumine ei sisalda Topo-geodeetiliste, ehitusgeoloogiliste, dendroloogiliste uuringute koostamist, ega nende maksumust,
2. Projektiga ja projekteerimisega seotud kõik kooskõlastustas ... Rohkem

Kasutaja ikoon ID42152
Pakkuja profiil Väike nool paremale
1 285€ Ei ole KMKR Ei ole KMKR 13.09.2024 Vestlus (5)

Pakkumise kirjeldus:

Ehitusprojekt eelprojekti staadiumis (arh-eh osa koos eriosadega).
Pakkumishind sisaldab:
Seletuskiri
Energiaarvutused
Asendiplaan
Vund ja korruste plaanid
Katuse plaan
Hoone lõige
Hoone vaated
Avatäidete joonised
Jm asjakohased vajalikud joonised

Kooskõlastused ehitusloa saamiseks
Ehitusloa taotluse esitamine KOV
Suhtlus KOV ehitusloa väl ... Rohkem

Kasutaja ikoon ID37465
Pakkuja profiil Väike nool paremale
2 490€ Ei ole KMKR Ei ole KMKR 13.09.2024 Vestlus (0)

Pakkumise kirjeldus:

Tere

Hind sisaldab arhitektuurse eelprojekti koostamist uue elamu ehitamiseks ja ehitusloa taotlemist.

Töö sisaldab:

-Projekteerimistingimuste taotlemist
-Ehitusprojekti: vundamendi plaani, korruste plaane, katuseplaan, lõige, vaateid, avatäidete spetsifikatsiooni ja asendiplaani koostamist.
-3D vaateid
-Seletuskirja
-Projekti sisestamine eh ... Rohkem

Kasutaja ikoon ID79879
Pakkuja profiil Väike nool paremale
2 500€ KM lisandub KM lisandub 14.09.2024 Vestlus (0)

Pakkumise kirjeldus:

Tere

Hinnapakkumine sisaldab:
- asendiplaan
- vundamendi plaan
- põhiplaan
- katuse plaan
- lõige
- vaated
- seletuskiri
- EHR toimingud ehitusloa kättesaamiseni.

Tasuda saab ka sulas.

Teinud palju sarnaseid projekte üle Eesti.
Tööga saan alustada koheselt.

Kasutaja ikoon ID78425
Pakkuja profiil Väike nool paremale
3 800€ KM lisandub KM lisandub 16.09.2024 Vestlus (0)

Pakkumise kirjeldus:

Oleme 15 aastase projekteerimiskogemusega arhitektuuribüroo ning teinud sadu projekte üle eesti ning omame 10 spetsialisti näol piisavalt kompetentsi.
Arhitektuurne eelprojekt (asendiplaan, seletuskiri, korruste plaanid, vaated, lõiked) 3300-
Ehitusloa taotlus ja menetlus (Projekti EHR-i laadimine, andmete ajakohastamine ja KOV-i märkuste
lahendam ... Rohkem

Küsimused hanke korraldajale

Hanke korraldajale ei ole veel küsimusi esitatud.

Lisa küsimus

Lisa küsimus

Minu pakkumine

Reeglid

Pakkumise kirjelduse väli on mõeldud pakkumise detailsemaks lahti kirjutamiseks. Pikema teksti mugavaks sisestamiseks klikkige kasti paremal ülaservas oleval ikoonil.
Pakkumist tehes on keelatud postitada enda kontaktandmeid (nimi, telefon, aadress jne). Me jälgime ja analüüsime pakkumisi, et vältida pettuseid ja reeglite rikkumisi.
Rikkumise puhul kasutajakonto blokeeritakse.

 

Teisi töid samas valdkonnas

Valdkonnas "Ehitusprojektid" on 6 aktiivset tööd

no-img Pilt puudub

Ehitusinsener tase 7 vastutav allikiri

Asukoht: Pärnumaa, Pärnu
Aega jäänud: 8h 30 min
Tehtud pakkumisi: 2

Korteri elektri projekt

Asukoht: Harjumaa, Tallinn
Aega jäänud: 2p 8h
Tehtud pakkumisi: 2

Vanemad teated:

Vaata kõiki

Sellel veebilehel kasutatakse küpsiseid. Kasutamist jätkates nõustute küpsiste kasutamisega.

Sulge
 
Minu pakkumine

Reeglid

Pakkumise kirjelduse väli on mõeldud pakkumise detailsemaks lahti kirjutamiseks. Pikema teksti mugavaks sisestamiseks klikkige kasti paremal ülaservas oleval ikoonil.
Pakkumist tehes on keelatud postitada enda kontaktandmeid (nimi, telefon, aadress jne). Me jälgime ja analüüsime pakkumisi, et vältida pettuseid ja reeglite rikkumisi.
Rikkumise puhul kasutajakonto blokeeritakse.