+ Lisa oma töö      

Otsid ehitajat "Projekteerimine" valdkonnast?

Parima pakkumise ja teostaja leidmiseks lisa oma töö.

1-korruselise eramu kütte-, vee- ja kanalisatsiooniprojekt

ID 103860

418 vaatamist

Prindi

  • check Pakkumiste tegemine
    kuni 24.09.2024
  • check Võitja valik kuni
    01.10.2024
  • 3 Töö teostamine
    ja hinnang
Hanke lõpp: T, 24. september, 2024
Maakond: Järvamaa
Tööde lõpp: Kokkuleppel
Ehitusmaterjalid: Töö tellija poolt
Soovin pakkumisi: Summa kogu projektile

Töö sisu

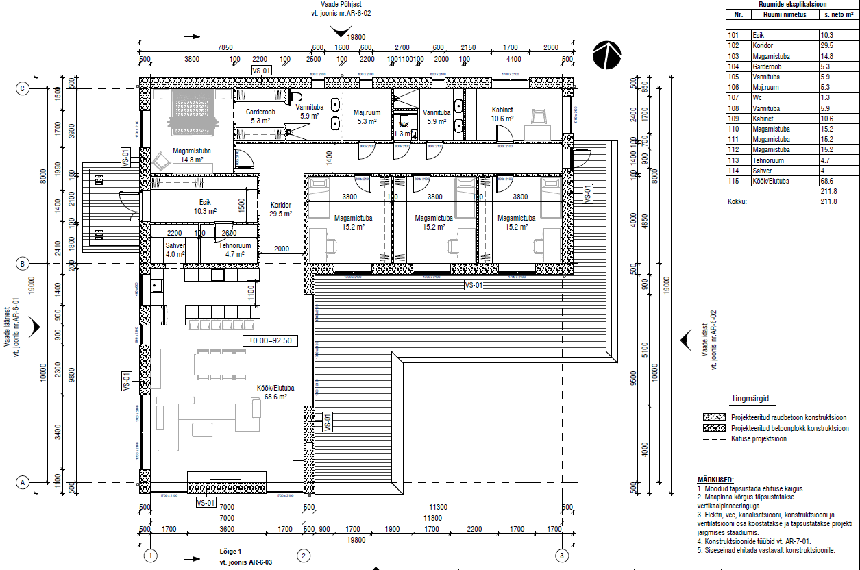
Soovin kütte-, vee- ja kanalisatsiooni projekti elumajale. Kokku neto pind 211,8 m2.
Elumaja ehitamisprotsessis. Majja on plaanis panna õhk-vesi soojuspumbaga põrandaküte.

Pildid, video ja failid

Hanke korraldaja: eraisik ID83734

Pakkumised

Pakkumisi kokku: 4

Ettevõte Summa Käibemaks Lisatud Vestlus
Kasutaja ikoon ID79118
Pakkuja profiil Väike nool paremale
1 800€ KM lisandub KM lisandub 11.09.2024 Vestlus (0)

Pakkumise kirjeldus:

Vesi kanal 800, Küte (põrandaküte) 1000. Ventilatsioon tulevikus 1000+km. Projekteerib Tase 7 projekteerija.

Kasutaja ikoon ID63115
Pakkuja profiil Väike nool paremale
1 700€ KM lisandub KM lisandub 12.09.2024 Vestlus (0)

Pakkumise kirjeldus:

Tere

Hinnapakkumine sisaldab kütte-, ventilatsiooni-, veevarustuse- ja kanalisatsioonisüsteemide põhiprojekti.
Ettemaksu ei soovi. Vastutava isiku allkiri on hinna sees.
Kütte pakkumine sisaldab soojuskadude arvutamist dünaamilises tarkvaras, põrandküttetorude projekteerimist, magistraalide jooniseid, soojussõlme projekteerimist , põhiseadmet ... Rohkem

Kasutaja ikoon ID73338
Pakkuja profiil Väike nool paremale
1 300€ Sisaldab KM Sisaldab KM 20.09.2024 Vestlus (0)

Pakkumise kirjeldus:

Pakutava kütte põhiprojekti maht:
1) Seletuskiri
2) Korruseplaanid (küttekontuurid, magistraalide paiknemised)
3) Sõlmede skeemid/ toimimisskeemid
4) Materjalide spetsifikatsioonid (näidistoodete ja seademetega)
5) Lähteinfo elektrikule ja sisearhitektile

Pakutava hoonesisese vee- ja kanalisatsiooni põhiprojekti maht:
1) Seletuskiri
2) Korru ... Rohkem

Kasutaja ikoon ID82852
Pakkuja profiil Väike nool paremale
490€ Sisaldab KM Sisaldab KM 24.09.2024 Vestlus (0)

Pakkumise kirjeldus:

Iga eriosa projekt 490 eurot. Töödega saame alustada kohe.

Küsimused hanke korraldajale

Küsimus: private ID73338   11.09.2024 10:00
Tere!

Kas ventilatsiooni osa pole vaja?

Teavita reeglite rikkumisest

Korraldaja vastus: 11.09.2024 10:03

Tere,
Tulevikus on kindlasti ka seda vaja

Teavita reeglite rikkumisest

Lisa küsimus

Lisa küsimus

Minu pakkumine

Reeglid

Pakkumise kirjelduse väli on mõeldud pakkumise detailsemaks lahti kirjutamiseks. Pikema teksti mugavaks sisestamiseks klikkige kasti paremal ülaservas oleval ikoonil.
Pakkumist tehes on keelatud postitada enda kontaktandmeid (nimi, telefon, aadress jne). Me jälgime ja analüüsime pakkumisi, et vältida pettuseid ja reeglite rikkumisi.
Rikkumise puhul kasutajakonto blokeeritakse.

 

Teisi töid samas valdkonnas

Valdkonnas "Projekteerimine" on 6 aktiivset tööd

no-img Pilt puudub

1-kordse 120 m2 elumaja põhiprojekt

Asukoht: Harjumaa, Metsanurme
Aega jäänud: 8p 19h
Tehtud pakkumisi: 4

no-img Pilt puudub

Saunamaja eelprojekt ehitusteatiseks

Asukoht: Lääne-Virumaa
Aega jäänud: 1p 19h
Tehtud pakkumisi: 3

Vanemad teated:

Vaata kõiki

Sellel veebilehel kasutatakse küpsiseid. Kasutamist jätkates nõustute küpsiste kasutamisega.

Sulge
 
Minu pakkumine

Reeglid

Pakkumise kirjelduse väli on mõeldud pakkumise detailsemaks lahti kirjutamiseks. Pikema teksti mugavaks sisestamiseks klikkige kasti paremal ülaservas oleval ikoonil.
Pakkumist tehes on keelatud postitada enda kontaktandmeid (nimi, telefon, aadress jne). Me jälgime ja analüüsime pakkumisi, et vältida pettuseid ja reeglite rikkumisi.
Rikkumise puhul kasutajakonto blokeeritakse.