+ Lisa oma töö      

Otsid ehitajat "Üldehitus" valdkonnast?

Parima pakkumise ja teostaja leidmiseks lisa oma töö.

Kandva vaheseina lammutus

ID 103707

400 vaatamist

Prindi

  • check Pakkumiste tegemine
    kuni 22.09.2024
  • check Võitja valik kuni
    29.09.2024
  • 3 Töö teostamine
    ja hinnang
Hanke lõpp: P, 22. september, 2024
Maakond: Harjumaa
Linn: Tallinn
Tööde lõpp: Kokkuleppel
Ehitusmaterjalid: Töö tellija poolt
Soovin pakkumisi: Summa kogu projektile

Töö sisu

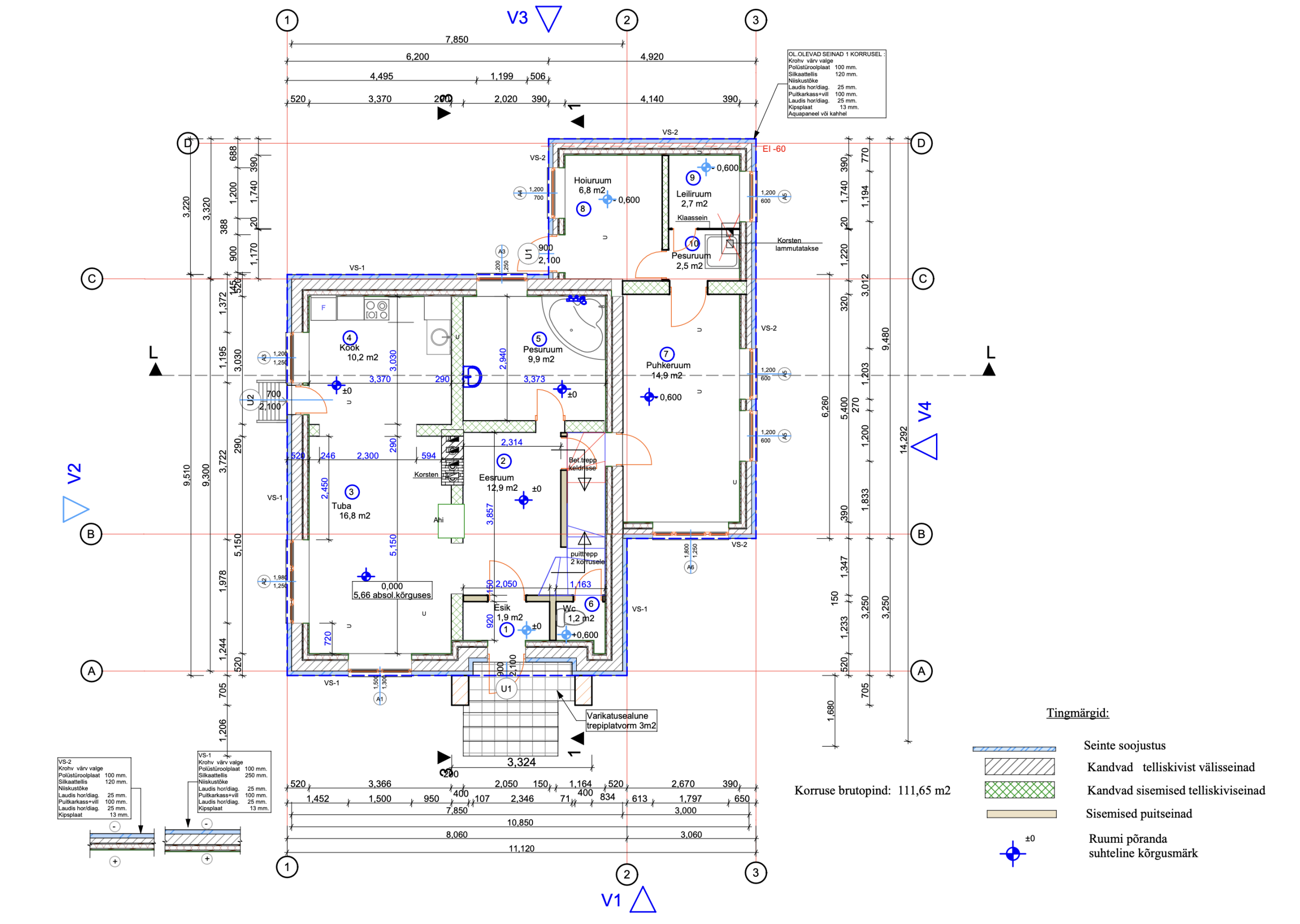
Kandva vaheseina lammutus koos utiliseerimsiega kahekordse maja esimese korrusel. Sein on vaja toestada enne täieliku lammutust. Seina paksus on 29cm, 1.5m lai (+ 82cm ukse pealt) ja ava kõrgus 2.2 - 2.7m (oleneb kuidas võimalik teha/toestada). Sein tõenöoliselt ühelt poolt valgest tellisest ja teiselt poolt punasest kärgtellisest.

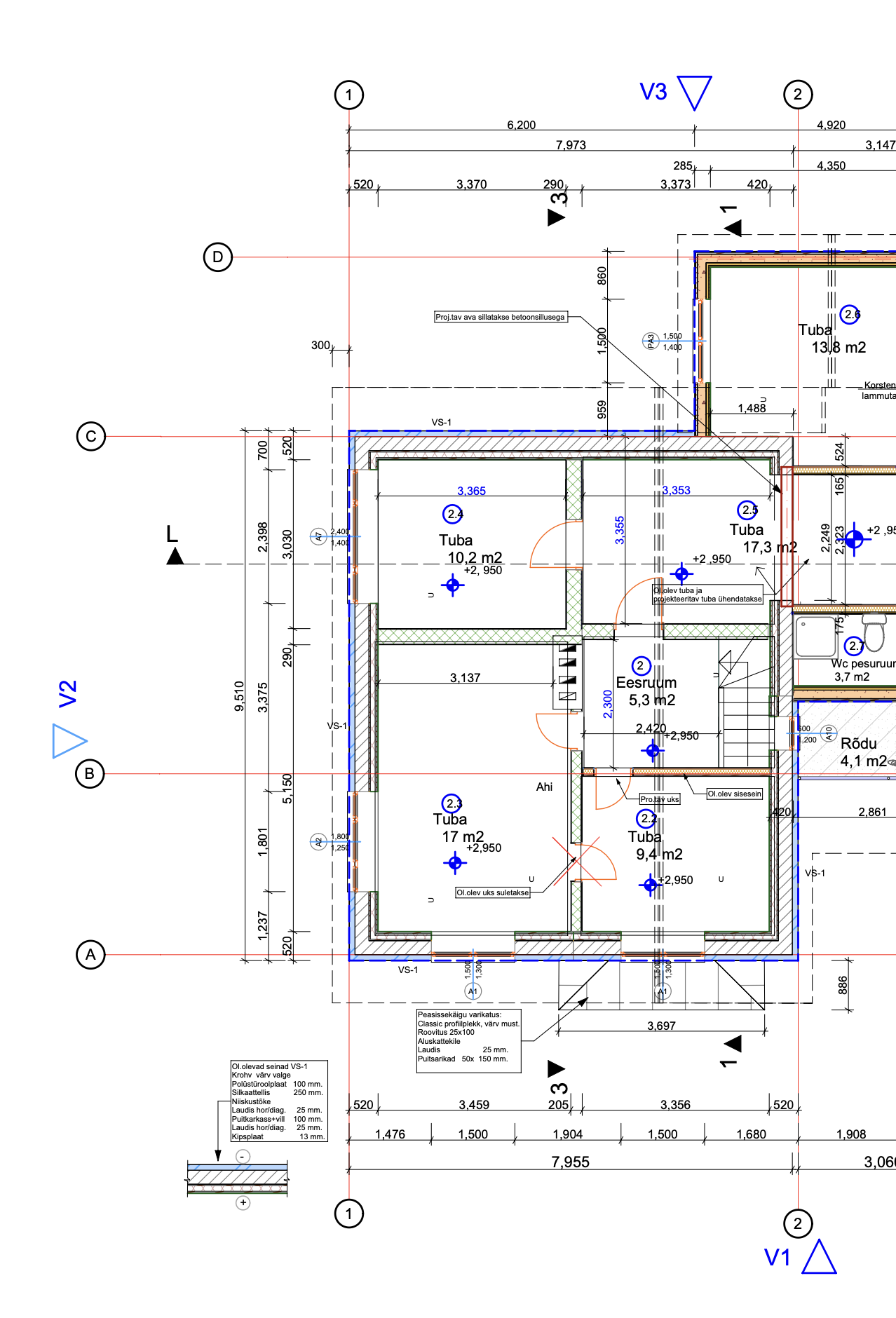
Sama sein teisel korrusel on ühel poolt valgest tellisest, mis osaliselt lammutatud, ja teiselt poolt puit konstruktsioon. Lisasin ka pildid samast seinast teisel korrusel.

Töid sooviks teostada oktoobris.

Pildid, video ja failid

Hanke korraldaja: eraisik ID28613

Pakkumised

Pakkumisi kokku: 2

Ettevõte Summa Käibemaks Lisatud Vestlus
Kasutaja ikoon ID22919
Pakkuja profiil Väike nool paremale
3 800€ KM lisandub KM lisandub 09.09.2024 Vestlus (0)
Kasutaja ikoon ID57475
Pakkuja profiil Väike nool paremale
1 500€ KM lisandub KM lisandub 15.09.2024 Vestlus (0)

Küsimused hanke korraldajale

Hanke korraldajale ei ole veel küsimusi esitatud.

Lisa küsimus

Lisa küsimus

Minu pakkumine

Reeglid

Pakkumise kirjelduse väli on mõeldud pakkumise detailsemaks lahti kirjutamiseks. Pikema teksti mugavaks sisestamiseks klikkige kasti paremal ülaservas oleval ikoonil.
Pakkumist tehes on keelatud postitada enda kontaktandmeid (nimi, telefon, aadress jne). Me jälgime ja analüüsime pakkumisi, et vältida pettuseid ja reeglite rikkumisi.
Rikkumise puhul kasutajakonto blokeeritakse.

 

Teisi töid samas valdkonnas

Valdkonnas "Üldehitus" on 34 aktiivset tööd

Korteri kapitaalremont

Asukoht: Harjumaa, Laagri
Aega jäänud: 13h 7 min
Tehtud pakkumisi: 5

5 tonni liiva esimese korruse aknast sisse tõsta (põranda aluse täiteks)

Asukoht: Jõgevamaa, Jõgeva
Aega jäänud: 1p 13h
Tehtud pakkumisi: 4

Vanemad teated:

Vaata kõiki

Sellel veebilehel kasutatakse küpsiseid. Kasutamist jätkates nõustute küpsiste kasutamisega.

Sulge
 
Minu pakkumine

Reeglid

Pakkumise kirjelduse väli on mõeldud pakkumise detailsemaks lahti kirjutamiseks. Pikema teksti mugavaks sisestamiseks klikkige kasti paremal ülaservas oleval ikoonil.
Pakkumist tehes on keelatud postitada enda kontaktandmeid (nimi, telefon, aadress jne). Me jälgime ja analüüsime pakkumisi, et vältida pettuseid ja reeglite rikkumisi.
Rikkumise puhul kasutajakonto blokeeritakse.