+ Lisa oma töö      

Otsid ehitajat "Projekteerimine" valdkonnast?

Parima pakkumise ja teostaja leidmiseks lisa oma töö.

Hange on lõppenud!

Võitjaks osutus kasutaja ID 63115

Korraldaja hinnang tehtud tööle

4.7
07.10.2024
Töökiirus: 12345
Kvaliteet: 12345
Hind: 12345

Eeldasin kiiremat alustamisaega, kuid tegelikult laabus kõik hästi. - Laur L.

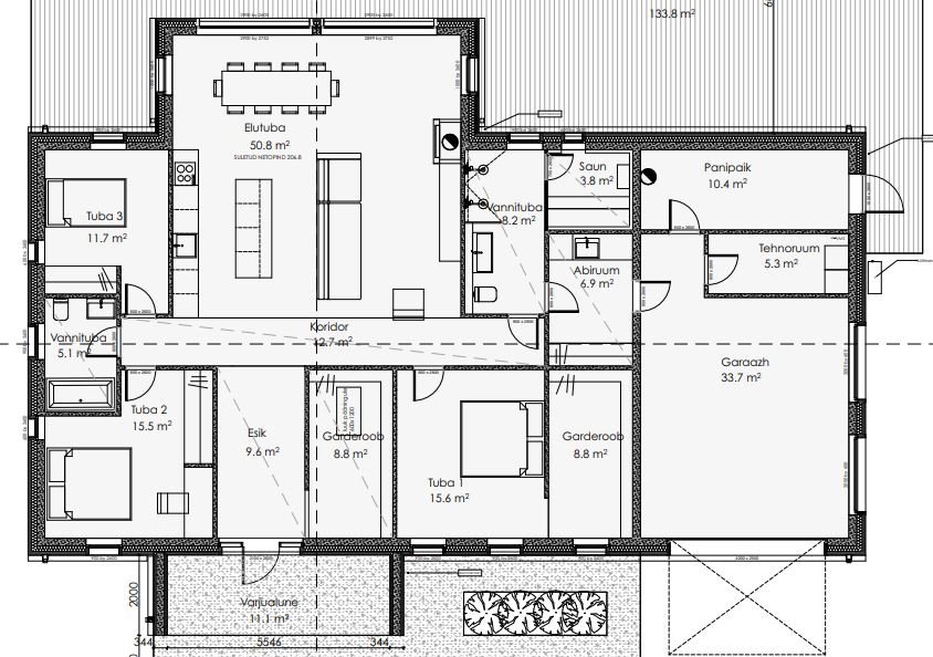
1-korruselise 200m2 eramu kütte, ventilatsiooni ja jahutussüsteemi projekt põhiprojekti staadiumis

ID 103668

633 vaatamist

Prindi

  • check Pakkumiste tegemine
    kuni 14.09.2024
  • check Võitja valik kuni
    21.09.2024
  • 3 Töö teostamine
    ja hinnang
Hanke lõpp: L, 14. september, 2024
Maakond: Harjumaa
Tööde lõpp: P, 22. september, 2024
Ehitusmaterjalid: Töö tellija poolt
Soovin pakkumisi: Summa kogu projektile

Töö sisu

Maaküte, eelprojektis oli algselt planeeritud õhk vesi soojuspumbaga lahendus.

Pildid, video ja failid

Hanke korraldaja: eraisik ID85036

Pakkumised

Pakkumisi kokku: 4

Ettevõte Summa Käibemaks Lisatud Vestlus
Kasutaja ikoon ID73338
Pakkuja profiil Väike nool paremale
1 900€ Sisaldab KM Sisaldab KM 10.09.2024 Vestlus (0)

Pakkumise kirjeldus:

Pakutava põhiprojekti maht:
1) Seletuskiri (küte ja ventilatsioon koos)
2) Korruseplaanid (eraldi korruseplaanid küttele, ventilatsioonile ja jahutusele)
3) Sõlmede skeemid/ toimimisskeemid
4) Materjalide spetsifikatsioonid (näidistoodete ja seademetega)
5) Seadmete väljatrükid
6) Lähteinfo elektrikule, vk-insenerile ja sisearhitektile

Läht ... Rohkem

Kasutaja ikoon ID63115
Pakkuja profiil Väike nool paremale
1 500€ KM lisandub KM lisandub 10.09.2024 Vestlus (2)

Pakkumise kirjeldus:

Tere

Hinnapakkumine sisaldab kütte-, ventilatsiooni-, jahutussüsteemide põhiprojekti.
Ettemaksu ei soovi. Vastutava isiku allkiri on hinna sees.
Kütte pakkumine sisaldab soojuskadude arvutamist dünaamilises tarkvaras, põrandküttetorude projekteerimist, magistraalide jooniseid, põhiseadmete mahuloetelu ja seletuskirja. (vastavalt EVS:844 2022)
... Rohkem

Kasutaja ikoon ID19182
Pakkuja profiil Väike nool paremale
1 400€ KM lisandub KM lisandub 14.09.2024 Vestlus (0)

Pakkumise kirjeldus:

Antud hinnapakkumine sisaldab kütte. ventilatsiooni ja jahutuse hoonesisese osa põhiprojekti vastavalt standardile EVS 932:2017 "Ehitusprojekt”. Alusjoonisteks vajame arhitektuurseid jooniseid dwg formaadis ja piirdekonstruktsioonide U-arve.

Kasutaja ikoon ID82852
Pakkuja profiil Väike nool paremale
1 380€ Sisaldab KM Sisaldab KM 14.09.2024 Vestlus (0)

Pakkumise kirjeldus:

Pakkumine sisaldab hoonesisest kütte-, ventilatsiooni- ja jahutuseprojekti põhiprojekti mahus. Ettevõttel pikaaegne kogemus erinevate projektidega. Tööga saame alustada kohe.

Küsimused hanke korraldajale

Hanke korraldajale ei ole veel küsimusi esitatud.

Lisa küsimus

Lisa küsimus

Minu pakkumine

Reeglid

Pakkumise kirjelduse väli on mõeldud pakkumise detailsemaks lahti kirjutamiseks. Pikema teksti mugavaks sisestamiseks klikkige kasti paremal ülaservas oleval ikoonil.
Pakkumist tehes on keelatud postitada enda kontaktandmeid (nimi, telefon, aadress jne). Me jälgime ja analüüsime pakkumisi, et vältida pettuseid ja reeglite rikkumisi.
Rikkumise puhul kasutajakonto blokeeritakse.

 

Teisi töid samas valdkonnas

Valdkonnas "Projekteerimine" on 6 aktiivset tööd

no-img Pilt puudub

1-kordse 120 m2 elumaja põhiprojekt

Asukoht: Harjumaa, Metsanurme
Aega jäänud: 8p 21h
Tehtud pakkumisi: 4

no-img Pilt puudub

Saunamaja eelprojekt ehitusteatiseks

Asukoht: Lääne-Virumaa
Aega jäänud: 1p 21h
Tehtud pakkumisi: 3

Vanemad teated:

Vaata kõiki

Sellel veebilehel kasutatakse küpsiseid. Kasutamist jätkates nõustute küpsiste kasutamisega.

Sulge
 
Minu pakkumine

Reeglid

Pakkumise kirjelduse väli on mõeldud pakkumise detailsemaks lahti kirjutamiseks. Pikema teksti mugavaks sisestamiseks klikkige kasti paremal ülaservas oleval ikoonil.
Pakkumist tehes on keelatud postitada enda kontaktandmeid (nimi, telefon, aadress jne). Me jälgime ja analüüsime pakkumisi, et vältida pettuseid ja reeglite rikkumisi.
Rikkumise puhul kasutajakonto blokeeritakse.