+ Lisa oma töö      

Otsid ehitajat "Üldehitus" valdkonnast?

Parima pakkumise ja teostaja leidmiseks lisa oma töö.

Eramu renoveerimine

ID 101682

389 vaatamist

Prindi

  • check Pakkumiste tegemine
    kuni 19.08.2024
  • check Võitja valik kuni
    26.08.2024
  • 3 Töö teostamine
    ja hinnang
Hanke lõpp: E, 19. august, 2024
Maakond: Raplamaa
Muu asula: Märjamaa
Tööde lõpp: Kokkuleppel
Ehitusmaterjalid: Töö tegija poolt
Soovin pakkumisi: Summa kogu projektile

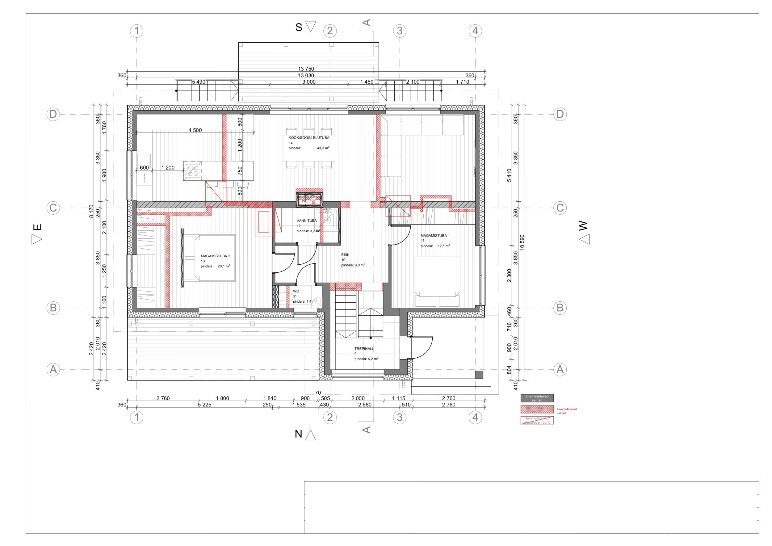
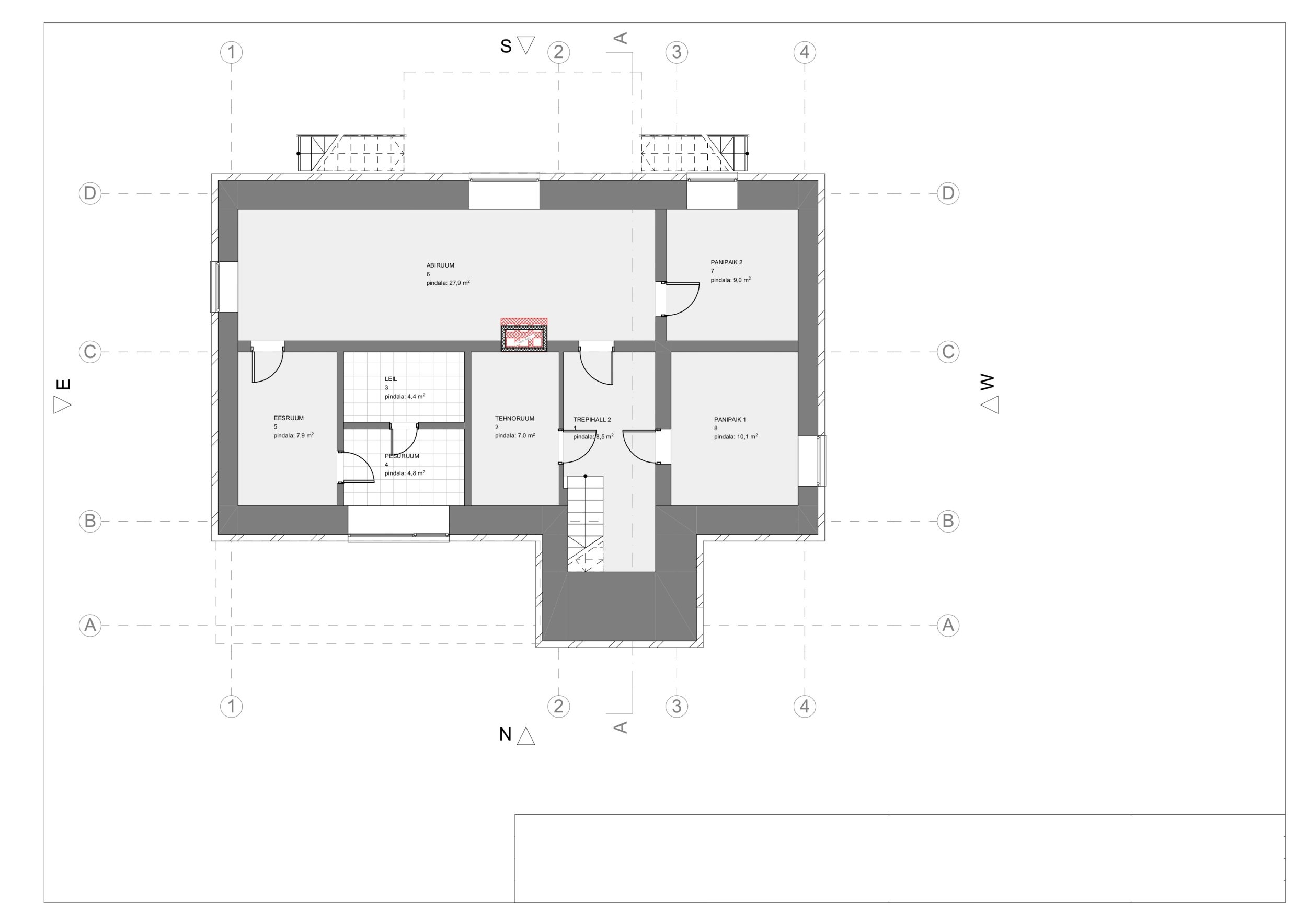
Töö sisu

Tere

Vana maja renoveerimistööde käigus vajab teostamist:

Tööde esialgne kirjeldus:

* Vana silikaatvoodri lammutus ja utiliseerimine.
* Vanade akende demontaaž ja utiliseerimine (vanad aknad saab tasuta ära anda kohalikus jäätmejaamas).
* Osade aknaavade suuremaks tegemine vastavalt projektile.
* Uute akende (U-väärtus kuni 0,8 W/m2K) ja välisukse paigaldus
* Vundamendi lahtikaevamine, soojustamine PUR vahuga (soojusläbivus kuni (U ≤ 0,20 W/m2K), katmine vundamendiplaadiga ja vundamendi sulgemine täitematerjalidega vastavalt standarditele.
* Fassaadi soojustamine PUR vahuga (soojusläbivus kuni (U ≤ 0,20 W/m2K) ja katmine musta Cedral Slates kiudtsement fassaadiplaadiga
* Pööningu ja eluruumide vahelise vana vahelae demontaaž ja selle pealt vana isolatsiooniks kasutatud saepuru eemaldamine ja utiliseerimine ning. Uue vahelae ehitus ja soojustamine PUR vahuga (soojusläbivus kuni (U ≤ 0,20 W/m2K).
* Projektis mägitud vanade siseseinte lammutamine ja utiliseerimine.
* Vana küttesüsteemi, torustiku jms. demonteerimine ja utiliseerimine.
* Eluruumide põrandate demontaaž ja utiliseerimine.
* Esimese korruse põranda soojustamine – soojusläbivus (U ≤ 0,25 W/m2K)
* Mõlema korruse põrandakütte torustiku paigaldus ja põranda valamine vastavalt tootja kehtestatud standardile.
* Ventilatsiooni süsteemi paigaldus. Ventilatsioonisedame tootemärgise energiatõhususe klass on vähemalt „A++“. Samuti süsteem peab olema sissepuhke välisõhuvooluhulgad on vähemalt 15 l/s magamis- ja elutubades müratasemel mitte üle 25 dB(A) ning väljatõmbe õhuvooluhulgad on WC-s vähemalt 15 l/s, pesuruumis vähemalt 25 l/s ja köögis 10 l/s.
* "A+++" Õhk-Vesisoojuspumba paigaldus ja ühendamine põrandaküttesüsteemiga. Soojuspumba peab vastama järgmistele parameetritele: Külmutusagens R290 (propaan) suutlikus kütta vähemalt 200m2 põrandapinda ja koos vähemalt 180L tarbevee boileriga.
+ Paigaldatavate seadmetele elektritööde ja torutööde teostamine.

NB! võib lisanduda vähesel määral lisatöid mis on seotud renoveerimistöödega.

Eesmärk on saada korralikult soojustatud ja ilmastikukindel eramu mis vastaks projektile ja kehtivatele ehitusnormidele. Tööde lõppedes peab eramule saama vähemalt B klassi energiamärgise.

Lisainfo ja täpsustuste saamiseks palun julgelt kirjutada.

Palun hinda projekti kogumaksumusele koos materjalidega (materjali hulgihinnad on teada).

Pildid, video ja failid

Hanke korraldaja: eraisik ID58827

Pakkumised

Pakkumisi kokku: 3

Ettevõte Summa Käibemaks Lisatud Vestlus
Kasutaja ikoon ID70688
Pakkuja profiil Väike nool paremale
137 550€ KM lisandub KM lisandub 05.08.2024 Vestlus (1)

Pakkumise kirjeldus:

Tere!

137,55m2 hoone renoveerimine.

Koos maerjalidega.

Mõned küsimused:-

1. Mis aknad? Puit,plastik?
2. Mis vaheseinad? Kas kips?
3. Maaritööd meil hinnas
4. San sõlmed?
5. Katus? Jääb sama?

Tegema tulevad Märjamaa ja Rapla mehed.

NB! Lisandub hange.ee tasu %+km

Terv.,

Erki

Kasutaja ikoon ID48207
Pakkuja profiil Väike nool paremale
150 975€ KM lisandub KM lisandub 16.08.2024 Vestlus (0)
Kasutaja ikoon ID83819
Pakkuja profiil Väike nool paremale
135 000€ Sisaldab KM Sisaldab KM 19.08.2024 Vestlus (0)

Küsimused hanke korraldajale

Küsimus: private ID84546   19.08.2024 00:24
Tere, oleme huvitatud ventilatsiooni väljaehitamisest, kas on olemasbka ventilatsiooni projekt? Teostame vajadusel vent projekti, pakume väga hea hinnaga ventseadmeid, süsteemi paigaldust ,pärast õhuhulkade mõõdistust-passistamist , mis on ka kasutusloa jaoks vajalik, ningvsaame ka teha ka ilma km-ta kui vajalik....

Palun täpsustada ventilatsiooni soove ka s on projekt olemas jne....

Teavita reeglite rikkumisest

Korraldaja vastus:
Hanke korraldaja ei ole küsimusele veel vastanud

Küsimus: private ID59528   19.08.2024 21:41
Tere,

Oleme huvitataud hinnapakkumise tegemisest
Palun lisage projekt pdf formaadis, ilma selleta suht raske hinnapakkumist koostada kuna ei tea vajaminevaid mahte

Parimat,

Erik

Teavita reeglite rikkumisest

Korraldaja vastus:
Hanke korraldaja ei ole küsimusele veel vastanud

Lisa küsimus

Lisa küsimus

Minu pakkumine

Reeglid

Pakkumise kirjelduse väli on mõeldud pakkumise detailsemaks lahti kirjutamiseks. Pikema teksti mugavaks sisestamiseks klikkige kasti paremal ülaservas oleval ikoonil.
Pakkumist tehes on keelatud postitada enda kontaktandmeid (nimi, telefon, aadress jne). Me jälgime ja analüüsime pakkumisi, et vältida pettuseid ja reeglite rikkumisi.
Rikkumise puhul kasutajakonto blokeeritakse.

 

Teisi töid samas valdkonnas

Valdkonnas "Üldehitus" on 27 aktiivset tööd

Terassi õlitamine, 13,7 ruutu

Asukoht: Harjumaa, Saue
Aega jäänud: 5p 17h
Tehtud pakkumisi: 4

Eramaja ehitus

Asukoht: Harjumaa, Suurupi
Aega jäänud: 4p 17h
Tehtud pakkumisi: 4

Vanemad teated:

Vaata kõiki

Sellel veebilehel kasutatakse küpsiseid. Kasutamist jätkates nõustute küpsiste kasutamisega.

Sulge
 
Minu pakkumine

Reeglid

Pakkumise kirjelduse väli on mõeldud pakkumise detailsemaks lahti kirjutamiseks. Pikema teksti mugavaks sisestamiseks klikkige kasti paremal ülaservas oleval ikoonil.
Pakkumist tehes on keelatud postitada enda kontaktandmeid (nimi, telefon, aadress jne). Me jälgime ja analüüsime pakkumisi, et vältida pettuseid ja reeglite rikkumisi.
Rikkumise puhul kasutajakonto blokeeritakse.