+ Lisa oma töö      

Otsid ehitajat "Projekteerimine" valdkonnast?

Parima pakkumise ja teostaja leidmiseks lisa oma töö.

Hange on lõppenud!

Võitjaks osutus kasutaja ID 71562

Korraldaja hinnang tehtud tööle

 
5.0
26.02.2026
Töökiirus: 12345
Kvaliteet: 12345
Hind: 12345

Õhksoojuspumba projekt ja ehitusteatis

ID 100791

621 vaatamist

Prindi

  • check Pakkumiste tegemine
    kuni 05.08.2024
  • check Võitja valik kuni
    05.08.2024
  • 3 Töö teostamine
    ja hinnang
Hanke lõpp: E, 5. august, 2024
Maakond: Tartumaa
Linn: Tartu
Tööde lõpp: Kokkuleppel
Ehitusmaterjalid: Töö tegija poolt
Soovin pakkumisi: Summa kogu projektile

Töö sisu

Olemas 2021 koostatud geodeetiline alusplaan.

Vaja projekteerida ühe õhk-õhksoojuspumba paigaldus.

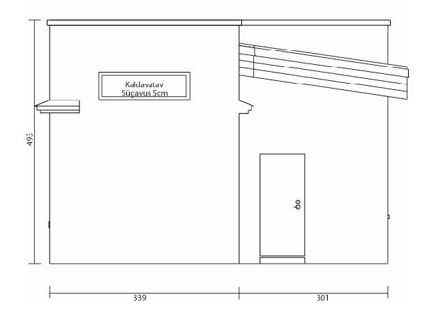
Pildid, video ja failid

Hanke korraldaja: eraisik ID82332

Pakkumised

Pakkumisi kokku: 5

Ettevõte Summa Käibemaks Lisatud Vestlus
Kasutaja ikoon ID77013
Pakkuja profiil Väike nool paremale
230€ Sisaldab KM Sisaldab KM 23.07.2024 Vestlus (0)

Pakkumise kirjeldus:

Projekt+ehitusteatis

Kasutaja ikoon ID63676
Pakkuja profiil Väike nool paremale
350€ KM lisandub KM lisandub 23.07.2024 Vestlus (0)

Pakkumise kirjeldus:

Tere!

Pakkumine sisaldab ehitusprojekti õhk-õhk soojuspumbale eelprojekti staadiumis.
Samuti ehitusteatise esitamist kohalikule omavalitsusele ja projekti juhtimist ehitusteatise väljastamiseni.

Projekti valmimisaeg 7 tööpäeva.

Kasutaja ikoon ID82831
Pakkuja profiil Väike nool paremale
185€ Ei ole KMKR Ei ole KMKR 23.07.2024 Vestlus (0)

Pakkumise kirjeldus:

Pakkumine sisaldab projekti ehitusteatise esitamiseks vajalikus mahus, vastavalt normidele ja standartidele ning tellija kirjeldusele.
*Tiitelleht
*Seletuskiri
*Vaated
*Korruseplaan
*Asendiskeem

Projekti saab tellija EHR'i laadimiseks sobivas formaadis. Vajadusel ehitus/kasutusteatise koostamine ning esitamine ja konsultatsioonid.

Geodeetiline alu ... Rohkem

Kasutaja ikoon ID71562
Pakkuja profiil Väike nool paremale
300€ Ei ole KMKR Ei ole KMKR 24.07.2024 Vestlus (0)

Pakkumise kirjeldus:

Pakkumine sisaldab:
Tiitelleht
Seletuskiri
Joonised
Vaade (kui on seinale/maaraamile paigaldatud)
Asendiskeem

Projekti koostamiseks vajalik tellijal esitada:
Hoone täpne aadress, (korteri nr)
Pildid soojuspumpadest (nii et kogu hoone fassaad jääb peale, kui on fassaadile paigaldatud)
Võimalusel hoone põhiplaanist pilt


Ehitusteatise esita ... Rohkem

Kasutaja ikoon ID62360
Pakkuja profiil Väike nool paremale
330€ Sisaldab KM Sisaldab KM 24.07.2024 Vestlus (0)

Pakkumise kirjeldus:

Pakkumine sisaldab:
Alusprojekti digitaliseerimine (kui vaja)
Küttesüsteemi rekonstrueerimisprojekt eelprojekti staadiumis.
-Tiitelleht
-Põhiplaan
-Asendiskeem
-Lõiked
-Vaated
-Struktuurskeem
-Seletuskiri

Kooskõlastamine KOV.
Ehitusteatise esitamine.

Tellija poolt vajalik: arhitektuursed alused ja fotod paigalduskohast.

Projekti koo ... Rohkem

Küsimused hanke korraldajale

Küsimus: private ID62360   23.07.2024 07:43
Tere,

kas hoone korruseplaan on olemas?

Teavita reeglite rikkumisest

Korraldaja vastus: 23.07.2024 10:05

Varasema heakskiidetud ehitusteatise jaoks on minu enda tehtud olemas.

Teavita reeglite rikkumisest

Küsimus: private ID71562   23.07.2024 08:05
Tere

Mis kohalikus vallas asub antud objekt?

Teavita reeglite rikkumisest

Korraldaja vastus: 23.07.2024 10:05

Tartu linn, Karlova linnaosa

Teavita reeglite rikkumisest

Lisa küsimus

Lisa küsimus

Minu pakkumine

Reeglid

Pakkumise kirjelduse väli on mõeldud pakkumise detailsemaks lahti kirjutamiseks. Pikema teksti mugavaks sisestamiseks klikkige kasti paremal ülaservas oleval ikoonil.
Pakkumist tehes on keelatud postitada enda kontaktandmeid (nimi, telefon, aadress jne). Me jälgime ja analüüsime pakkumisi, et vältida pettuseid ja reeglite rikkumisi.
Rikkumise puhul kasutajakonto blokeeritakse.

 

Teisi töid samas valdkonnas

Valdkonnas "Projekteerimine" on 10 aktiivset tööd

Ehitusteatise eelprojekt

Asukoht: Järvamaa
Aega jäänud: 22h 19 min
Tehtud pakkumisi: 13

Eramu renoveerimisprojekt

Asukoht: Lääne-Virumaa, Kadrina
Aega jäänud: 2p 22h
Tehtud pakkumisi: 7

Vanemad teated:

Vaata kõiki

Sellel veebilehel kasutatakse küpsiseid. Kasutamist jätkates nõustute küpsiste kasutamisega.

Sulge
 
Minu pakkumine

Reeglid

Pakkumise kirjelduse väli on mõeldud pakkumise detailsemaks lahti kirjutamiseks. Pikema teksti mugavaks sisestamiseks klikkige kasti paremal ülaservas oleval ikoonil.
Pakkumist tehes on keelatud postitada enda kontaktandmeid (nimi, telefon, aadress jne). Me jälgime ja analüüsime pakkumisi, et vältida pettuseid ja reeglite rikkumisi.
Rikkumise puhul kasutajakonto blokeeritakse.