+ Lisa oma töö      

Otsid ehitajat "Ehitusprojektid" valdkonnast?

Parima pakkumise ja teostaja leidmiseks lisa oma töö.

Hange on lõppenud!

Võitjaks osutus kasutaja ID 76795

Korraldaja hinnang tehtud tööle

5.0
23.08.2024
Töökiirus: 12345
Kvaliteet: 12345
Hind: 12345

Maja projekteerimine

ID 100680

634 vaatamist

Prindi

  • check Pakkumiste tegemine
    kuni 23.07.2024
  • check Võitja valik kuni
    23.07.2024
  • 3 Töö teostamine
    ja hinnang
Hanke lõpp: T, 23. juuli, 2024
Maakond: Harjumaa
Linn: Tallinn
Tööde lõpp: Kokkuleppel
Ehitusmaterjalid: Töö tegija poolt
Soovin pakkumisi: Summa kogu projektile

Töö sisu

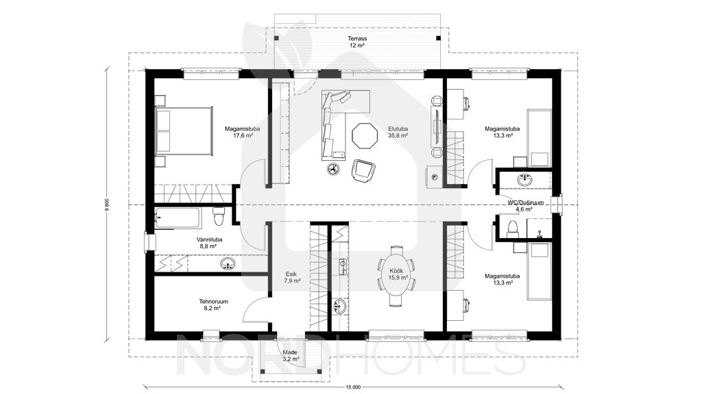
Vaja oleks siis projekteerijat sellisele majale.

Pildid, video ja failid

Hanke korraldaja: ettevõte ID72737

Pakkumised

Pakkumisi kokku: 5

Ettevõte Summa Käibemaks Lisatud Vestlus
Kasutaja ikoon ID78152
Pakkuja profiil Väike nool paremale
2 400€ KM lisandub KM lisandub 21.07.2024 Vestlus (0)

Pakkumise kirjeldus:

Hoone eelprojekt:
Arhitektuurne(ehitusloa jaoks), Tallinn 2400€+km
Välisruumi eelprojekt:
Asendiplaani osa, katendid ja haljastus,950€+km

Lisandub kliendi soovil või kui dp/pt nõuab:
Eriosad vahemikus, tellijaga kokkuleppel:
Ventilatsioon/küte (PP)1800-2600+km
Vesi/kanal(PP) 1600-2100+km
Elekter/nõrkvool(EP) 900-1600+km
Liiklukorralduse m ... Rohkem

Kasutaja ikoon ID76566
Pakkuja profiil Väike nool paremale
2 900€ KM lisandub KM lisandub 21.07.2024 Vestlus (9)

Pakkumise kirjeldus:

Tere!

Väljatoodud hinnas pakume arhitektuurse eelprojekti koostamist ja kooskõlastamist omavalitsusega.

Töömaht sisaldab:

- Eelprojekti taotluse joonised : vundament, korruste plaanid, katuseplaan, maja sektsioon, vaated, krundi planeering geoalusel
- Seletuskiri
- Taotluste esitamist ning kohaliku omavalitsusega suhtlust projekti kinnitu ... Rohkem

Kasutaja ikoon ID5128
Pakkuja profiil Väike nool paremale
4 800€ KM lisandub KM lisandub 22.07.2024 Vestlus (0)

Pakkumise kirjeldus:

HInnas eelprojekti staadiumis projekt, kõik osad ja EHR.i esitamine.

Kasutaja ikoon ID76795
Pakkuja profiil Väike nool paremale
1 570€ Ei ole KMKR Ei ole KMKR 22.07.2024 Vestlus (7)

Pakkumise kirjeldus:

Tere

Töö sisaldab arhitektuurset eelprojekti elamu uusehitisele.
Projekt valmib vastavalt Eesti Vabariigis kehtivatele seadustele ja standarditele.
Pakkumine sisaldab:
Seletuskiri
Asendiplaan geoalusel
Elamu põhiplaan
Elamu lõige
Elamu vaated
3D vaated
Vajadusel vundamendi plaan, katuseplaan, avatäidete spetsifikatsioonid.
Projekteerimisti ... Rohkem

Kasutaja ikoon ID48870
Pakkuja profiil Väike nool paremale
1 450€ Ei ole KMKR Ei ole KMKR 23.07.2024 Vestlus (8)

Pakkumise kirjeldus:

Tere
Ehitusprojekt eelprojekti staadiumis ehitisregistrile esitamiseks
Pakkumishind sisaldab:
Seletuskiri,Korruste plaanid, Katuse plaan,Hoone lõige, Hoone vaated, Avatäidete joonised, jm asjakohased vajalikud joonised, Asendiplaan
Kooskõlastused ehitusloa saamiseks
Ehitusloa taotluse esitamine ehistisregistrisse
Kui arve tuleb eraisikule siis saab ... Rohkem

Küsimused hanke korraldajale

Küsimus: private ID78618   21.07.2024 18:07
Tere.
Kas projekteerimistingimused või detailplaneering on olemas?

Teavita reeglite rikkumisest

Korraldaja vastus: 21.07.2024 18:44

Tere!
Projekteerimistingimuste taotlus tuleks ka saata KOV

Teavita reeglite rikkumisest

Lisa küsimus

Lisa küsimus

Minu pakkumine

Reeglid

Pakkumise kirjelduse väli on mõeldud pakkumise detailsemaks lahti kirjutamiseks. Pikema teksti mugavaks sisestamiseks klikkige kasti paremal ülaservas oleval ikoonil.
Pakkumist tehes on keelatud postitada enda kontaktandmeid (nimi, telefon, aadress jne). Me jälgime ja analüüsime pakkumisi, et vältida pettuseid ja reeglite rikkumisi.
Rikkumise puhul kasutajakonto blokeeritakse.

 

Teisi töid samas valdkonnas

Valdkonnas "Ehitusprojektid" on 6 aktiivset tööd

no-img Pilt puudub

Ehitusinsener tase 7 vastutav allikiri

Asukoht: Pärnumaa, Pärnu
Aega jäänud: 18h 39 min
Tehtud pakkumisi: 2

Korteri elektri projekt

Asukoht: Harjumaa, Tallinn
Aega jäänud: 2p 18h
Tehtud pakkumisi: 2

Vanemad teated:

Vaata kõiki

Sellel veebilehel kasutatakse küpsiseid. Kasutamist jätkates nõustute küpsiste kasutamisega.

Sulge
 
Minu pakkumine

Reeglid

Pakkumise kirjelduse väli on mõeldud pakkumise detailsemaks lahti kirjutamiseks. Pikema teksti mugavaks sisestamiseks klikkige kasti paremal ülaservas oleval ikoonil.
Pakkumist tehes on keelatud postitada enda kontaktandmeid (nimi, telefon, aadress jne). Me jälgime ja analüüsime pakkumisi, et vältida pettuseid ja reeglite rikkumisi.
Rikkumise puhul kasutajakonto blokeeritakse.