+ Lisa oma töö      

Otsid ehitajat "Ehitusprojektid" valdkonnast?

Parima pakkumise ja teostaja leidmiseks lisa oma töö.

Eskiisprojekti tellimine

ID 100311

446 vaatamist

Prindi

  • check Pakkumiste tegemine
    kuni 26.07.2024
  • check Võitja valik kuni
    02.08.2024
  • 3 Töö teostamine
    ja hinnang
Hanke lõpp: R, 26. juuli, 2024
Maakond: Viljandimaa
Linn: Viljandi
Tööde lõpp: Kokkuleppel
Ehitusmaterjalid: Töö tegija poolt
Soovin pakkumisi: Summa kogu projektile

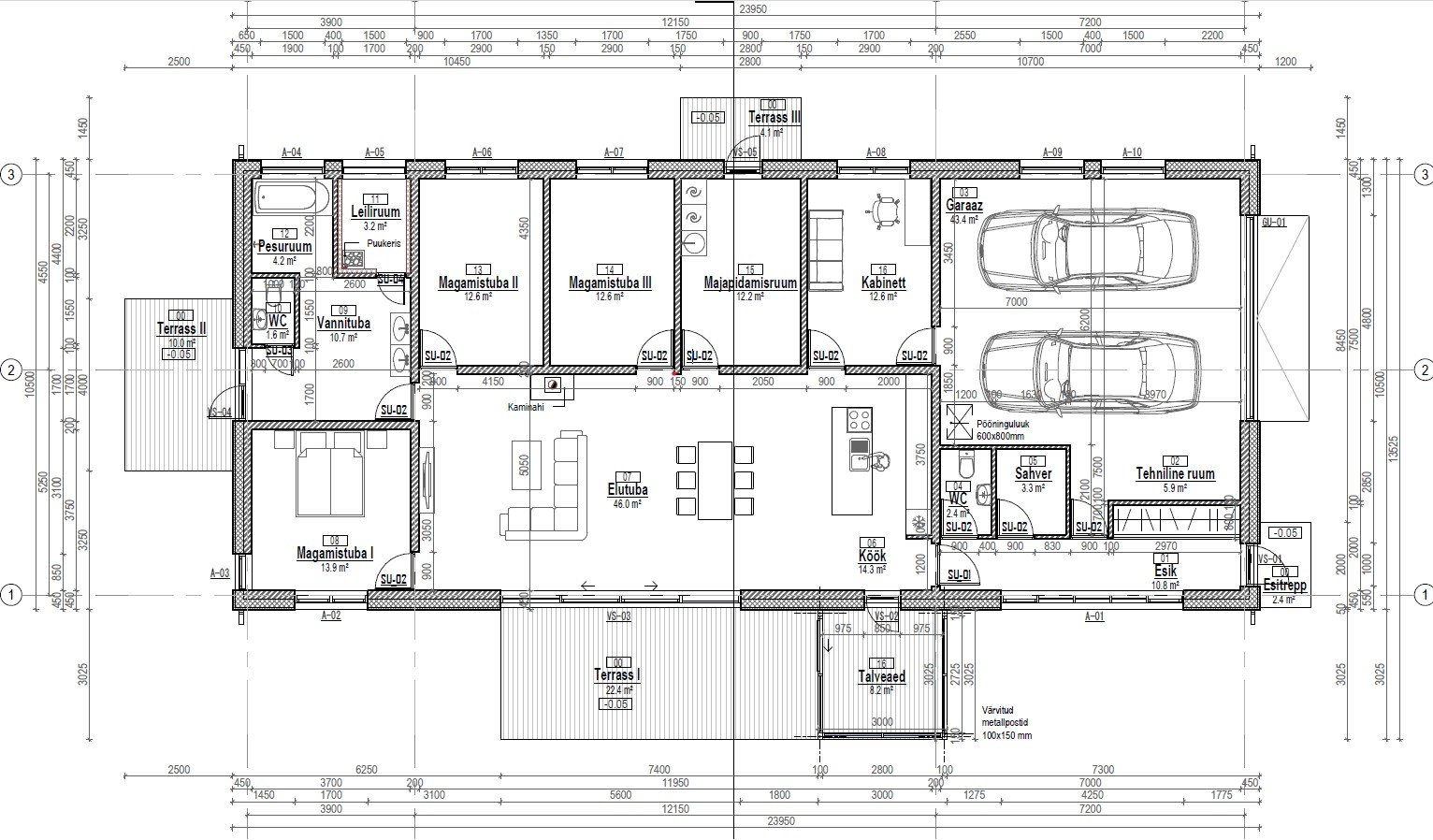
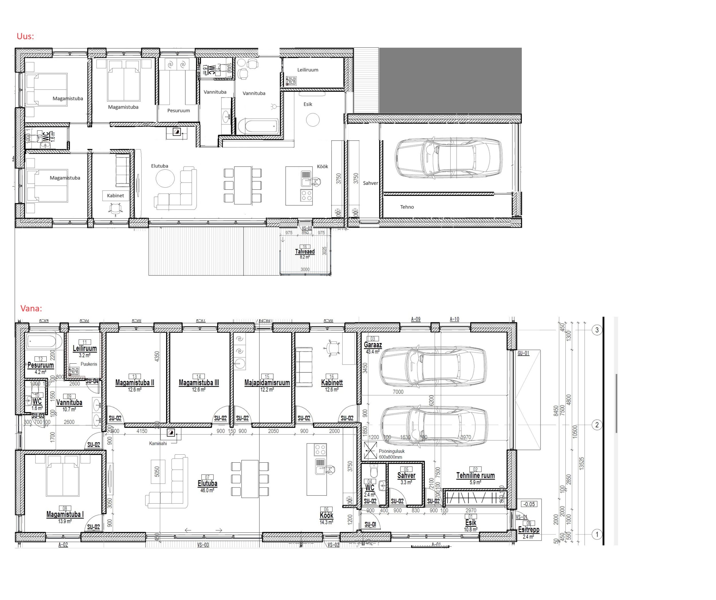
Töö sisu

Olemas on eramu eskiisprojekt ja ehitusluba Põhja-Sakala vallas. Soov on eramu projekti muuta.
Töö sisu:
- Uus 1.kordse eramu eskiisprojekt, mis sisaldab
- Asendiplaan
- 1.korruse plaan
- Vundamendi plaan
- Katuse plaan
- Välisvaated
- Vajalikud lõiked
- Avatäited
- Hinnang kas seoses muudatusega on vajalik teha muudatusi ka järgnevas dokumentatsioonis (lisatöö):
- vee- ja kanalisatsiooni projekt
- energiamärgise arvutus
- ehitusprojekti seletuskiri
Lisatööd käesolevas hankes ei pea hindama, selle tellimine lepitakse eraldi kokku.

Töö tegemiseks tellija annab üle materjali:
- Kogu olemasoleva ehitusprojekti (pdf ja dwg)
- Uue 1. korruse plaani visiooni (lisatud hankele)
- geoaluse
- projekteerimistingimused

Töö sisuks ei ole suhtlus kohaliku omavalitususega või mis iganes tegevused ehitisregistris.

Pildid, video ja failid

Hanke korraldaja: eraisik ID40539

Pakkumised

Pakkumisi kokku: 3

Ettevõte Summa Käibemaks Lisatud Vestlus
Kasutaja ikoon ID77774
Pakkuja profiil Väike nool paremale
3 000€ KM lisandub KM lisandub 15.07.2024 Vestlus (0)

Pakkumise kirjeldus:

Teostame kirjeldatud mahus eskiisprojekti - koostöös teiega ning teie soovidega oleme valmis välja töötama erilahenduse, mis teile sobib ning kõiki teie valikuid arvestab. Meeskonnas on ka sisearhitekt, kellega koostöös saame igatpidi töötava ja mõistliku kodu.

Kasutaja ikoon ID5128
Pakkuja profiil Väike nool paremale
1 400€ KM lisandub KM lisandub 22.07.2024 Vestlus (0)

Pakkumise kirjeldus:

HInnas üks toimiv arhitektuurne eskiis. Kui Tellija soovib ka muid variante katsetada, on lisaversioonid lisatasu eest.

Kasutaja ikoon ID73320
Pakkuja profiil Väike nool paremale
1 000€ KM lisandub KM lisandub 25.07.2024 Vestlus (0)

Pakkumise kirjeldus:

Tere, soovitan Teile selle teemaga pöörduda originaalse projekti koostanud arhitekti juurde. Mina kui selle projekti koostanud arhitekt ei anna nõusolekut kasutada oma projekti teiste sarnaste projektide loomiseks. Selles hankes ma näen autoriõiguste rikkumist.

Küsimused hanke korraldajale

Küsimus: private ID73320   25.07.2024 12:04
See projekt on tehtud .................... arhitektide poolt. Meie arhitektid ei andnud nõu meie poolt tehtud arhitektuuriprojekti muuta ega kasutada teiste sarnaste projektide loomiseks. Vastavalt töövõtulepingule: Töövõtja autoriõiguse objektid seoses arhitektuuriteosega on arhitektuuriprojekt (sh eskiisietapp) ja selle põhjal välja töötatud projektdokumendid ning arhitektuurobjekt ise. Alles pärast projektdokumentatsiooni täielikku ettevalmistamist, Tellija ja kohaliku omavalitsuse poolt arhitektuuriprojekti heakskiitmist ning kogu projekti koostamise summa tasumist tekib Tellijal õigus luua arhitektuuriteos. Arhitektuuriprojekti ja selle alusel koostatud ehitusdokumentatsiooni võib korduvkasutada ainult Töövõtja kirjalikul nõusolekul. Töövõtja jätab endale õiguse keelata arhitektuuriprojekti kasutamine, et seda rohkem kui üks kord ellu viia. Palun võtke meiega ühendust.

Teavita reeglite rikkumisest

Korraldaja vastus: 26.07.2024 13:25

Suhtleme Teiega eraldi.

Teavita reeglite rikkumisest

Lisa küsimus

Lisa küsimus

Minu pakkumine

Reeglid

Pakkumise kirjelduse väli on mõeldud pakkumise detailsemaks lahti kirjutamiseks. Pikema teksti mugavaks sisestamiseks klikkige kasti paremal ülaservas oleval ikoonil.
Pakkumist tehes on keelatud postitada enda kontaktandmeid (nimi, telefon, aadress jne). Me jälgime ja analüüsime pakkumisi, et vältida pettuseid ja reeglite rikkumisi.
Rikkumise puhul kasutajakonto blokeeritakse.

 

Teisi töid samas valdkonnas

Valdkonnas "Ehitusprojektid" on 6 aktiivset tööd

no-img Pilt puudub

Ehitusinsener tase 7 vastutav allikiri

Asukoht: Pärnumaa, Pärnu
Aega jäänud: 6h 10 min
Tehtud pakkumisi: 2

Korteri elektri projekt

Asukoht: Harjumaa, Tallinn
Aega jäänud: 2p 6h
Tehtud pakkumisi: 2

Vanemad teated:

Vaata kõiki

Sellel veebilehel kasutatakse küpsiseid. Kasutamist jätkates nõustute küpsiste kasutamisega.

Sulge
 
Minu pakkumine

Reeglid

Pakkumise kirjelduse väli on mõeldud pakkumise detailsemaks lahti kirjutamiseks. Pikema teksti mugavaks sisestamiseks klikkige kasti paremal ülaservas oleval ikoonil.
Pakkumist tehes on keelatud postitada enda kontaktandmeid (nimi, telefon, aadress jne). Me jälgime ja analüüsime pakkumisi, et vältida pettuseid ja reeglite rikkumisi.
Rikkumise puhul kasutajakonto blokeeritakse.