+ Lisa oma töö      

Otsid ehitajat "Ehitusprojektid" valdkonnast?

Parima pakkumise ja teostaja leidmiseks lisa oma töö.

Maasauna- ja keldri projekti koostamine ja ehitusloa taotlemine

ID 100157

333 vaatamist

Prindi

  • check Pakkumiste tegemine
    kuni 25.07.2024
  • check Võitja valik kuni
    01.08.2024
  • 3 Töö teostamine
    ja hinnang
Hanke lõpp: N, 25. juuli, 2024
Maakond: Lääne-Virumaa
Muu asula: Pehka
Tööde lõpp: Kokkuleppel
Ehitusmaterjalid: Töö tegija poolt
Soovin pakkumisi: Summa kogu projektile

Töö sisu

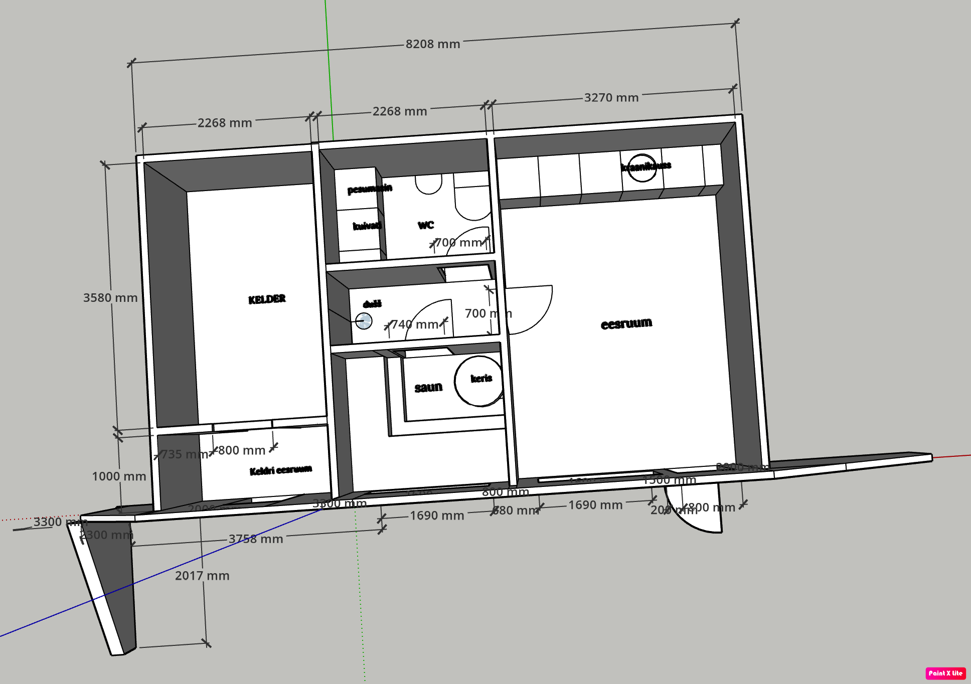
Töö käigus tarvis koostada ehitusprojekt koos konstruktiivse projektiga maasaunale- ja keldrile. Projektile tarvis esitada ehitusteatis.
Projekti käigus lammutatakse olemasolev maakelder ning selle asemele tehakse uus maakelder koos maasaunaga. Vundament peaks olema betoonplaadil, seinad columbiast (või muust sobivast materjalist) Lagi betoonpaneel või täisvalubetoon. Soojustuseks PUR vaht ning hoone kaetud külgedelt, tagant ning pealt pinnasega. Hoone all peab planeerima drenaaži ning ruumidele ventilatsiooni. Saunaruumide kütteks saunaahi ning elekter. Ühest küljest keldriruumiga ühise seinaga. Saunaruumides vesi ning kanal.

Pildid, video ja failid

Hanke korraldaja: eraisik ID30476

Pakkumised

Pakkumisi kokku: 1

Ettevõte Summa Käibemaks Lisatud Vestlus
Kasutaja ikoon ID40011
Pakkuja profiil Väike nool paremale
8 800€ Sisaldab KM Sisaldab KM 12.07.2024 Vestlus (0)

Pakkumise kirjeldus:

Pakkumine:
Arh eelprojekt koos ehitusteatise menetlusega.
Geodeetiline alusplaan
Konstruktiivne projekt PP staadiumis
Elektriprojekt PP staadiumis
Ventilatsiooniprojekt PP staadiumis.
Vesi-kanal- Drenaaž PP staadiumis

Küsimused hanke korraldajale

Hanke korraldajale ei ole veel küsimusi esitatud.

Lisa küsimus

Lisa küsimus

Minu pakkumine

Reeglid

Pakkumise kirjelduse väli on mõeldud pakkumise detailsemaks lahti kirjutamiseks. Pikema teksti mugavaks sisestamiseks klikkige kasti paremal ülaservas oleval ikoonil.
Pakkumist tehes on keelatud postitada enda kontaktandmeid (nimi, telefon, aadress jne). Me jälgime ja analüüsime pakkumisi, et vältida pettuseid ja reeglite rikkumisi.
Rikkumise puhul kasutajakonto blokeeritakse.

 

Teisi töid samas valdkonnas

Valdkonnas "Ehitusprojektid" on 6 aktiivset tööd

no-img Pilt puudub

Ehitusinsener tase 7 vastutav allikiri

Asukoht: Pärnumaa, Pärnu
Aega jäänud: 6h 6 min
Tehtud pakkumisi: 2

Korteri elektri projekt

Asukoht: Harjumaa, Tallinn
Aega jäänud: 2p 6h
Tehtud pakkumisi: 2

Vanemad teated:

Vaata kõiki

Sellel veebilehel kasutatakse küpsiseid. Kasutamist jätkates nõustute küpsiste kasutamisega.

Sulge
 
Minu pakkumine

Reeglid

Pakkumise kirjelduse väli on mõeldud pakkumise detailsemaks lahti kirjutamiseks. Pikema teksti mugavaks sisestamiseks klikkige kasti paremal ülaservas oleval ikoonil.
Pakkumist tehes on keelatud postitada enda kontaktandmeid (nimi, telefon, aadress jne). Me jälgime ja analüüsime pakkumisi, et vältida pettuseid ja reeglite rikkumisi.
Rikkumise puhul kasutajakonto blokeeritakse.