+ Lisa oma töö      

Otsid ehitajat "Üldehitus" valdkonnast?

Parima pakkumise ja teostaja leidmiseks lisa oma töö.

Põrandatööd

ID 99971

432 vaatamist

Prindi

  • check Pakkumiste tegemine
    kuni 11.07.2024
  • check Võitja valik kuni
    18.07.2024
  • 3 Töö teostamine
    ja hinnang
Hanke lõpp: N, 11. juuli, 2024
Maakond: Harjumaa
Linn: Tallinn
Tööde lõpp: Kokkuleppel
Ehitusmaterjalid: Töö tegija poolt
Soovin pakkumisi: Tüki- või ühikuhinda

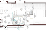
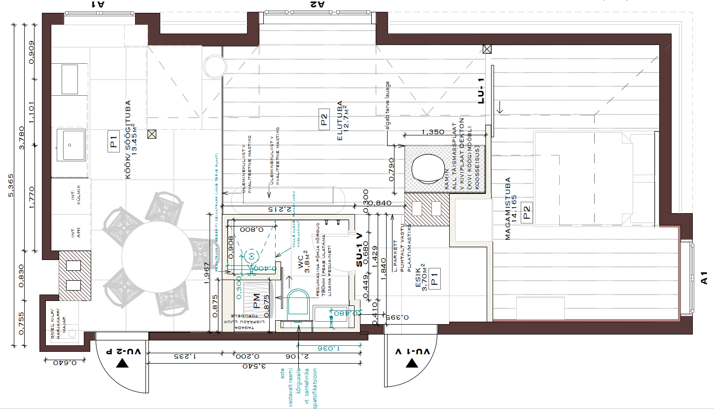
Töö sisu

Põrandatööd puitkonstruktsiooniga maja 45,1 m2 kolmanda korruse korteris. Korter asub Tallinna kesklinnas. Põrand on taladeni avatud. Talade samm 80 sentimeetrist enam kui ühe meetrini. Talade vahel šlakk.
WC-vannitoa kooseisus malmist püstak ja külmaveetoru. Köök/söögitoas vesi ja kanalisatsioon puudub.

Tööd hõlmavad:

1. etapp
Põrandakarkassi ehitamine ja rihtimine
Põrandakarkassi isolatsioonimaterjali paigaldamine
Põrandakarkassi katmine (punniga OSB plaat)
Uponor Syccus/Tycroc UHP/Floore vms põrandakütte plaatide paigaldamine
Põrandakütte torustiku paigaldamine
Põrandakipsi paigaldus valatavates osades koos alusrooviga

2. etapp
Püstaku vahetamine
Veetorude vedamine
Kanalisatsioonitorude vedamine

Pakkumise võib teha, kas ainult ühele või mõlemale etapile kokku. Pakkumine peab sisaldama detailset plaani koos kalkulatsiooniga (töö+materjalid). Tellijal on oluline mõista, mida ja kuidas te tegema hakkate ja palju see maksab. Palun pakkumise välja tuua ka töö eeldatava algusaja ja kestuse.

Pildid, video ja failid

Hanke korraldaja: eraisik ID83486

Pakkumised

Pakkumisi kokku: 2

Ettevõte Summa Käibemaks Lisatud Vestlus
Kasutaja ikoon ID75087
Pakkuja profiil Väike nool paremale
5 800€ Sisaldab KM Sisaldab KM 11.07.2024 Vestlus (0)

Pakkumise kirjeldus:

Põrand ainult. Laagid ja Osb

Kasutaja ikoon ID59528
Pakkuja profiil Väike nool paremale
11 250€ KM lisandub KM lisandub 11.07.2024 Vestlus (0)

Pakkumise kirjeldus:

Tere,

Pakkumine tehtud vastavalt Hankes kirjeldatud töödele. Täpsema hinnakalkulatsiooni saame saata vestluses.
Meie profiili alt näete meie poolt tehtud töid ja klientide poolt antud hinnanguid
Ettevōttel olemas MTR registreering!

Parimat,

Erik

Küsimused hanke korraldajale

Hanke korraldajale ei ole veel küsimusi esitatud.

Lisa küsimus

Lisa küsimus

Minu pakkumine

Reeglid

Pakkumise kirjelduse väli on mõeldud pakkumise detailsemaks lahti kirjutamiseks. Pikema teksti mugavaks sisestamiseks klikkige kasti paremal ülaservas oleval ikoonil.
Pakkumist tehes on keelatud postitada enda kontaktandmeid (nimi, telefon, aadress jne). Me jälgime ja analüüsime pakkumisi, et vältida pettuseid ja reeglite rikkumisi.
Rikkumise puhul kasutajakonto blokeeritakse.

 

Teisi töid samas valdkonnas

Valdkonnas "Üldehitus" on 27 aktiivset tööd

Maja värvimine

Asukoht: Harjumaa, Saue
Aega jäänud: 2p 11h
Tehtud pakkumisi: 5

Terassi õlitamine, 13,7 ruutu

Asukoht: Harjumaa, Saue
Aega jäänud: 5p 11h
Tehtud pakkumisi: 5

Vanemad teated:

Vaata kõiki

Sellel veebilehel kasutatakse küpsiseid. Kasutamist jätkates nõustute küpsiste kasutamisega.

Sulge
 
Minu pakkumine

Reeglid

Pakkumise kirjelduse väli on mõeldud pakkumise detailsemaks lahti kirjutamiseks. Pikema teksti mugavaks sisestamiseks klikkige kasti paremal ülaservas oleval ikoonil.
Pakkumist tehes on keelatud postitada enda kontaktandmeid (nimi, telefon, aadress jne). Me jälgime ja analüüsime pakkumisi, et vältida pettuseid ja reeglite rikkumisi.
Rikkumise puhul kasutajakonto blokeeritakse.