+ Lisa oma töö      

Otsid ehitajat "Siseviimistlustööd" valdkonnast?

Parima pakkumise ja teostaja leidmiseks lisa oma töö.

Siseviimistlus

ID 99693

327 vaatamist

Prindi

  • check Pakkumiste tegemine
    kuni 03.08.2024
  • check Võitja valik kuni
    10.08.2024
  • 3 Töö teostamine
    ja hinnang
Hanke lõpp: L, 3. august, 2024
Maakond: Harjumaa
Muu asula: Üksnurme
Tööde lõpp: Kokkuleppel
Ehitusmaterjalid: Töö tegija poolt
Soovin pakkumisi: Summa kogu projektile

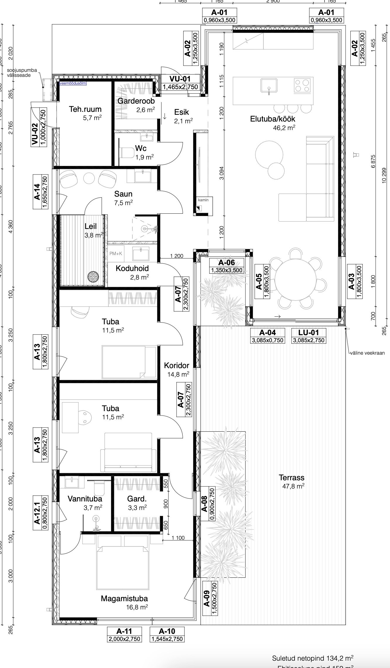
Pildid, video ja failid

Hanke korraldaja: eraisik ID83375

Pakkumised

Pakkumisi kokku: 2

Ettevõte Summa Käibemaks Lisatud Vestlus
Kasutaja ikoon ID51140
Pakkuja profiil Väike nool paremale
32 000€ Ei ole KMKR Ei ole KMKR 06.07.2024 Vestlus (0)
Kasutaja ikoon ID77006
Pakkuja profiil Väike nool paremale
300€ Sisaldab KM Sisaldab KM 07.07.2024 Vestlus (0)

Pakkumise kirjeldus:

Tere. Hind on ruutmeetri kohta, kõik vajalikud tööd. See tähendab, et kui teil on 100 m2 korter. Siis läheb kogu remont maksma 30 000 € See sisaldab kõiki töid alates elektrist kuni karniisini. Kokkuleppel saan osta kõik vajalikud materjalid 40-50% allahindlusega K-karayt. Kõigile tehtud töödele kehtib garantii 2 aastat. Aitäh

Küsimused hanke korraldajale

Küsimus: private ID82449   05.07.2024 08:34
tere ! mida te siseviimistluse all täpsemalt silmas peate ? kas maalritöid või kogu maja sisetöid ? ( põrandad ,liistud ,saun jne ).

Teavita reeglite rikkumisest

Korraldaja vastus: 05.07.2024 08:47

Tere!
Pean silmas kogu sisetöid põrandatest lagedeni.

Teavita reeglite rikkumisest

Küsimus: private ID8633   03.08.2024 23:49
Tere,ei saa aru,mille peale vaja pakkumist?

Teavita reeglite rikkumisest

Korraldaja vastus:
Hanke korraldaja ei ole küsimusele veel vastanud

Lisa küsimus

Lisa küsimus

Minu pakkumine

Reeglid

Pakkumise kirjelduse väli on mõeldud pakkumise detailsemaks lahti kirjutamiseks. Pikema teksti mugavaks sisestamiseks klikkige kasti paremal ülaservas oleval ikoonil.
Pakkumist tehes on keelatud postitada enda kontaktandmeid (nimi, telefon, aadress jne). Me jälgime ja analüüsime pakkumisi, et vältida pettuseid ja reeglite rikkumisi.
Rikkumise puhul kasutajakonto blokeeritakse.

 

Teisi töid samas valdkonnas

Valdkonnas "Siseviimistlustööd" on 24 aktiivset tööd

Seinte värvimine

Asukoht: Harjumaa, Tallinn
Aega jäänud: 16 min
Tehtud pakkumisi: 7

Seinte pahteldus ja värvimine

Asukoht: Harjumaa, Türisalu
Aega jäänud: 3p
Tehtud pakkumisi: 7

Vanemad teated:

Vaata kõiki

Sellel veebilehel kasutatakse küpsiseid. Kasutamist jätkates nõustute küpsiste kasutamisega.

Sulge
 
Minu pakkumine

Reeglid

Pakkumise kirjelduse väli on mõeldud pakkumise detailsemaks lahti kirjutamiseks. Pikema teksti mugavaks sisestamiseks klikkige kasti paremal ülaservas oleval ikoonil.
Pakkumist tehes on keelatud postitada enda kontaktandmeid (nimi, telefon, aadress jne). Me jälgime ja analüüsime pakkumisi, et vältida pettuseid ja reeglite rikkumisi.
Rikkumise puhul kasutajakonto blokeeritakse.