+ Lisa oma töö      

Otsid ehitajat "Katusetööd" valdkonnast?

Parima pakkumise ja teostaja leidmiseks lisa oma töö.

Hange on lõppenud!

Võitjaks osutus kasutaja ID 73241

Katusefermide ja kivikatuse paigaldus

ID 98908

795 vaatamist

Prindi

  • check Pakkumiste tegemine
    kuni 04.07.2024
  • check Võitja valik kuni
    11.07.2024
  • 3 Töö teostamine
    ja hinnang
Hanke lõpp: N, 4. juuli, 2024
Maakond: Tartumaa
Muu asula: Virulase
Tööde lõpp: Kokkuleppel
Ehitusmaterjalid: Töö tellija poolt
Soovin pakkumisi: Summa kogu projektile

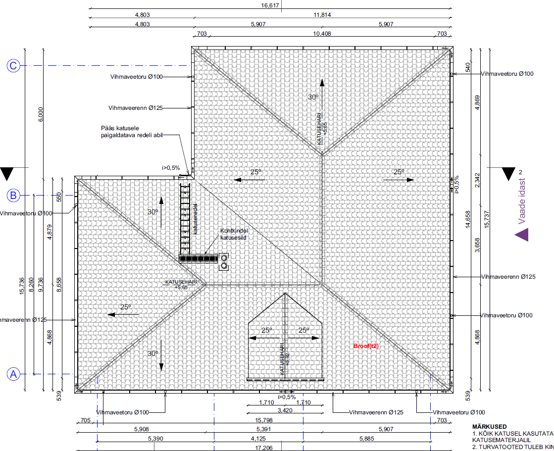
Töö sisu

Ülevalt alla:
Monieri katusekivi
Roov 50x50 mm
Tuulutusliist 25x50 mm
Aluskate
Katusefermid

Oleks hea tööd teha juulis

Pildid, video ja failid

Hanke korraldaja: eraisik ID56806

Pakkumised

Pakkumisi kokku: 6

Ettevõte Summa Käibemaks Lisatud Vestlus
Kasutaja ikoon ID57450
Pakkuja profiil Väike nool paremale
14 700€ KM lisandub KM lisandub 24.06.2024 Vestlus (0)

Pakkumise kirjeldus:

Hind vastavalt lähteülesandele.
Sobivusel võtke ühendust, tuleme läbi ning koostame detailse pakkumise.
Edukat hanget!

Kasutaja ikoon ID82700
Pakkuja profiil Väike nool paremale
11 233,5€ KM lisandub KM lisandub 25.06.2024 Vestlus (0)

Pakkumise kirjeldus:

Tere,

Hinnapakkumine tehtud ette antud andmetele.
Kuna ei ole kirjas kas kinnitus- ja abivahendid, tõstetööd on tellija poolt, siis tooksin selle hinna välja siia: 2500€ + km (see ei ole hinnapakkumise sees)

Kasutaja ikoon ID54345
Pakkuja profiil Väike nool paremale
19 800€ KM lisandub KM lisandub 03.07.2024 Vestlus (0)

Pakkumise kirjeldus:

Pakkumine soovitud töödele, sisaldab autokraanat fermide tõstmiseks. Tehtud töödele 3a garantii.

Kasutaja ikoon ID73241
Pakkuja profiil Väike nool paremale
16 000€ Sisaldab KM Sisaldab KM 04.07.2024 Vestlus (0)

Pakkumise kirjeldus:

Pakkumine sisaldab müürilati paigaldust 300 eur (kui see on juba paigaldatud siis võib selle pakkumise summast maha arvata),fermide paigaldust 1700 eur, aluskatte distantsliistu roovituse ja katusekivi paigaldust 13 500 eur ja vintskapi ehitust 500 eur (tegin hinna kuna joonisel oli vintskapp näidatud, arvatavasti läheb vaja). Katuse ehituse hind on kal ... Rohkem

Kasutaja ikoon ID34028
Pakkuja profiil Väike nool paremale
12 000€ Ei ole KMKR Ei ole KMKR 04.07.2024 Vestlus (0)

Pakkumise kirjeldus:

Pakkumine sisaldab ainult tööd . Ei sisalda tellinguid , materjale ega kraana tunde. Need tuleb tellijal endal maksta.

Kasutaja ikoon ID40566
Pakkuja profiil Väike nool paremale
14 500€ Ikoon kell KM lisandub KM lisandub 04.07.2024 Vestlus (0)

Pakkumise kirjeldus:

Hind sisaldab:
#Müürlati paigaldamine.
#Fermide paigaldamine koos tõstega.
#Aluskatte, tuulutusliistu ja roovituse paigaldamine.
#Katusekivi paigaldus koos tõstega.
#Vintskapi ehitus.
#Harja ja kaldharja tihendamine ning kivi paigaldamine.
#Neeluplekkide paigaldamine ning tihendamine.
#Kogu maja tellingud

Makse osas saab kohapeal kokku leppida ... Rohkem

Küsimused hanke korraldajale

Küsimus: private ID40566   03.07.2024 09:43
Tere,
Kas katuse ehitust võiks ka alustada augustis, kuna juuli juba täis.

Lugupidamisega
Are

Teavita reeglite rikkumisest

Korraldaja vastus: 03.07.2024 16:04

Tere, Võime augustis alustada. Anton

Teavita reeglite rikkumisest

Küsimus: private ID40566   04.07.2024 18:33
Tere,
Kas fermide tõste, kivi katusele tõste ja tellingud on töö tellija poolt või tuleb pakkumisse sisse arvutada. Lisaks, kui palju m2 katusepind suur on?

Ette tänades
Are

Teavita reeglite rikkumisest

Korraldaja vastus:
Hanke korraldaja ei ole küsimusele veel vastanud

Lisa küsimus

Lisa küsimus

Minu pakkumine

Reeglid

Pakkumise kirjelduse väli on mõeldud pakkumise detailsemaks lahti kirjutamiseks. Pikema teksti mugavaks sisestamiseks klikkige kasti paremal ülaservas oleval ikoonil.
Pakkumist tehes on keelatud postitada enda kontaktandmeid (nimi, telefon, aadress jne). Me jälgime ja analüüsime pakkumisi, et vältida pettuseid ja reeglite rikkumisi.
Rikkumise puhul kasutajakonto blokeeritakse.

 

Teisi töid samas valdkonnas

Valdkonnas "Katusetööd" on 9 aktiivset tööd

no-img Pilt puudub

Käidava katuse PVC 54m2

Asukoht: Harjumaa, Muraste
Aega jäänud: 4p 17h
Tehtud pakkumisi: 3

Garaaži katuse vahetamine

Asukoht: Harjumaa, Viimsi
Aega jäänud: 13p 17h
Tehtud pakkumisi: 2

Vanemad teated:

Vaata kõiki

Sellel veebilehel kasutatakse küpsiseid. Kasutamist jätkates nõustute küpsiste kasutamisega.

Sulge
 
Minu pakkumine

Reeglid

Pakkumise kirjelduse väli on mõeldud pakkumise detailsemaks lahti kirjutamiseks. Pikema teksti mugavaks sisestamiseks klikkige kasti paremal ülaservas oleval ikoonil.
Pakkumist tehes on keelatud postitada enda kontaktandmeid (nimi, telefon, aadress jne). Me jälgime ja analüüsime pakkumisi, et vältida pettuseid ja reeglite rikkumisi.
Rikkumise puhul kasutajakonto blokeeritakse.