+ Lisa oma töö      

Otsid ehitajat "Küttesüsteemid" valdkonnast?

Parima pakkumise ja teostaja leidmiseks lisa oma töö.

Küttesüsteemi ja jahutussüsteemi paigaldus/ehitus

ID 98827

364 vaatamist

Prindi

  • check Pakkumiste tegemine
    kuni 22.06.2024
  • check Võitja valik kuni
    29.06.2024
  • 3 Töö teostamine
    ja hinnang
Hanke lõpp: L, 22. juuni, 2024
Maakond: Harjumaa
Muu asula: Hüüru
Tööde lõpp: Kokkuleppel
Ehitusmaterjalid: Töö tegija poolt
Soovin pakkumisi: Summa kogu projektile

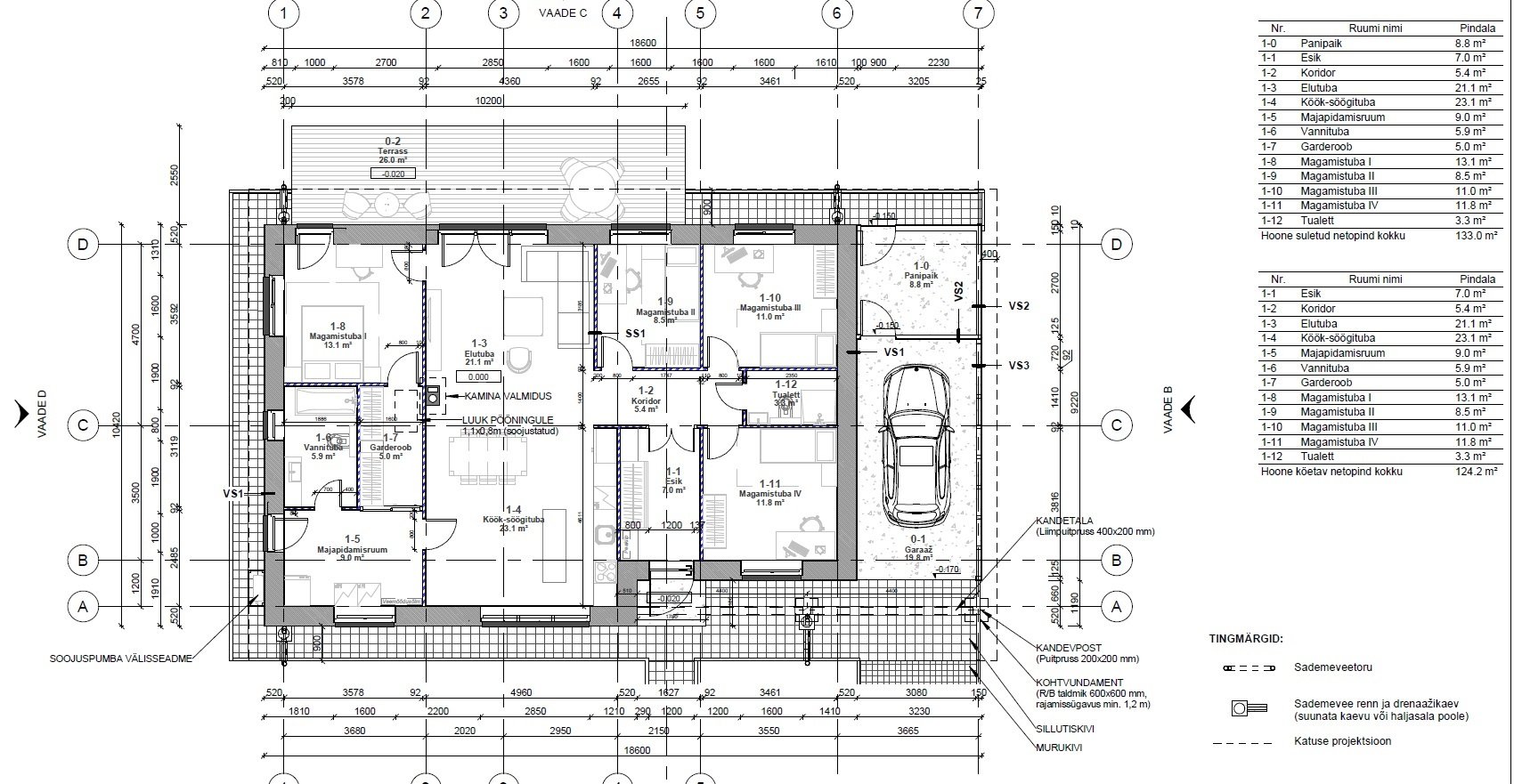
Töö sisu

Soovime eramule paigaldada kütte ja jahutussüsteemi.

Jahutus peaks olema igas toas eraldi, st 4 magamistuba ja elutuba/köök.

Põrandakütte torustik on terve maja ulatuses ja garaaz osas samuti.

Pildid, video ja failid

Hanke korraldaja: eraisik ID77718

Pakkumised

Pakkumisi kokku: 0

Küsimused hanke korraldajale

Küsimus: private ID48517   20.06.2024 21:06
Tere
Kas soovite jahutuseks ja kütteks 2 eraldi süsteemi?

Teavita reeglite rikkumisest

Korraldaja vastus: 21.06.2024 17:06

jah palun.

Teavita reeglite rikkumisest

Küsimus: private ID61954   22.06.2024 10:20
Tere.

Jahutusele on erinevaid viise. Kas jahutuse siseosad jäävad nähtavale või soovite lae sisse paigaldatult?

Küttesüsteem ilmselt siis koos soojatarbeveega

Lp.

Teavita reeglite rikkumisest

Korraldaja vastus:
Hanke korraldaja ei ole küsimusele veel vastanud

Lisa küsimus

Lisa küsimus

Minu pakkumine

Reeglid

Pakkumise kirjelduse väli on mõeldud pakkumise detailsemaks lahti kirjutamiseks. Pikema teksti mugavaks sisestamiseks klikkige kasti paremal ülaservas oleval ikoonil.
Pakkumist tehes on keelatud postitada enda kontaktandmeid (nimi, telefon, aadress jne). Me jälgime ja analüüsime pakkumisi, et vältida pettuseid ja reeglite rikkumisi.
Rikkumise puhul kasutajakonto blokeeritakse.

 

Teisi töid samas valdkonnas

Valdkonnas "Küttesüsteemid" on 2 aktiivset tööd

no-img Pilt puudub

Küttesüsteemi püstakute vahetus ja radiaatoritega ühendamine

Asukoht: Järvamaa, Paide
Aega jäänud: 3p 10h
Tehtud pakkumisi: 2

Cooper&Hunter Consol Inverter 18

Asukoht: Harjumaa, Tallinn
Aega jäänud: 10h 10 min
Tehtud pakkumisi: 1

Vanemad teated:

Vaata kõiki

Sellel veebilehel kasutatakse küpsiseid. Kasutamist jätkates nõustute küpsiste kasutamisega.

Sulge
 
Minu pakkumine

Reeglid

Pakkumise kirjelduse väli on mõeldud pakkumise detailsemaks lahti kirjutamiseks. Pikema teksti mugavaks sisestamiseks klikkige kasti paremal ülaservas oleval ikoonil.
Pakkumist tehes on keelatud postitada enda kontaktandmeid (nimi, telefon, aadress jne). Me jälgime ja analüüsime pakkumisi, et vältida pettuseid ja reeglite rikkumisi.
Rikkumise puhul kasutajakonto blokeeritakse.