+ Lisa oma töö      

Otsid ehitajat "Terrasside ehitus" valdkonnast?

Parima pakkumise ja teostaja leidmiseks lisa oma töö.

Terrassi ehitus

ID 98797

446 vaatamist

Prindi

  • check Pakkumiste tegemine
    kuni 06.08.2024
  • check Võitja valik kuni
    13.08.2024
  • 3 Töö teostamine
    ja hinnang
Hanke lõpp: T, 6. august, 2024
Maakond: Hiiumaa
Linn: Kärdla
Tööde lõpp: Kokkuleppel
Ehitusmaterjalid: Töö tegija poolt
Soovin pakkumisi: Summa kogu projektile

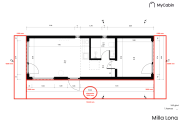
Töö sisu

1. Pealmise kasvupinna eemaldus (utiliseerida pole vaja).
2. Geotekstiil.
3. Killustikkate.
4. Karkassi ehitus (immutatud puit) + hüdroisolatsiooni teip/papp.
5. Terrassilaud (immutatud puit, sile südamikpool ülespoole paigaldus) + kinnitusviis külgedelt, et kruvid näha ei jääks + terrassilaudade otste/lõigatud osade viimistlemine.
6. Roostevabad kinnitusvahendid.
7. Koristustööd.
8. Terrass kokku 44,50m2.
Terrassi sisse planeeritud külmblustünn, diameetriga 2000mm (vaata kaasasolevat pilti ja plaani).

Võimalusel ilma KM.

Pildid, video ja failid

Hanke korraldaja: eraisik ID82979

Pakkumised

Pakkumisi kokku: 4

Ettevõte Summa Käibemaks Lisatud Vestlus
Kasutaja ikoon ID75260
Pakkuja profiil Väike nool paremale
4 200€ KM lisandub KM lisandub 08.07.2024 Vestlus (0)
Kasutaja ikoon ID77777
Pakkuja profiil Väike nool paremale
4 500€ Ei ole KMKR Ei ole KMKR 08.07.2024 Vestlus (0)
Kasutaja ikoon ID77006
Pakkuja profiil Väike nool paremale
4 500€ Sisaldab KM Sisaldab KM 10.07.2024 Vestlus (0)

Pakkumise kirjeldus:

Tere. Näidatud hind on vana terrassi ja vanade talade demonteerimise eest. Geotekstiilide paigaldus, uute talade paigaldus. Uute terrassilaudade paigaldus. Kõikide ehitusjäänuste äravedu, kõikide materjalide kohaletoomine. Hinnale lisandub hange.ee tasu. 5%+KM

Kasutaja ikoon ID75087
Pakkuja profiil Väike nool paremale
4 400€ Sisaldab KM Sisaldab KM 15.07.2024 Vestlus (0)

Küsimused hanke korraldajale

Küsimus: private ID72774   08.07.2024 07:52
Miks roostevabad kruvid? Vahetult mere ääres?

Teavita reeglite rikkumisest

Korraldaja vastus: 08.07.2024 08:17

Sobivad terasest või roostevaba terasest.

Teavita reeglite rikkumisest

Lisa küsimus

Lisa küsimus

Minu pakkumine

Reeglid

Pakkumise kirjelduse väli on mõeldud pakkumise detailsemaks lahti kirjutamiseks. Pikema teksti mugavaks sisestamiseks klikkige kasti paremal ülaservas oleval ikoonil.
Pakkumist tehes on keelatud postitada enda kontaktandmeid (nimi, telefon, aadress jne). Me jälgime ja analüüsime pakkumisi, et vältida pettuseid ja reeglite rikkumisi.
Rikkumise puhul kasutajakonto blokeeritakse.

 

Teisi töid samas valdkonnas

Valdkonnas "Terrasside ehitus" on 8 aktiivset tööd

Terrassi ehitus

Asukoht: Harjumaa, Jüri
Aega jäänud: 11p 21h
Tehtud pakkumisi: 8

Olemasoleva terrassi demonteerimine, utiliseerimine, uue ehitus

Asukoht: Harjumaa, Tallinn
Aega jäänud: 21h 48 min
Tehtud pakkumisi: 7

Vanemad teated:

Vaata kõiki

Sellel veebilehel kasutatakse küpsiseid. Kasutamist jätkates nõustute küpsiste kasutamisega.

Sulge
 
Minu pakkumine

Reeglid

Pakkumise kirjelduse väli on mõeldud pakkumise detailsemaks lahti kirjutamiseks. Pikema teksti mugavaks sisestamiseks klikkige kasti paremal ülaservas oleval ikoonil.
Pakkumist tehes on keelatud postitada enda kontaktandmeid (nimi, telefon, aadress jne). Me jälgime ja analüüsime pakkumisi, et vältida pettuseid ja reeglite rikkumisi.
Rikkumise puhul kasutajakonto blokeeritakse.