+ Lisa oma töö      

Otsid ehitajat "Põrandatööd" valdkonnast?

Parima pakkumise ja teostaja leidmiseks lisa oma töö.

Põranda avamine, soojustamine ja tasandamine

ID 98726

453 vaatamist

Prindi

  • check Pakkumiste tegemine
    kuni 20.06.2024
  • check Võitja valik kuni
    27.06.2024
  • 3 Töö teostamine
    ja hinnang
Hanke lõpp: N, 20. juuni, 2024
Maakond: Harjumaa
Linn: Tallinn
Tööde lõpp: Kokkuleppel
Ehitusmaterjalid: Töö tegija poolt
Soovin pakkumisi: Tüki- või ühikuhinda

Töö sisu

Töö sisuks on vana põranda (Soome papp ja põrandalaud) laagideni lahtivõtmine, soojustamine ja ettevalmistus parketi paigaldamiseks (tasandamine, OSB-plaadi paigaldamine). Utiliseerida tekkinud jäätmed. Pakkumises võib välja tuua ka torude/elektrijuhtmete põranda alla paigaldamise hinna kui on teadmisi ja oskusi neid töid lisaks teha.
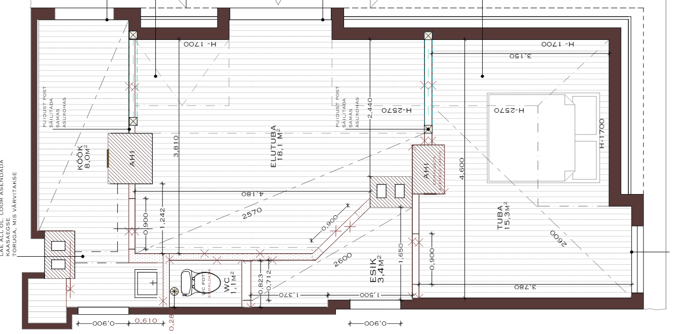
Põrandapind: 45.1m2
Objekt asub Tallinna kesklinnas, maja 3.korrusel.

Pildid, video ja failid

Hanke korraldaja: eraisik ID40912

Pakkumised

Pakkumisi kokku: 6

Ettevõte Summa Käibemaks Lisatud Vestlus
Kasutaja ikoon ID75087
Pakkuja profiil Väike nool paremale
10 000€ Sisaldab KM Sisaldab KM 17.06.2024 Vestlus (0)
Kasutaja ikoon ID80879
Pakkuja profiil Väike nool paremale
2 800€ KM lisandub KM lisandub 17.06.2024 Vestlus (0)

Pakkumise kirjeldus:

Tere,

Kaablite ja torude paigaldus võiks olla tunni põhiselt, sest kogus on teadmata ning ka kaasnevad lisatööd. Tund oleks 24+km. Mehed on kiired ja molutamist niiöelda ei ole.

Kasutaja ikoon ID78546
Pakkuja profiil Väike nool paremale
1 500€ KM lisandub KM lisandub 20.06.2024 Vestlus (0)

Pakkumise kirjeldus:

Tööde maksumus.Materjalide mahtu võimatu arvestada enne lahtivõtmist.Torude ja juhtmete paigalduse pakkumiseks vaja teada mahte.

Kasutaja ikoon ID50594
Pakkuja profiil Väike nool paremale
18 800€ KM lisandub KM lisandub 20.06.2024 Vestlus (0)

Pakkumise kirjeldus:

Tere,

Pakkumine vastavalt hanke kirjeldusele.

Lgp. Taivo

Kasutaja ikoon ID82065
Pakkuja profiil Väike nool paremale
2 935€ Ei ole KMKR Ei ole KMKR 20.06.2024 Vestlus (0)

Pakkumise kirjeldus:

Tere,
meie pakkumine hankele on jägnev.

Demontaaz 7€/m2 - 315€
Utiliseerimine 250€
Paroc Ultra 150 11.57€/m2 - 520.65€
Isolatsiooni paigaldus 10€/m2 - 450€
Põrandaplaadi paigaldus 12€/m2 - 540€
OSB 18mm, soonega 12€/m2 - 540€
Kinnitusvahendid 120€
Materjali hankimine ja transport objektile 200€

NB! Lisandub hange.ee ... Rohkem

Kasutaja ikoon ID79944
Pakkuja profiil Väike nool paremale
3 500€ Sisaldab KM Sisaldab KM 20.06.2024 Vestlus (4)

Pakkumise kirjeldus:

Tere. Pakkumises kirjeldatud tööde hind sh elektrikaablite paigaldus.

Küsimused hanke korraldajale

Küsimus: private ID73089   18.06.2024 11:12
Tere. Oskate öelda palju läheb soojustust(paksus) ja kas kivivill sobibks?

Teavita reeglite rikkumisest

Korraldaja vastus: 18.06.2024 22:41

Tere, keeruline praegu öelda kui palju soojustust läheb, sest ei tea veel, mis põranda all toimub. Kivivill peaks sobima küll.

Teavita reeglite rikkumisest

Lisa küsimus

Lisa küsimus

Minu pakkumine

Reeglid

Pakkumise kirjelduse väli on mõeldud pakkumise detailsemaks lahti kirjutamiseks. Pikema teksti mugavaks sisestamiseks klikkige kasti paremal ülaservas oleval ikoonil.
Pakkumist tehes on keelatud postitada enda kontaktandmeid (nimi, telefon, aadress jne). Me jälgime ja analüüsime pakkumisi, et vältida pettuseid ja reeglite rikkumisi.
Rikkumise puhul kasutajakonto blokeeritakse.

 

Teisi töid samas valdkonnas

Valdkonnas "Põrandatööd" on 2 aktiivset tööd

Talumaja põrandate valamine/ehitus koos küttetorustiku paigaldusega

Asukoht: Raplamaa, Purila
Aega jäänud: 16p 20h
Tehtud pakkumisi: 2

Põrandakütte paigaldus ja põrandavalu (kips või betoon)

Asukoht: Saaremaa, Muhu vald
Aega jäänud: 20h 39 min
Tehtud pakkumisi: 1

Vanemad teated:

Vaata kõiki

Sellel veebilehel kasutatakse küpsiseid. Kasutamist jätkates nõustute küpsiste kasutamisega.

Sulge
 
Minu pakkumine

Reeglid

Pakkumise kirjelduse väli on mõeldud pakkumise detailsemaks lahti kirjutamiseks. Pikema teksti mugavaks sisestamiseks klikkige kasti paremal ülaservas oleval ikoonil.
Pakkumist tehes on keelatud postitada enda kontaktandmeid (nimi, telefon, aadress jne). Me jälgime ja analüüsime pakkumisi, et vältida pettuseid ja reeglite rikkumisi.
Rikkumise puhul kasutajakonto blokeeritakse.