+ Lisa oma töö      

Otsid ehitajat "Korterite remont" valdkonnast?

Parima pakkumise ja teostaja leidmiseks lisa oma töö.

2-toalise korteri kapitaalremont

ID 98489

839 vaatamist

Prindi

  • check Pakkumiste tegemine
    kuni 20.06.2024
  • check Võitja valik kuni
    27.06.2024
  • 3 Töö teostamine
    ja hinnang
Hanke lõpp: N, 20. juuni, 2024
Maakond: Harjumaa
Linn: Tallinn
Tööde lõpp: Kokkuleppel
Ehitusmaterjalid: Töö tegija poolt
Soovin pakkumisi: Summa kogu projektile

Töö sisu

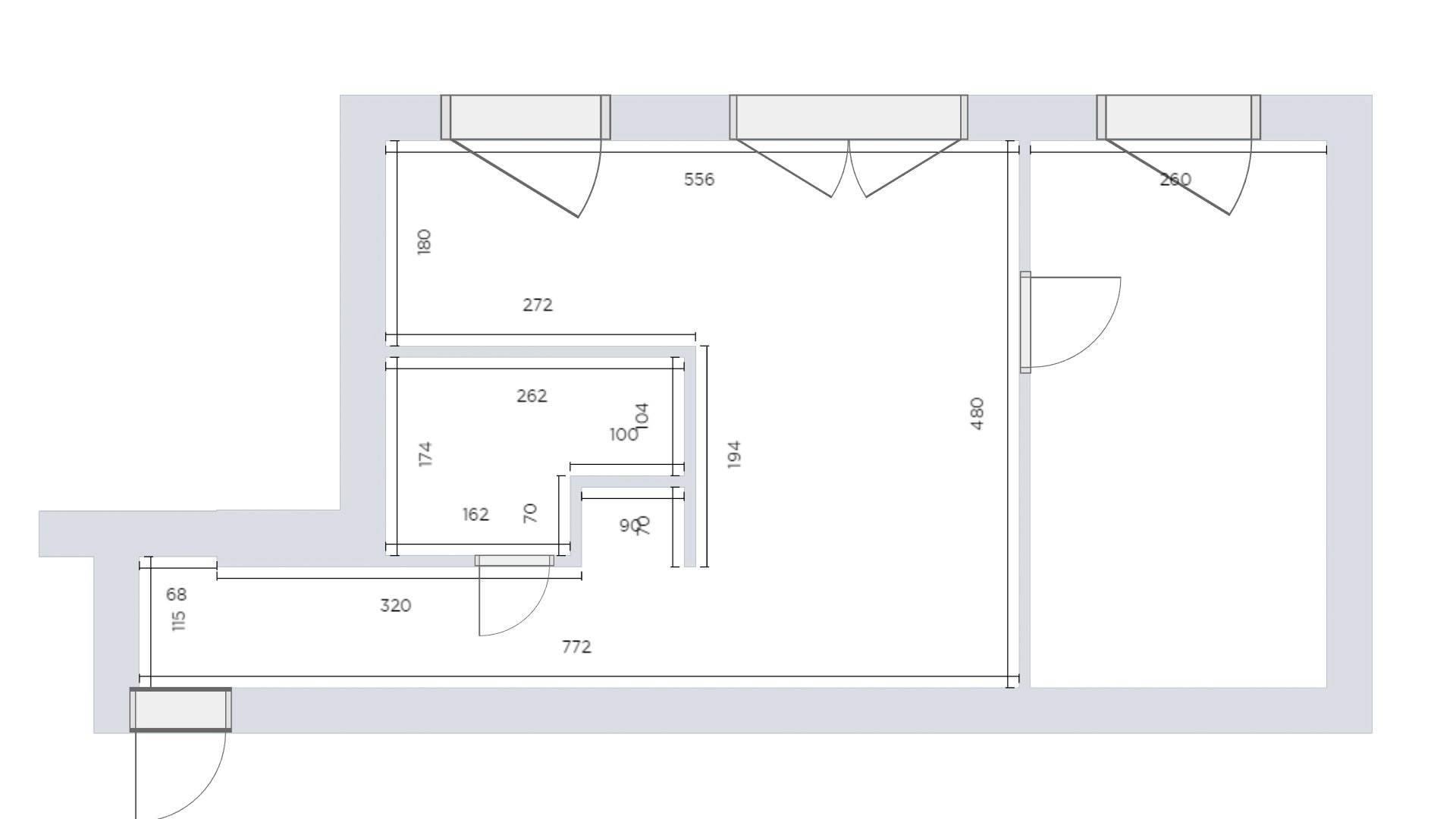
Kahetoalise korteri (39.6 m2) kapitaalremont. Korter asub Tallinnas, Tondil, 1. korrusel. Lammutustööd on tehtud ja hetkeseis piltidel näha.

Põhilised tööd:

- aluspõranda rihtimine/tasandamine
- kipsseinte ehitus (sisemised seinad)
- kipslae ehitus
- olemasolevate seinte krohvimine sirgeks
- seinte ja lagede pahteldus, krunt, värv
- torutööd
- ventilatsiooni paigaldus vannitoas
- hüdroisolatsioon
- plaatimine, vuukimine, silikoonimine (vannituba + esik)
- laminaatparketi ja liistude paigaldus
- 2 siseukse paigaldus
- santehnika paigaldus
- põrandakütte paigaldus
- kogu elektrijuhtmestiku vahetus korteris, uued pistikud, lülitid jne

Tellija poolt plaadid, santehnika, valgustid, parkett, liistud, siseuksed, muud ehitusmaterjalid ehitaja poolt.

Pakkumise võib esitada ka jättes välja elektritööd( ja -materjalid) ning plaatimistööd. Nende tööde teostajad on mul vajadusel olemas.

Pildid, video ja failid

Hanke korraldaja: eraisik ID80820

Pakkumised

Pakkumisi kokku: 7

Ettevõte Summa Käibemaks Lisatud Vestlus
Kasutaja ikoon ID30741
Pakkuja profiil Väike nool paremale
15 000€ Ei ole KMKR Ei ole KMKR 13.06.2024 Vestlus (0)

Pakkumise kirjeldus:

Hind on indikatiivne!
Torutööd hinnas!
Hind ei sisalda elektritöid!
Hind ei sisalda baas ja viimistlusmaterjale!

Kasutaja ikoon ID72080
Pakkuja profiil Väike nool paremale
15 000€ Ei ole KMKR Ei ole KMKR 14.06.2024 Vestlus (20)

Pakkumise kirjeldus:

pakkumine antud töödele garanti 2aastat . Töödega saaks alustada koheselt ! Parimat .

Kasutaja ikoon ID76974
Pakkuja profiil Väike nool paremale
23 760€ Ei ole KMKR Ei ole KMKR 14.06.2024 Vestlus (0)
Kasutaja ikoon ID56387
Pakkuja profiil Väike nool paremale
23 500€ KM lisandub KM lisandub 14.06.2024 Vestlus (0)

Pakkumise kirjeldus:

Tere, pakkumine sisaldab kõiki soovitud töid ja materjale ning prahi utiliseerimist.

Parimat,
Marek

Kasutaja ikoon ID77006
Pakkuja profiil Väike nool paremale
8 600€ Sisaldab KM Sisaldab KM 19.06.2024 Vestlus (0)

Pakkumise kirjeldus:

Tere. Näidatud hind kehtib kogu tööde nimekirjale. (võtmed kätte) Hind ei sisalda materjale. Vajadusel saan osta ja tuua materjalid projekti. K-karayt 40-50% allahindlus Kõigile Ganti töödele 2 a. Hinnale lisandub hange.ee tasu 5%+ KM. Kui teil on küsimusi, vastan neile hea meelega. Aitäh

Kasutaja ikoon ID60045
Pakkuja profiil Väike nool paremale
1 670€ KM lisandub KM lisandub 20.06.2024 Vestlus (4)

Pakkumise kirjeldus:

Tere!

Oleme ehitusettevõte, mis pakub kvaliteetseid terviklahendusi vastavalt tellija vajadustele. Meie teenuste hulka kuuluvad ettevalmistus, projekteerimine, ehitus, korterite renoveerimine, siseviimistlus ja garantiiaegne teenindus.

Oleme huvitatud Teie pakutavast objektist ja spetsialiseerume korterite renoveerimisele ning värskendustöödele. A ... Rohkem

Kasutaja ikoon ID79944
Pakkuja profiil Väike nool paremale
8 200€ Sisaldab KM Sisaldab KM 20.06.2024 Vestlus (0)

Pakkumise kirjeldus:

Tere. Pakkumises kirjeldatud tööde hind.

Küsimused hanke korraldajale

Hanke korraldajale ei ole veel küsimusi esitatud.

Lisa küsimus

Lisa küsimus

Minu pakkumine

Reeglid

Pakkumise kirjelduse väli on mõeldud pakkumise detailsemaks lahti kirjutamiseks. Pikema teksti mugavaks sisestamiseks klikkige kasti paremal ülaservas oleval ikoonil.
Pakkumist tehes on keelatud postitada enda kontaktandmeid (nimi, telefon, aadress jne). Me jälgime ja analüüsime pakkumisi, et vältida pettuseid ja reeglite rikkumisi.
Rikkumise puhul kasutajakonto blokeeritakse.

 

Teisi töid samas valdkonnas

Valdkonnas "Korterite remont" on 2 aktiivset tööd

Vannitoa lampide paigaldus + erinevad pisiparandused korteris

Asukoht: Harjumaa, Tallinn
Aega jäänud: 1p 12h
Tehtud pakkumisi: 3

Korteri kapitaalremont ja ümberehitus (täielik siseviimistlus + elektritööd)

Asukoht: Järvamaa
Aega jäänud: 12p 12h
Tehtud pakkumisi: 0

Vanemad teated:

Vaata kõiki

Sellel veebilehel kasutatakse küpsiseid. Kasutamist jätkates nõustute küpsiste kasutamisega.

Sulge
 
Minu pakkumine

Reeglid

Pakkumise kirjelduse väli on mõeldud pakkumise detailsemaks lahti kirjutamiseks. Pikema teksti mugavaks sisestamiseks klikkige kasti paremal ülaservas oleval ikoonil.
Pakkumist tehes on keelatud postitada enda kontaktandmeid (nimi, telefon, aadress jne). Me jälgime ja analüüsime pakkumisi, et vältida pettuseid ja reeglite rikkumisi.
Rikkumise puhul kasutajakonto blokeeritakse.