+ Lisa oma töö      

Otsid ehitajat "Uste- ja akende paigaldus" valdkonnast?

Parima pakkumise ja teostaja leidmiseks lisa oma töö.

Akende uste vahetus ning aknalaudade valamine ja palede uuesti krohvimine.

ID 98238

371 vaatamist

Prindi

  • check Pakkumiste tegemine
    kuni 13.06.2024
  • check Võitja valik kuni
    20.06.2024
  • 3 Töö teostamine
    ja hinnang
Hanke lõpp: N, 13. juuni, 2024
Maakond: Jõgevamaa
Linn: Põltsamaa
Tööde lõpp: Kokkuleppel
Ehitusmaterjalid: Töö tellija poolt
Soovin pakkumisi: Summa kogu projektile

Töö sisu

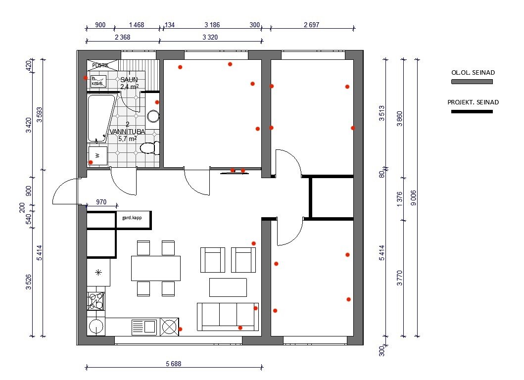
Tulekindla välisukse paigaldus ja vana eemaldamine. 5 akna eemaldamine ja paigaldus ning utiliseerimine. Sisemiste palede krohvimine ja aknalaua aluste tasaseks valamine. Vihmaplekkide paigaldus ning välimised palede plekkid seinaga tasa. 4 siseukse paigaldus. Korter asub 2. korrusel.

Pildid, video ja failid

Hanke korraldaja: eraisik ID82608

Pakkumised

Pakkumisi kokku: 1

Ettevõte Summa Käibemaks Lisatud Vestlus
Kasutaja ikoon ID77777
Pakkuja profiil Väike nool paremale
1 900€ Ei ole KMKR Ei ole KMKR 13.06.2024 Vestlus (0)

Küsimused hanke korraldajale

Küsimus: private ID77777   11.06.2024 22:47
Tere sooviks infot mida mõtlete aknalaua aluste tasaseks valamise all? Lisate pilte äkki? Ning välimised palede plekid seinaga tasa, tahate lihtsalt liiste akna ja fassaadi vahe katmiseks?

Teavita reeglite rikkumisest

Korraldaja vastus: 12.06.2024 06:34

Siis kuo aknad paigas siis sooviks aknalaua alused tasa saada. Isevalguvaga mõni cm . Jah nurgaliist lihtsalt mis katab kogu välimise pale ära.

Teavita reeglite rikkumisest

Lisa küsimus

Lisa küsimus

Minu pakkumine

Reeglid

Pakkumise kirjelduse väli on mõeldud pakkumise detailsemaks lahti kirjutamiseks. Pikema teksti mugavaks sisestamiseks klikkige kasti paremal ülaservas oleval ikoonil.
Pakkumist tehes on keelatud postitada enda kontaktandmeid (nimi, telefon, aadress jne). Me jälgime ja analüüsime pakkumisi, et vältida pettuseid ja reeglite rikkumisi.
Rikkumise puhul kasutajakonto blokeeritakse.

 

Vanemad teated:

Vaata kõiki

Sellel veebilehel kasutatakse küpsiseid. Kasutamist jätkates nõustute küpsiste kasutamisega.

Sulge
 
Minu pakkumine

Reeglid

Pakkumise kirjelduse väli on mõeldud pakkumise detailsemaks lahti kirjutamiseks. Pikema teksti mugavaks sisestamiseks klikkige kasti paremal ülaservas oleval ikoonil.
Pakkumist tehes on keelatud postitada enda kontaktandmeid (nimi, telefon, aadress jne). Me jälgime ja analüüsime pakkumisi, et vältida pettuseid ja reeglite rikkumisi.
Rikkumise puhul kasutajakonto blokeeritakse.