+ Lisa oma töö      

Otsid ehitajat "Torutööd" valdkonnast?

Parima pakkumise ja teostaja leidmiseks lisa oma töö.

Vee ja kanalisatsiooni tööd

ID 97882

455 vaatamist

Prindi

  • check Pakkumiste tegemine
    kuni 07.06.2024
  • check Võitja valik kuni
    14.06.2024
  • 3 Töö teostamine
    ja hinnang
Hanke lõpp: R, 7. juuni, 2024
Maakond: Jõgevamaa
Linn: Põltsamaa
Tööde lõpp: Kokkuleppel
Ehitusmaterjalid: Töö tellija poolt
Soovin pakkumisi: Summa kogu projektile

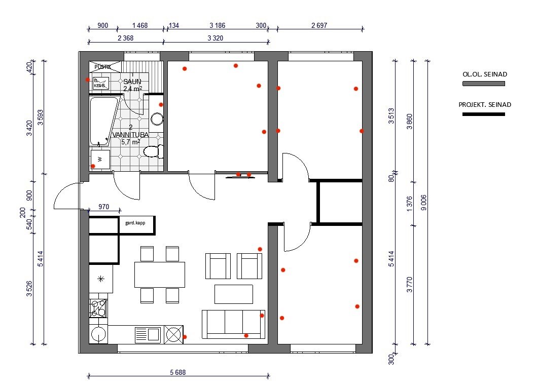
Töö sisu

Kogu korteri vee ja kanalidatsiooni torude paigaldus ning tehnoruumi kolektori paigaldus

Pildid, video ja failid

Hanke korraldaja: eraisik ID82608

Pakkumised

Pakkumisi kokku: 4

Ettevõte Summa Käibemaks Lisatud Vestlus
Kasutaja ikoon ID56653
Pakkuja profiil Väike nool paremale
380€ KM lisandub KM lisandub 05.06.2024 Vestlus (2)
Kasutaja ikoon ID82635
Pakkuja profiil Väike nool paremale
1 360€ KM lisandub KM lisandub 05.06.2024 Vestlus (0)

Pakkumise kirjeldus:

Tere
Pakkumine sisaldab korteri sees kanalisatsiooni, külma vee ja sooja vee torude paigaldust, sooja- ja külma vee kollektorite paigaldust.
Torud paigaldatakse seinte peale või kipsseinte taha ja torud lõppevad nurgapõlvega.
Vajadusel saab juurde pakkuda sooja tarbevee boilerit ja torude seintesse freesimist (juhul, kui on vaja)
Parimat

Kasutaja ikoon ID50618
Pakkuja profiil Väike nool paremale
1 700€ KM lisandub KM lisandub 06.06.2024 Vestlus (0)

Pakkumise kirjeldus:

Hind sisaldab vee ja kanalisatsiooni torustiku ja paigaldustöid.
Santehnika paigaldust hinnas pole.

Valida võitjaks ainult siis kui olete kindlad tööde tellijad, siis me ei pea hankele tasuma teenustasu arvet ilma asjata ja kui valite võitjaks, kuid töid ei telli, siis jääb teenustasu Teie kanda.

Kasutaja ikoon ID71347
Pakkuja profiil Väike nool paremale
2 000€ Ei ole KMKR Ei ole KMKR 07.06.2024 Vestlus (0)

Pakkumise kirjeldus:

Tere
Pakkumine sisaldab:
*Soonte freesimist
*Vee torustik 16 alupex hülsi sees
*Kanali torustik 50 ja 110
*Seina kannad ja segistite nurk kraanid
*Veekollektor, sulgkraanid
*Jäätmete utiliseerimine

Parimat!
Torumees

Küsimused hanke korraldajale

Küsimus: private ID71347   06.06.2024 01:04
Tere
Küsin kust torud kulgevad, kas freesida tarvis .

Parimat!
Torumees

Teavita reeglite rikkumisest

Korraldaja vastus: 06.06.2024 01:40

Tete freesida vaja jh.

Teavita reeglite rikkumisest

Lisa küsimus

Lisa küsimus

Minu pakkumine

Reeglid

Pakkumise kirjelduse väli on mõeldud pakkumise detailsemaks lahti kirjutamiseks. Pikema teksti mugavaks sisestamiseks klikkige kasti paremal ülaservas oleval ikoonil.
Pakkumist tehes on keelatud postitada enda kontaktandmeid (nimi, telefon, aadress jne). Me jälgime ja analüüsime pakkumisi, et vältida pettuseid ja reeglite rikkumisi.
Rikkumise puhul kasutajakonto blokeeritakse.

 

Teisi töid samas valdkonnas

Valdkonnas "Torutööd" on 2 aktiivset tööd

Kaarhalli soojaku torustiku renoveerimine

Asukoht: Harjumaa, Saue
Aega jäänud: 17h 55 min
Tehtud pakkumisi: 4

Köögi äravoolu paigaldus

Asukoht: Harjumaa, Tallinn
Aega jäänud: 4p 17h
Tehtud pakkumisi: 2

Vanemad teated:

Vaata kõiki

Sellel veebilehel kasutatakse küpsiseid. Kasutamist jätkates nõustute küpsiste kasutamisega.

Sulge
 
Minu pakkumine

Reeglid

Pakkumise kirjelduse väli on mõeldud pakkumise detailsemaks lahti kirjutamiseks. Pikema teksti mugavaks sisestamiseks klikkige kasti paremal ülaservas oleval ikoonil.
Pakkumist tehes on keelatud postitada enda kontaktandmeid (nimi, telefon, aadress jne). Me jälgime ja analüüsime pakkumisi, et vältida pettuseid ja reeglite rikkumisi.
Rikkumise puhul kasutajakonto blokeeritakse.