+ Lisa oma töö      

Otsid ehitajat "Müüritööd" valdkonnast?

Parima pakkumise ja teostaja leidmiseks lisa oma töö.

Fibo müüri ladumine

ID 97868

472 vaatamist

Prindi

  • check Pakkumiste tegemine
    kuni 07.06.2024
  • check Võitja valik kuni
    14.06.2024
  • 3 Töö teostamine
    ja hinnang
Hanke lõpp: R, 7. juuni, 2024
Maakond: Harjumaa
Linn: Keila
Tööde lõpp: Kokkuleppel
Ehitusmaterjalid: Töö tellija poolt
Soovin pakkumisi: Summa kogu projektile

Töö sisu

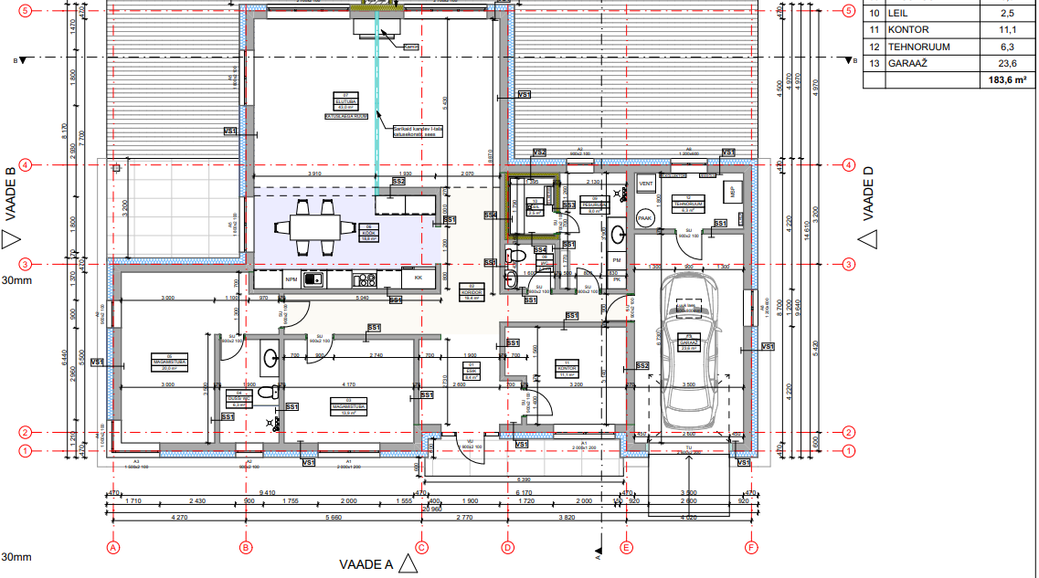
fibo 3 250 ploki ladumine. Seinte kõrgus 2.6m. Hinnanguline maht koos kandvate siseseintega 200m2. Sillused ja müürivöö tuleb ise valada, selle hind kokkuleppel. Tellingud kokkuleppel kas tööde teostaja või tellija poolt. Võib pakkuda m2 hinda

Pildid, video ja failid

Hanke korraldaja: ettevõte ID59963

Pakkumised

Pakkumisi kokku: 4

Ettevõte Summa Käibemaks Lisatud Vestlus
Kasutaja ikoon ID49809
Pakkuja profiil Väike nool paremale
5 000€ KM lisandub KM lisandub 04.06.2024 Vestlus (0)
Kasutaja ikoon ID39222
Pakkuja profiil Väike nool paremale
5 200€ KM lisandub KM lisandub 05.06.2024 Vestlus (0)
Kasutaja ikoon ID50594
Pakkuja profiil Väike nool paremale
8 800€ KM lisandub KM lisandub 06.06.2024 Vestlus (0)

Pakkumise kirjeldus:

Tere,

Pakkumine vastavalt hanke kirjeldusele.

Lgp. Taivo

Kasutaja ikoon ID79944
Pakkuja profiil Väike nool paremale
4 800€ Sisaldab KM Sisaldab KM 07.06.2024 Vestlus (0)

Pakkumise kirjeldus:

Tere. Tööraha. Sillused ja betoonivöö on hinnas eraldi. Sillused 1/Jm-40 euro, betonivöö 1/Jm-20euro.

Küsimused hanke korraldajale

Hanke korraldajale ei ole veel küsimusi esitatud.

Lisa küsimus

Lisa küsimus

Minu pakkumine

Reeglid

Pakkumise kirjelduse väli on mõeldud pakkumise detailsemaks lahti kirjutamiseks. Pikema teksti mugavaks sisestamiseks klikkige kasti paremal ülaservas oleval ikoonil.
Pakkumist tehes on keelatud postitada enda kontaktandmeid (nimi, telefon, aadress jne). Me jälgime ja analüüsime pakkumisi, et vältida pettuseid ja reeglite rikkumisi.
Rikkumise puhul kasutajakonto blokeeritakse.

 

Vanemad teated:

Vaata kõiki

Sellel veebilehel kasutatakse küpsiseid. Kasutamist jätkates nõustute küpsiste kasutamisega.

Sulge
 
Minu pakkumine

Reeglid

Pakkumise kirjelduse väli on mõeldud pakkumise detailsemaks lahti kirjutamiseks. Pikema teksti mugavaks sisestamiseks klikkige kasti paremal ülaservas oleval ikoonil.
Pakkumist tehes on keelatud postitada enda kontaktandmeid (nimi, telefon, aadress jne). Me jälgime ja analüüsime pakkumisi, et vältida pettuseid ja reeglite rikkumisi.
Rikkumise puhul kasutajakonto blokeeritakse.