+ Lisa oma töö      

Otsid ehitajat "Üldehitus" valdkonnast?

Parima pakkumise ja teostaja leidmiseks lisa oma töö.

Vundamendi ehitus, pinnasetöö (talveaiale 14 m2)

ID 97749

559 vaatamist

Prindi

  • check Pakkumiste tegemine
    kuni 16.06.2024
  • check Võitja valik kuni
    23.06.2024
  • 3 Töö teostamine
    ja hinnang
Hanke lõpp: P, 16. juuni, 2024
Maakond: Pärnumaa
Muu asula: Papsaare
Tööde lõpp: P, 07. juuli, 2024
Ehitusmaterjalid: Töö tegija poolt
Soovin pakkumisi: Summa kogu projektile

Töö sisu

Töömaht:
1. Vundamendi kaeve 0,5m (kaeviku laius) x 11 jm (3,5+3,5+4 m; perimeetri pikkus) x 0,6 (kaeviku sügavus maapinnast) = 3,3 m3.
2. Vundamendi killustikalus koos tihendamisega 0,5 x 11 jm x h=0,2 = 1,1 m3
3. Fibo 5 vundament 11 jm x 0,6 = 6,6 m2
4. Põrandaaluse koorimine 3,5 x 4 m x h=0,2 m = 2,8 m3
5. Põrandaaluse täitmine liivaga koos tihendamisega 3,5 x 4 x h=0,22 = 3,08 m3
6. Kile paigaldus koos vundamendi peale teipimisega ca 16 m2
7. Põrandaalune soojustus (põranda EPS) 100 mm
8. 80 mm põrandavalu (r/b või liivbetoon), valmidus põrandakatte (SPC) paigalduseks

Hind sisaldab ehitusprahi utiliseerimist. Väljakaevatud pinnase saab 100m raadiuses täiteks ära kasutada, äravedu pole vajalik. Krundil laiali ajamine sisaldub hinnas.
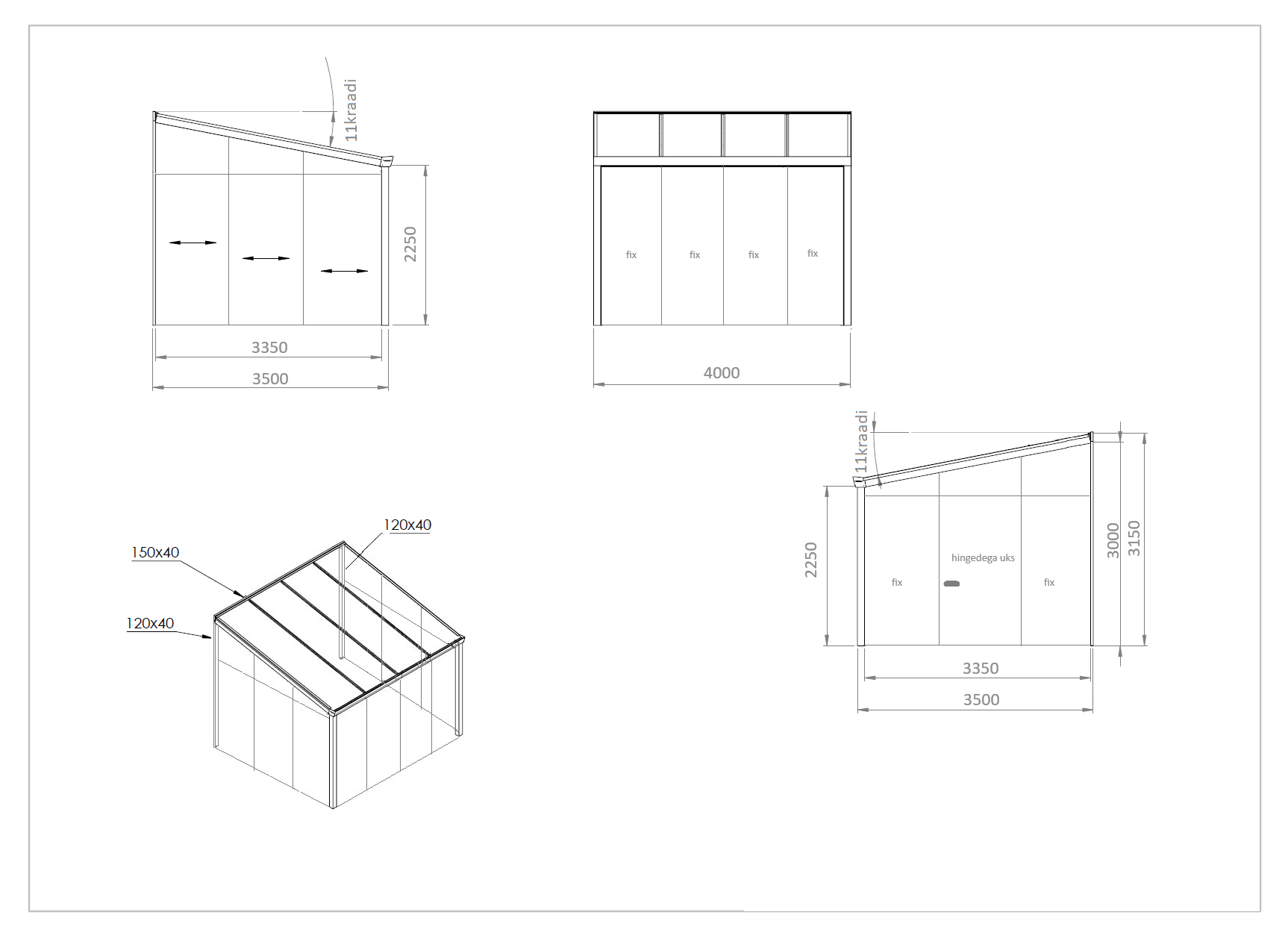
Kaasas ka talveaia lahendus. Talveaia klaasalumiiniumsein paigaldatakse vundamendi tsentrisse. Talveaia ehitus ei kuulu töövõttu.

NB vundamendi võib ehitada ka nn taldmikuplokkidest ja valada r/b põrand. Gabariitidelt peaks jääma sama.
Tasumine arvega.

Pildid, video ja failid

Hanke korraldaja: eraisik ID82564

Pakkumised

Pakkumisi kokku: 0

Küsimused hanke korraldajale

Hanke korraldajale ei ole veel küsimusi esitatud.

Lisa küsimus

Lisa küsimus

Minu pakkumine

Reeglid

Pakkumise kirjelduse väli on mõeldud pakkumise detailsemaks lahti kirjutamiseks. Pikema teksti mugavaks sisestamiseks klikkige kasti paremal ülaservas oleval ikoonil.
Pakkumist tehes on keelatud postitada enda kontaktandmeid (nimi, telefon, aadress jne). Me jälgime ja analüüsime pakkumisi, et vältida pettuseid ja reeglite rikkumisi.
Rikkumise puhul kasutajakonto blokeeritakse.

 

Teisi töid samas valdkonnas

Valdkonnas "Üldehitus" on 27 aktiivset tööd

Maja värvimine

Asukoht: Harjumaa, Saue
Aega jäänud: 2p 11h
Tehtud pakkumisi: 5

Terassi õlitamine, 13,7 ruutu

Asukoht: Harjumaa, Saue
Aega jäänud: 5p 11h
Tehtud pakkumisi: 5

Vanemad teated:

Vaata kõiki

Sellel veebilehel kasutatakse küpsiseid. Kasutamist jätkates nõustute küpsiste kasutamisega.

Sulge
 
Minu pakkumine

Reeglid

Pakkumise kirjelduse väli on mõeldud pakkumise detailsemaks lahti kirjutamiseks. Pikema teksti mugavaks sisestamiseks klikkige kasti paremal ülaservas oleval ikoonil.
Pakkumist tehes on keelatud postitada enda kontaktandmeid (nimi, telefon, aadress jne). Me jälgime ja analüüsime pakkumisi, et vältida pettuseid ja reeglite rikkumisi.
Rikkumise puhul kasutajakonto blokeeritakse.