+ Lisa oma töö      

Otsid ehitajat "Põrandatööd" valdkonnast?

Parima pakkumise ja teostaja leidmiseks lisa oma töö.

Kipsivalu valamine 64.1m2

ID 97348

494 vaatamist

Prindi

  • check Pakkumiste tegemine
    kuni 31.05.2024
  • check Võitja valik kuni
    07.06.2024
  • 3 Töö teostamine
    ja hinnang
Hanke lõpp: R, 31. mai, 2024
Maakond: Harjumaa
Muu asula: Vääna-Jõesuu
Tööde lõpp: Kokkuleppel
Ehitusmaterjalid: Töö tegija poolt
Soovin pakkumisi: Summa kogu projektile

Töö sisu

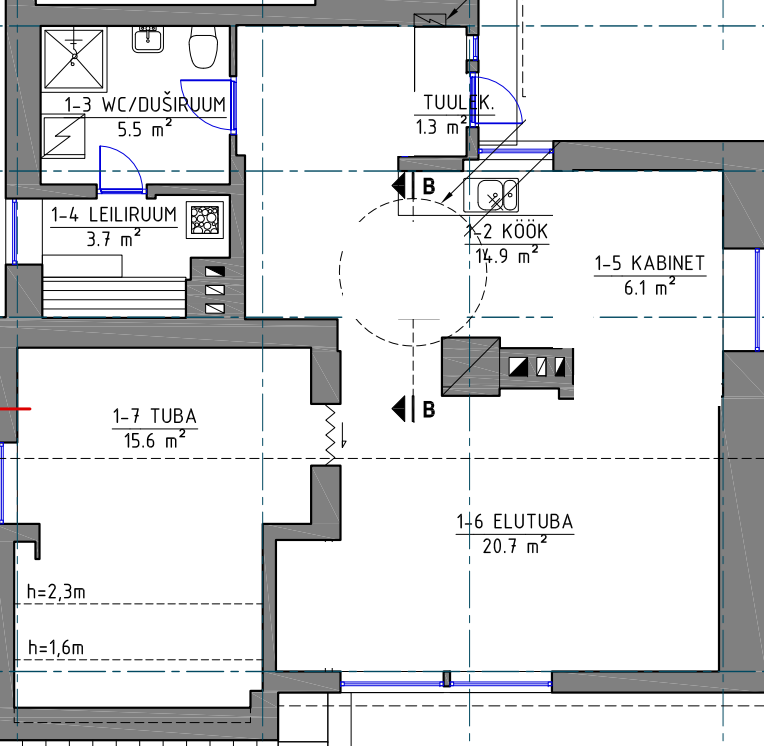
Kipsivalu valamine

Suvila, 64.1m2 (kipsivalu Leiliruumi ei lähe plaanil, mujale jah)

Vanal puitpõrandal (osades kohtades väheselt peno/OSB) aurutõkkekile ning küttetorud 2cm
Seina ja põranda äärde tuleb veel lint (piltidel veel ei ole)

Ilmselt kipsivalu paksuseks tuleks 5-6-7 cm???, võimalikult väheselt sest laed madalad?

Elekter 20A , tsentraalne vesi olemas.

Pildid, video ja failid

Hanke korraldaja: eraisik ID78812

Pakkumised

Pakkumisi kokku: 1

Ettevõte Summa Käibemaks Lisatud Vestlus
Kasutaja ikoon ID51505
Pakkuja profiil Väike nool paremale
2 100€ KM lisandub KM lisandub 26.05.2024 Vestlus (0)

Pakkumise kirjeldus:

lisandub hange.ee tasu

Küsimused hanke korraldajale

Hanke korraldajale ei ole veel küsimusi esitatud.

Lisa küsimus

Lisa küsimus

Minu pakkumine

Reeglid

Pakkumise kirjelduse väli on mõeldud pakkumise detailsemaks lahti kirjutamiseks. Pikema teksti mugavaks sisestamiseks klikkige kasti paremal ülaservas oleval ikoonil.
Pakkumist tehes on keelatud postitada enda kontaktandmeid (nimi, telefon, aadress jne). Me jälgime ja analüüsime pakkumisi, et vältida pettuseid ja reeglite rikkumisi.
Rikkumise puhul kasutajakonto blokeeritakse.

 

Teisi töid samas valdkonnas

Valdkonnas "Põrandatööd" on 2 aktiivset tööd

Talumaja põrandate valamine/ehitus koos küttetorustiku paigaldusega

Asukoht: Raplamaa, Purila
Aega jäänud: 16p 20h
Tehtud pakkumisi: 2

Põrandakütte paigaldus ja põrandavalu (kips või betoon)

Asukoht: Saaremaa, Muhu vald
Aega jäänud: 20h 41 min
Tehtud pakkumisi: 1

Vanemad teated:

Vaata kõiki

Sellel veebilehel kasutatakse küpsiseid. Kasutamist jätkates nõustute küpsiste kasutamisega.

Sulge
 
Minu pakkumine

Reeglid

Pakkumise kirjelduse väli on mõeldud pakkumise detailsemaks lahti kirjutamiseks. Pikema teksti mugavaks sisestamiseks klikkige kasti paremal ülaservas oleval ikoonil.
Pakkumist tehes on keelatud postitada enda kontaktandmeid (nimi, telefon, aadress jne). Me jälgime ja analüüsime pakkumisi, et vältida pettuseid ja reeglite rikkumisi.
Rikkumise puhul kasutajakonto blokeeritakse.