+ Lisa oma töö      

Otsid ehitajat "Vundamenditööd" valdkonnast?

Parima pakkumise ja teostaja leidmiseks lisa oma töö.

Plaatvundamendi ehitus

ID 97271

548 vaatamist

Prindi

  • check Pakkumiste tegemine
    kuni 27.05.2024
  • check Võitja valik kuni
    03.06.2024
  • 3 Töö teostamine
    ja hinnang
Hanke lõpp: E, 27. mai, 2024
Maakond: Harjumaa
Muu asula: Kernu
Tööde lõpp: Kokkuleppel
Ehitusmaterjalid: Töö tegija poolt
Soovin pakkumisi: Summa kogu projektile

Töö sisu

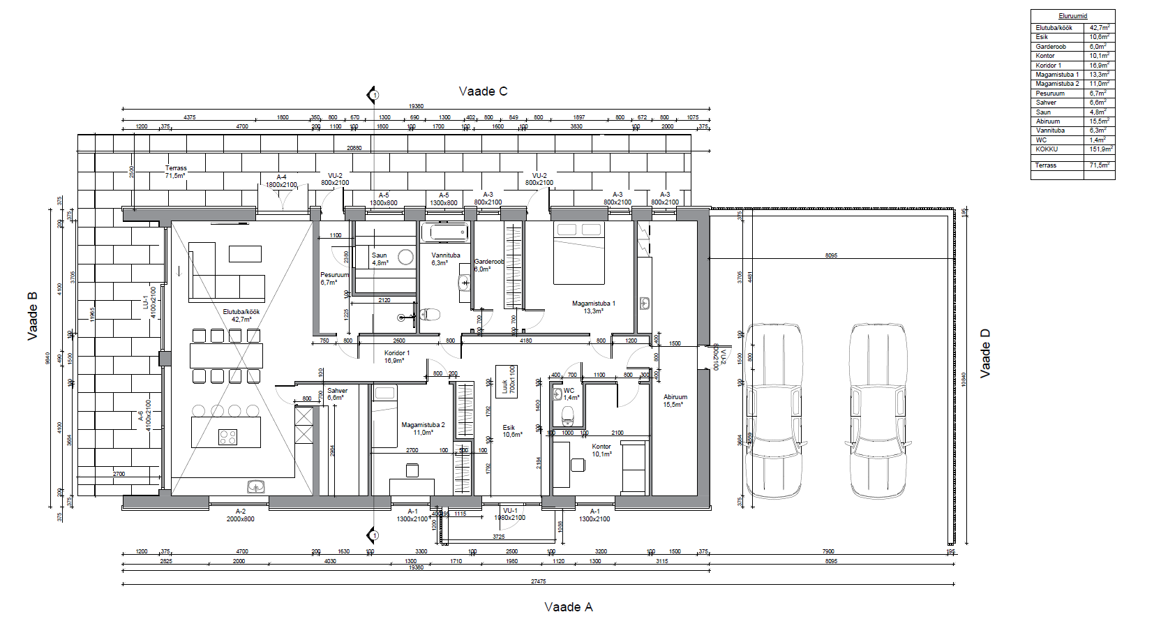
Palun hinnapakkumist lisatud failidel plaatvundamendile. Torustiku ja elektri paigaldame ise. Samal objektil on veel kaks vundamenti vaja teha(60m2 ja 20m2)- kui töö on korrektne siis teised plaadid saate ka teha.

Pildid, video ja failid

Hanke korraldaja: eraisik ID35712

Pakkumised

Pakkumisi kokku: 3

Ettevõte Summa Käibemaks Lisatud Vestlus
Kasutaja ikoon ID50329
Pakkuja profiil Väike nool paremale
24 400€ KM lisandub KM lisandub 26.05.2024 Vestlus (0)
Kasutaja ikoon ID79944
Pakkuja profiil Väike nool paremale
24 000€ Sisaldab KM Sisaldab KM 27.05.2024 Vestlus (0)
Kasutaja ikoon ID38400
Pakkuja profiil Väike nool paremale
23 000€ Sisaldab KM Sisaldab KM 27.05.2024 Vestlus (0)

Pakkumise kirjeldus:

23000 kuni 39000. Hetkel ei tea kui palju soojustust plaadi alla, kas perimeetri peno ka, milline pinnas, kui sügav väljakaeve ja kuidas ligipääs tehnikags (kaugele kalluriga saab)?

Lisaküsimustele vastame meelsasti vestlusaknas.

Küsimused hanke korraldajale

Hanke korraldajale ei ole veel küsimusi esitatud.

Lisa küsimus

Lisa küsimus

Minu pakkumine

Reeglid

Pakkumise kirjelduse väli on mõeldud pakkumise detailsemaks lahti kirjutamiseks. Pikema teksti mugavaks sisestamiseks klikkige kasti paremal ülaservas oleval ikoonil.
Pakkumist tehes on keelatud postitada enda kontaktandmeid (nimi, telefon, aadress jne). Me jälgime ja analüüsime pakkumisi, et vältida pettuseid ja reeglite rikkumisi.
Rikkumise puhul kasutajakonto blokeeritakse.

 

Vanemad teated:

Vaata kõiki

Sellel veebilehel kasutatakse küpsiseid. Kasutamist jätkates nõustute küpsiste kasutamisega.

Sulge
 
Minu pakkumine

Reeglid

Pakkumise kirjelduse väli on mõeldud pakkumise detailsemaks lahti kirjutamiseks. Pikema teksti mugavaks sisestamiseks klikkige kasti paremal ülaservas oleval ikoonil.
Pakkumist tehes on keelatud postitada enda kontaktandmeid (nimi, telefon, aadress jne). Me jälgime ja analüüsime pakkumisi, et vältida pettuseid ja reeglite rikkumisi.
Rikkumise puhul kasutajakonto blokeeritakse.