+ Lisa oma töö      

Otsid ehitajat "Üldehitus" valdkonnast?

Parima pakkumise ja teostaja leidmiseks lisa oma töö.

Müüri ladumine

ID 97257

432 vaatamist

Prindi

  • check Pakkumiste tegemine
    kuni 07.06.2024
  • check Võitja valik kuni
    14.06.2024
  • 3 Töö teostamine
    ja hinnang
Hanke lõpp: R, 7. juuni, 2024
Maakond: Võrumaa
Linn: Võru
Tööde lõpp: Kokkuleppel
Ehitusmaterjalid: Töö tellija poolt
Soovin pakkumisi: Summa kogu projektile

Töö sisu

Välissein Bauroc Classic 250 (124,9 m2)
Sisesein Bauroc Element 150 (50,95 m2)
Sisesein Bauroc Eelement 100 (58,49 m2)
Kivivöö Bauroc U-plokk 125 (125tk)

Akna/uste silluste paigaldamine
1600/250/200 3tk
2400/250/200 6tk
1200/250/200 3tk
1200/150/200 5tk
1200/100/200 3tk

Müür tuleb plaatvundamendile
Seina kõrgus koos U-plokiga 2,8m

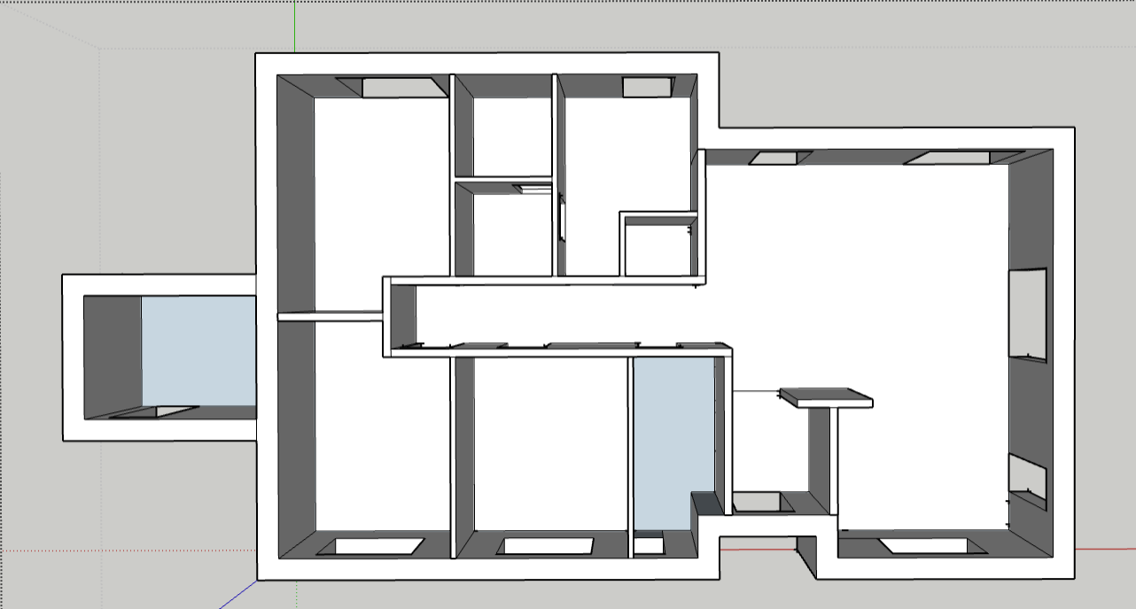
Pildid, video ja failid

Hanke korraldaja: eraisik ID79867

Pakkumised

Pakkumisi kokku: 4

Ettevõte Summa Käibemaks Lisatud Vestlus
Kasutaja ikoon ID82112
Pakkuja profiil Väike nool paremale
6 250€ Sisaldab KM Sisaldab KM 24.05.2024 Vestlus (0)
Kasutaja ikoon ID80997
Pakkuja profiil Väike nool paremale
5 400€ Sisaldab KM Sisaldab KM 29.05.2024 Vestlus (0)
Kasutaja ikoon ID82700
Pakkuja profiil Väike nool paremale
5 656,3€ KM lisandub KM lisandub 07.06.2024 Vestlus (0)

Pakkumise kirjeldus:

Tere,

Hind tehtud vastavalt ette antud andmetele.

Kasutaja ikoon ID79944
Pakkuja profiil Väike nool paremale
6 500€ Sisaldab KM Sisaldab KM 07.06.2024 Vestlus (0)

Pakkumise kirjeldus:

Tere. Tööraha.

Küsimused hanke korraldajale

Küsimus: private ID80997   26.05.2024 17:39
Tere

Kas teil oleks võimalik lisada maja põhiplaan.

Ette tänades

Teavita reeglite rikkumisest

Korraldaja vastus:
Hanke korraldaja ei ole küsimusele veel vastanud

Lisa küsimus

Lisa küsimus

Minu pakkumine

Reeglid

Pakkumise kirjelduse väli on mõeldud pakkumise detailsemaks lahti kirjutamiseks. Pikema teksti mugavaks sisestamiseks klikkige kasti paremal ülaservas oleval ikoonil.
Pakkumist tehes on keelatud postitada enda kontaktandmeid (nimi, telefon, aadress jne). Me jälgime ja analüüsime pakkumisi, et vältida pettuseid ja reeglite rikkumisi.
Rikkumise puhul kasutajakonto blokeeritakse.

 

Teisi töid samas valdkonnas

Valdkonnas "Üldehitus" on 31 aktiivset tööd

Maja värvimine

Asukoht: Harjumaa, Saue
Aega jäänud: 2p 4h
Tehtud pakkumisi: 6

Terassi õlitamine, 13,7 ruutu

Asukoht: Harjumaa, Saue
Aega jäänud: 5p 4h
Tehtud pakkumisi: 5

Vanemad teated:

Vaata kõiki

Sellel veebilehel kasutatakse küpsiseid. Kasutamist jätkates nõustute küpsiste kasutamisega.

Sulge
 
Minu pakkumine

Reeglid

Pakkumise kirjelduse väli on mõeldud pakkumise detailsemaks lahti kirjutamiseks. Pikema teksti mugavaks sisestamiseks klikkige kasti paremal ülaservas oleval ikoonil.
Pakkumist tehes on keelatud postitada enda kontaktandmeid (nimi, telefon, aadress jne). Me jälgime ja analüüsime pakkumisi, et vältida pettuseid ja reeglite rikkumisi.
Rikkumise puhul kasutajakonto blokeeritakse.