+ Lisa oma töö      

Otsid ehitajat "Aia ehitus" valdkonnast?

Parima pakkumise ja teostaja leidmiseks lisa oma töö.

Hange on lõppenud!

Võitjaks osutus kasutaja ID 79878

Tara ehitus

ID 97162

414 vaatamist

Prindi

  • check Pakkumiste tegemine
    kuni 05.06.2024
  • check Võitja valik kuni
    12.06.2024
  • 3 Töö teostamine
    ja hinnang
Hanke lõpp: K, 5. juuni, 2024
Maakond: Tartumaa
Linn: Tartu
Tööde lõpp: Kokkuleppel
Ehitusmaterjalid: Töö tegija poolt
Soovin pakkumisi: Summa kogu projektile

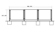
Töö sisu

See tara läheks prügikastide taha tuuletõkkeks.

Pildid, video ja failid

Hanke korraldaja: korteriühistu ID82331

Pakkumised

Pakkumisi kokku: 2

Ettevõte Summa Käibemaks Lisatud Vestlus
Kasutaja ikoon ID78092
Pakkuja profiil Väike nool paremale
1 200€ Ei ole KMKR Ei ole KMKR 25.05.2024 Vestlus (0)

Pakkumise kirjeldus:

Hinnapakkumine sisaldab tööd ja materjale vastavalt joonisel antud mõõtudele.
Metallpostid betoneerituna maa sees + immutatud puitmaterjal.

lugupidamisega

Kasutaja ikoon ID79878
Pakkuja profiil Väike nool paremale
900€ Ei ole KMKR Ei ole KMKR 01.06.2024 Vestlus (2)

Pakkumise kirjeldus:

Tere,
Saadan pakkumise soovitud töödele.

Küsimused hanke korraldajale

Küsimus: private ID72075   23.05.2024 07:51
Tere, kui sobib teeksin pakkumise vaid tööle?

Teavita reeglite rikkumisest

Korraldaja vastus: 23.05.2024 10:16

Ei, ikka materjal ka

Teavita reeglite rikkumisest

Küsimus: private ID78092   24.05.2024 19:42
Tere

Kuna postiaugud tuleb puurida, küsin mis pinnas seal on hetkel kuhu tara tuleb?
Kas tara kohta on erisoove, või sobib immutatud laudis?

Lugupidamisega

Teavita reeglite rikkumisest

Korraldaja vastus: 25.05.2024 12:13

Käisin labidaga katsumas - pinnas, kus on ka väikeseid kive. Prügikastid on betoonist alusel, tara võib olla selle äärest parajal kaugusel. Tuuletõkkeks. Tugev tuul on prügikaste ümber lükanud.
Pole muid erisoove, kui et laudis ilmastikule vastu peaks. Immutatud laudis on väga sobiv.

Teavita reeglite rikkumisest

Küsimus: private ID67766   25.05.2024 16:46
Tere ,Kui puidust teha see oleks kõige lihtsam varjant ,Kas peab olema hööveldatud materjal või võib ka peen saetud olla ,Kas värvitud või lihtsalt immutatud sobib ka. Parimat soovides

Teavita reeglite rikkumisest

Korraldaja vastus: 25.05.2024 17:11

Postid ikka metallist ja betoonalustel. Laudis - immutatud puit.

Teavita reeglite rikkumisest

Lisa küsimus

Lisa küsimus

Minu pakkumine

Reeglid

Pakkumise kirjelduse väli on mõeldud pakkumise detailsemaks lahti kirjutamiseks. Pikema teksti mugavaks sisestamiseks klikkige kasti paremal ülaservas oleval ikoonil.
Pakkumist tehes on keelatud postitada enda kontaktandmeid (nimi, telefon, aadress jne). Me jälgime ja analüüsime pakkumisi, et vältida pettuseid ja reeglite rikkumisi.
Rikkumise puhul kasutajakonto blokeeritakse.

 

Teisi töid samas valdkonnas

Valdkonnas "Aia ehitus" on 18 aktiivset tööd

Tänavakivi puhastus

Asukoht: Harjumaa, Tallinn
Aega jäänud: 17h 10 min
Tehtud pakkumisi: 7

no-img Pilt puudub

Piirdeaia postide paigaldus koos paneelidega

Asukoht: Tartumaa
Aega jäänud: 1p 17h
Tehtud pakkumisi: 5

Vanemad teated:

Vaata kõiki

Sellel veebilehel kasutatakse küpsiseid. Kasutamist jätkates nõustute küpsiste kasutamisega.

Sulge
 
Minu pakkumine

Reeglid

Pakkumise kirjelduse väli on mõeldud pakkumise detailsemaks lahti kirjutamiseks. Pikema teksti mugavaks sisestamiseks klikkige kasti paremal ülaservas oleval ikoonil.
Pakkumist tehes on keelatud postitada enda kontaktandmeid (nimi, telefon, aadress jne). Me jälgime ja analüüsime pakkumisi, et vältida pettuseid ja reeglite rikkumisi.
Rikkumise puhul kasutajakonto blokeeritakse.