+ Lisa oma töö      

Otsid ehitajat "Üldehitus" valdkonnast?

Parima pakkumise ja teostaja leidmiseks lisa oma töö.

40m2 eraldi korteri ehitus maja osasse

ID 96863

428 vaatamist

Prindi

  • check Pakkumiste tegemine
    kuni 21.05.2024
  • check Võitja valik kuni
    28.05.2024
  • 3 Töö teostamine
    ja hinnang
Hanke lõpp: T, 21. mai, 2024
Maakond: Ida-Virumaa
Muu asula: Kuremäe
Tööde lõpp: Kokkuleppel
Ehitusmaterjalid: Töö tegija poolt
Soovin pakkumisi: Summa kogu projektile

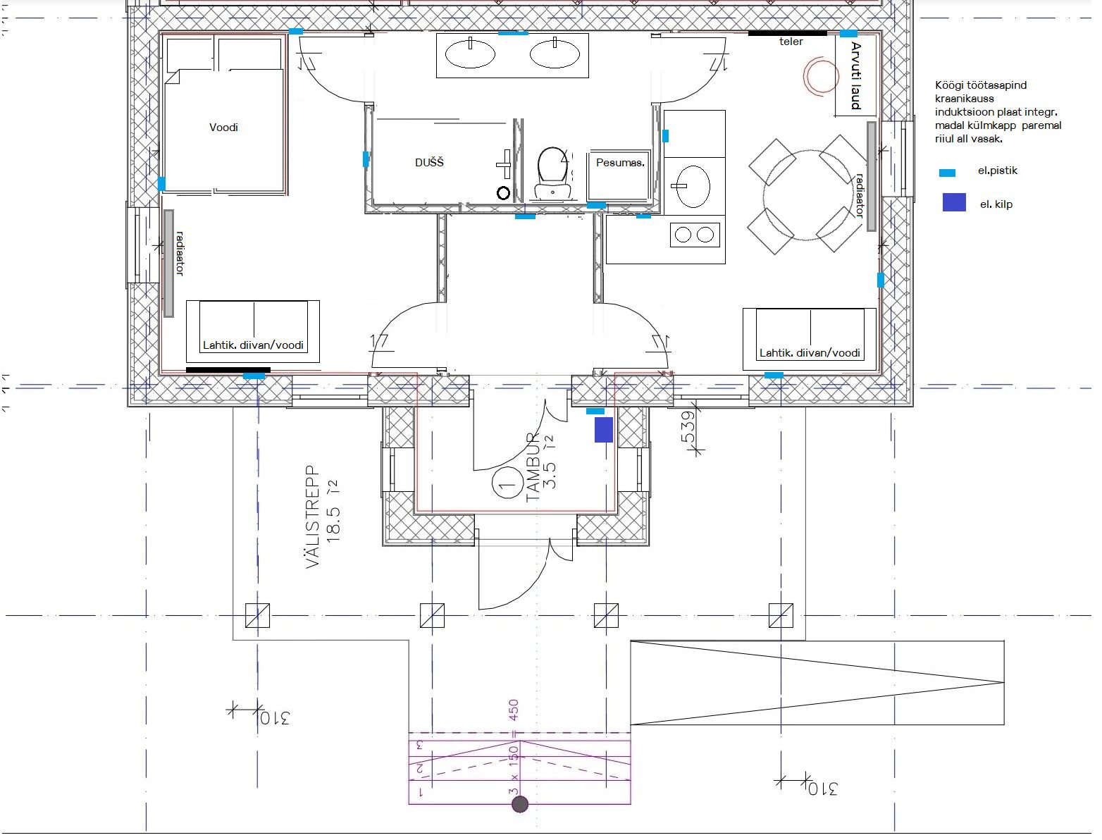
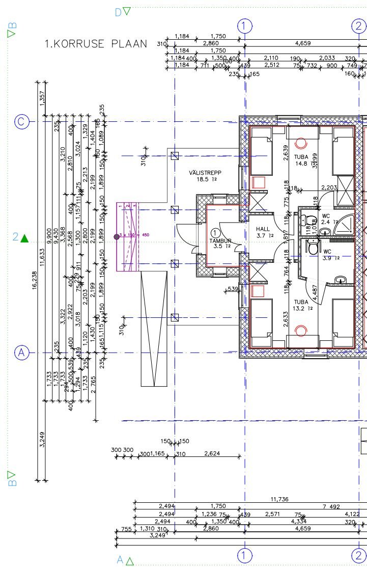
Töö sisu

Eesmärgiks on ehitada maja otsas olevasse ruumi 2 toaline korter. Planeering selliselt, et hilisemalt oleks lihtne korter muuta 2-heks eraldi välja üüritavaks toaks koos eraldi dušširuumidega. Hetkel on ruumides alustatud ehitust. Põrandad on puitlaastplaadiga, välisseintes on kipsplaat paigaldatud seespool. Hetkel on ehitust alustatud mingi muu planeeringu kohaselt. Vaja on maha võtta olemas olevad poolikud vaheseinad, ehitada uued vastavalt eskiisi joonisele. Maja all on täis kelder - betoon paneel põrandad. Tuleb teha uued kanalisatsiooni avad, vedada läbi keldri vee ja küttevee torud. Seinad tubades värvitud, põrandatele tubades ja koridoris laminaat. Tuulekoda ja vannituba plaaditud põrandad, vannituba osaliselt plaaditud laeni, osaliselt. kõrgusele 1500mm

Pildid, video ja failid

Hanke korraldaja: ettevõte ID82213

Pakkumised

Pakkumisi kokku: 3

Ettevõte Summa Käibemaks Lisatud Vestlus
Kasutaja ikoon ID70688
Pakkuja profiil Väike nool paremale
43 500€ KM lisandub KM lisandub 20.05.2024 Vestlus (0)

Pakkumise kirjeldus:

Tere!

Pakkumine:

-ca 130 m2 ehituspinda lõppviimisluseni
- 2 vannituba

Hinnas töö,materjal. Lisandub hange.ee tasu 5%+km

Võtmed kätte ehitus.

Terv.,

Erki

Kasutaja ikoon ID76974
Pakkuja profiil Väike nool paremale
22 500€ Ei ole KMKR Ei ole KMKR 20.05.2024 Vestlus (0)
Kasutaja ikoon ID79923
Pakkuja profiil Väike nool paremale
25 000€ KM lisandub KM lisandub 21.05.2024 Vestlus (0)

Pakkumise kirjeldus:

Hind võib muutuda sõltuvalt viimistlusmaterjalidest.
Ettemaks materjalide maksumuse ulatuses.

Küsimused hanke korraldajale

Hanke korraldajale ei ole veel küsimusi esitatud.

Lisa küsimus

Lisa küsimus

Minu pakkumine

Reeglid

Pakkumise kirjelduse väli on mõeldud pakkumise detailsemaks lahti kirjutamiseks. Pikema teksti mugavaks sisestamiseks klikkige kasti paremal ülaservas oleval ikoonil.
Pakkumist tehes on keelatud postitada enda kontaktandmeid (nimi, telefon, aadress jne). Me jälgime ja analüüsime pakkumisi, et vältida pettuseid ja reeglite rikkumisi.
Rikkumise puhul kasutajakonto blokeeritakse.

 

Teisi töid samas valdkonnas

Valdkonnas "Üldehitus" on 30 aktiivset tööd

Maja värvimine

Asukoht: Harjumaa, Saue
Aega jäänud: 2p 6h
Tehtud pakkumisi: 5

Terassi õlitamine, 13,7 ruutu

Asukoht: Harjumaa, Saue
Aega jäänud: 5p 6h
Tehtud pakkumisi: 5

Vanemad teated:

Vaata kõiki

Sellel veebilehel kasutatakse küpsiseid. Kasutamist jätkates nõustute küpsiste kasutamisega.

Sulge
 
Minu pakkumine

Reeglid

Pakkumise kirjelduse väli on mõeldud pakkumise detailsemaks lahti kirjutamiseks. Pikema teksti mugavaks sisestamiseks klikkige kasti paremal ülaservas oleval ikoonil.
Pakkumist tehes on keelatud postitada enda kontaktandmeid (nimi, telefon, aadress jne). Me jälgime ja analüüsime pakkumisi, et vältida pettuseid ja reeglite rikkumisi.
Rikkumise puhul kasutajakonto blokeeritakse.